大阪府大阪市北区梅田2丁目(西梅田駅)の貸事務所:物件詳細
交通 所在地 |
駅徒歩 |
賃料 管理費等 |
敷金/保証金 礼金 |
使用部分面積 坪数/坪単価 |
物件種目 築年月 |
|
地下鉄四つ橋線/西梅田
大阪府大阪市北区梅田2丁目
|
3分
|
15.25万円
48,796円
|
なし / 83.17万円
なし
|
36.66m²
11.08坪/1.3752万円
|
貸事務所
1988年10月(築37年8ヶ月)
|
|
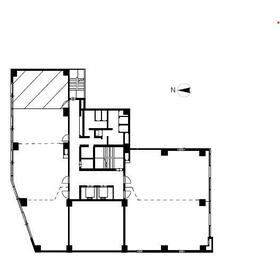
間取図
|
外観
外観
|
その他の画像
|
| 交通 | 地下鉄四つ橋線 西梅田駅 徒歩3分 |
|---|
| その他の交通 | JR東西線 北新地駅 徒歩3分 JR東海道本線 大阪駅 徒歩6分 |
| 所在地 |
大阪府大阪市北区梅田2丁目
|
| 物件種目 |
貸事務所 |
| 賃料 |
15.25万円 |
管理費等 |
48,796円 |
| 敷金 / 保証金 |
なし / 83.17万円 |
礼金 |
なし |
| 敷引 |
- |
坪単価 |
1.3752万円 |
| 保証金償却 |
- |
権利金 |
- |
| 造作譲渡 |
- |
その他一時金 |
- |
| 維持費等 |
- |
保険等 |
不要 |
| 使用部分面積 |
36.66m² |
坪数 |
11.08坪 |
| 築年月 |
1988年10月(築37年8ヶ月)
|
階建 / 階 |
11階建 / 3階 |
| 駐車場 |
- |
バイク置き場 |
- |
| 駐輪場 |
- |
土地面積 |
- |
| 接道状況 |
-
|
用途地域 |
- |
| 間取り |
- |
建物構造 |
SRC |
| アピールポイント |
仲介手数料無料! |
| 建物名・部屋番号 |
桜橋八千代ビル G |
| リフォーム履歴 |
■その他:2019年1月 立体駐車場改修 2019年09月 トイレ・給湯室改修 2019年10月 共用部タイルカーペット張替え ※実施年月は最も古い履歴を表示 |
| リノベーション履歴 |
- |
| 特記事項 |
24時間利用可、有人警備、フリーレント、24時間セキュリティー |
| 備考 |
賃貸保証等:加入要(保証会社加入必須)
管理形態/管理員の勤務形態:-/-
フリーレント:1ヶ月
保証金半額プラン適応(保証会社加入必須)
|
| エネルギー消費性能 |
- |
| 断熱性能 |
- |
| 目安光熱費 |
- |
| バス・トイレ |
共用部分に男女別トイレあり |
| キッチン |
- |
| 設備・サービス |
個別空調、ビルトインエアコン、エアコン、火災警報器(報知機) |
| その他 |
エレベーター2基以上 |
| 契約期間 |
2年 |
条件等 |
定期借家
|
| 引渡可能時期 |
即時 |
現況 |
空 |
| 仲介手数料 |
不要 |
|
|
| 更新料 |
- |
物件番号 |
6987154079 |
| 情報公開日 |
2025年7月28日 |
次回更新予定日 |
2026年5月19日 |
| ケータイ用バーコード |
- スマートフォンでこの物件を見る
- スマートフォンからもこの物件をご覧になれます。
|
※「-」と表示されている項目については、情報提供会社にご確認ください。
ここから簡単にお問い合わせをすることができます。
(SSLでの暗号化での送信を希望されるお客さまは
こちら
よりお問い合わせください)
お問い合わせを行う前に
「個人情報の取り扱いについて」を必ずお読みください。
「個人情報の取り扱いについて」に同意いただいた場合は「上記にご同意の上 確認画面へ進む」のボタンをクリックしてください。
個人情報の取り扱いについて
皆さまが送付された個人情報はアットホーム(株)のサーバを経由し、お問い合わせ先の不動産会社にメールまたはFAXにて転送されるためアットホーム(株)にも保管されます。アットホーム(株)で保管された個人情報の取り扱いについては、【こちら】をご覧ください。
また、本画面でご記入いただいた個人情報は、お問い合わせ先の不動産会社でも保管します。 お問い合わせ先の不動産会社が保管する個人情報の取り扱いについては、不動産会社に直接お問い合わせください。
大阪府知事免許(9)第34324号 |
|---|
- 交通:
- 地下鉄堺筋線/南森町駅 徒歩5分
- 大阪府大阪市北区西天満4丁目3-18 MF西天満ビル
- TEL:
- 06-6364-5377
- FAX:
- 06-6362-3675
取引態様:代理  - 50027198
|
- スマートフォンで
この不動産会社を見る

|
- 提携サイト等より掲載されている物件情報につきましては、不動産会社詳細情報にリンクされていないものがあります。
- 物件に関するお問合せは、物件詳細ページの「情報提供会社」に表示されている不動産会社へ直接お願いいたします。
- 間取図は、現況を優先させていただきます。
- 映像は物件の一部を撮影したものです。物件の契約にあたっての最終判断はご自身の判断に基づいて行ってください。
- 仲介手数料について

アットホームは物件情報の適正化に努めております。
内容に誤りがある場合にはこちらへご連絡ください。