東京都新宿区西新宿4丁目(都庁前駅)の貸事務所:物件詳細
交通 所在地 |
駅徒歩 |
賃料 管理費等 |
敷金/保証金 礼金 |
使用部分面積 坪数/坪単価 |
物件種目 築年月 |
|
都営大江戸線/都庁前
東京都新宿区西新宿4丁目
|
8分
|
68.6972万円
158,532円
|
5ヶ月 / なし
なし
|
158.84m²
48.04坪/1.4298万円
|
貸事務所
1979年2月(築47年4ヶ月)
|
|
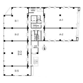
間取図
|
|
その他の画像
|
| 交通 | 都営大江戸線 都庁前駅 徒歩8分 |
|---|
| その他の交通 | 都営大江戸線 西新宿五丁目駅 徒歩8分 京王線 初台駅 徒歩13分 |
| 所在地 |
東京都新宿区西新宿4丁目
|
| 物件種目 |
貸事務所 |
| 賃料 |
68.6972万円 |
管理費等 |
158,532円 |
| 敷金 / 保証金 |
5ヶ月 / なし |
礼金 |
なし |
| 敷引 |
- |
坪単価 |
1.4298万円 |
| 保証金償却 |
- |
権利金 |
- |
| 造作譲渡 |
- |
その他一時金 |
- |
| 維持費等 |
- |
保険等 |
要 |
| 使用部分面積 |
158.84m² |
坪数 |
48.04坪 |
| 築年月 |
1979年2月(築47年4ヶ月)
|
階建 / 階 |
13階建 / 2階 |
| 駐車場 |
- |
バイク置き場 |
- |
| 駐輪場 |
- |
土地面積 |
- |
| 接道状況 |
-
|
用途地域 |
- |
| 間取り |
- |
建物構造 |
SRC |
| アピールポイント |
新宿中央公園至近の事務所物件です。
158㎡のゆとりある空間!
嬉しいOAフロア、男女別トイレ♪
業種・諸条件お気軽にお問い合わせください。 |
| 建物名・部屋番号 |
ハイネスロフティ 2F-B1 |
| リフォーム履歴 |
- |
| リノベーション履歴 |
- |
| 特記事項 |
OAフロア、角部屋 |
| 備考 |
賃貸保証等:加入要(加入必須)
管理形態/管理員の勤務形態:-/-
|
| エネルギー消費性能 |
- |
| 断熱性能 |
- |
| 目安光熱費 |
- |
| バス・トイレ |
共用部分に男女別トイレあり |
| キッチン |
- |
| 設備・サービス |
個別空調、エアコン |
| その他 |
エレベーター2基以上、エレベーター |
| 契約期間 |
2年 |
条件等 |
定期借家
|
| 引渡可能時期 |
即時 |
現況 |
空 |
| 仲介手数料 |
1.1ヶ月 |
|
|
| 更新料 |
- |
物件番号 |
6987170506 |
| 情報公開日 |
2025年7月30日 |
次回更新予定日 |
2026年6月1日 |
| ケータイ用バーコード |
- スマートフォンでこの物件を見る
- スマートフォンからもこの物件をご覧になれます。
|
※「-」と表示されている項目については、情報提供会社にご確認ください。
| 周辺施設 |
マルエツプチ西新宿三丁目店 |
| 距離 |
412m |
| 周辺施設 |
ファミリーマート新宿中央公園店 |
| 距離 |
31m |
| 周辺施設 |
ローソンストア100西新宿三丁目店 |
| 距離 |
385m |
| 周辺施設 |
喜多方ラーメン坂内新宿パークタワー店 |
| 距離 |
474m |
| 周辺施設 |
ウエルシア都庁第2庁舎店 |
| 距離 |
465m |
| 周辺施設 |
Can★Do薬ヒグチ新宿パークタワー店 |
| 距離 |
522m |
ここから簡単にお問い合わせをすることができます。
(SSLでの暗号化での送信を希望されるお客さまは
こちら
よりお問い合わせください)
お問い合わせを行う前に
「個人情報の取り扱いについて」を必ずお読みください。
「個人情報の取り扱いについて」に同意いただいた場合は「上記にご同意の上 確認画面へ進む」のボタンをクリックしてください。
個人情報の取り扱いについて
皆さまが送付された個人情報はアットホーム(株)のサーバを経由し、お問い合わせ先の不動産会社にメールまたはFAXにて転送されるためアットホーム(株)にも保管されます。アットホーム(株)で保管された個人情報の取り扱いについては、【こちら】をご覧ください。
また、本画面でご記入いただいた個人情報は、お問い合わせ先の不動産会社でも保管します。 お問い合わせ先の不動産会社が保管する個人情報の取り扱いについては、不動産会社に直接お問い合わせください。
東京都知事免許(1)第111235号 |
|---|
- 交通:
- JR総武線/千駄ケ谷駅 徒歩5分
- 東京都渋谷区千駄ヶ谷1丁目22-6 松山ビル3階
- TEL:
- 03-6823-2275
- FAX:
- 03-6804-6245
- 所属団体:
- (公社)東京都宅地建物取引業協会会員(公社)首都圏不動産公正取引協議会加盟
取引態様:仲介  - 00277995
|
- スマートフォンで
この不動産会社を見る

|
- 提携サイト等より掲載されている物件情報につきましては、不動産会社詳細情報にリンクされていないものがあります。
- 物件に関するお問合せは、物件詳細ページの「情報提供会社」に表示されている不動産会社へ直接お願いいたします。
- 間取図は、現況を優先させていただきます。
- 映像は物件の一部を撮影したものです。物件の契約にあたっての最終判断はご自身の判断に基づいて行ってください。
- 仲介手数料について

アットホームは物件情報の適正化に努めております。
内容に誤りがある場合にはこちらへご連絡ください。