長野県長野市南千歳2丁目(長野駅)の貸事務所:物件詳細
交通 所在地 |
駅徒歩 |
賃料 管理費等 |
敷金/保証金 礼金 |
使用部分面積 坪数/坪単価 |
物件種目 築年月 |
|
北陸新幹線/長野
長野県長野市南千歳2丁目
|
9分
|
16.92万円
98,700円
|
6ヶ月 / なし
なし
|
93.22m²
28.19坪/0.6001万円
|
貸事務所
1994年12月(築31年1ヶ月)
|
|
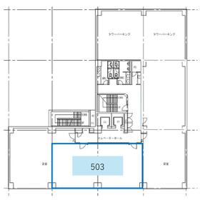
間取図
|
外観
|
その他の画像
|
| 交通 | 北陸新幹線 長野駅 徒歩9分 |
|---|
| その他の交通 | JR信越本線 長野駅 徒歩6分 長野電鉄長野線 市役所前駅 徒歩2分 |
| 所在地 |
長野県長野市南千歳2丁目
|
| 物件種目 |
貸事務所 |
| 賃料 |
16.92万円 |
管理費等 |
98,700円 |
| 敷金 / 保証金 |
6ヶ月 / なし |
礼金 |
なし |
| 敷引 |
- |
坪単価 |
0.6001万円 |
| 保証金償却 |
- |
権利金 |
- |
| 造作譲渡 |
- |
その他一時金 |
- |
| 維持費等 |
- |
保険等 |
- |
| 使用部分面積 |
93.22m² |
坪数 |
28.19坪 |
| 築年月 |
1994年12月(築31年1ヶ月)
|
階建 / 階 |
10階建 / 5階 |
| 駐車場 |
有 20,000円/月(空き25台) 機械式 |
バイク置き場 |
- |
| 駐輪場 |
- |
土地面積 |
- |
| 接道状況 |
-
|
用途地域 |
- |
| 間取り |
- |
建物構造 |
SRC |
| アピールポイント |
長野市オフィス家賃等助成事業該当物件
※適応期限、適応要件がございますので事前にご確認下さい。
トイレ更新予定(一部和式→洋式) |
| 建物名・部屋番号 |
長野セントラルビル 503区画 |
| リフォーム履歴 |
- |
| リノベーション履歴 |
- |
| 特記事項 |
駐車場3台分以上、都道府県道沿いに面する |
| 備考 |
賃貸保証等:加入要(保険会社による)
管理形態/管理員の勤務形態:-/-
※税抜き【月額坪単価】賃料@6,000円 共益費@3,500円 上場会社以外は原則保証会社付き敷金6か月
開館時間8:00~18:00(土日祝閉館)時間外はカードキーにて24時間入退出可
|
| エネルギー消費性能 |
- |
| 断熱性能 |
- |
| 目安光熱費 |
- |
| バス・トイレ |
共用部分に男女別トイレあり |
| キッチン |
- |
| 設備・サービス |
個別空調 |
| その他 |
エレベーター2基以上 |
| 契約期間 |
5年 |
条件等 |
定期借家
|
| 引渡可能時期 |
指定有り2026年2月1日 |
現況 |
居住中 |
| 仲介手数料 |
不要 |
|
|
| 更新料 |
- |
物件番号 |
6987199803 |
| 情報公開日 |
2025年9月29日 |
次回更新予定日 |
2025年12月22日 |
| ケータイ用バーコード |
- スマートフォンでこの物件を見る
- スマートフォンからもこの物件をご覧になれます。
|
※「-」と表示されている項目については、情報提供会社にご確認ください。
ここから簡単にお問い合わせをすることができます。
(SSLでの暗号化での送信を希望されるお客さまは
こちら
よりお問い合わせください)
お問い合わせを行う前に
「個人情報の取り扱いについて」を必ずお読みください。
「個人情報の取り扱いについて」に同意いただいた場合は「上記にご同意の上 確認画面へ進む」のボタンをクリックしてください。
個人情報の取り扱いについて
皆さまが送付された個人情報はアットホーム(株)のサーバを経由し、お問い合わせ先の不動産会社にメールまたはFAXにて転送されるためアットホーム(株)にも保管されます。アットホーム(株)で保管された個人情報の取り扱いについては、【こちら】をご覧ください。
また、本画面でご記入いただいた個人情報は、お問い合わせ先の不動産会社でも保管します。 お問い合わせ先の不動産会社が保管する個人情報の取り扱いについては、不動産会社に直接お問い合わせください。
ファーストブラザーズキャピタル(株)東京都知事免許(4)第90107号 |
|---|
- 交通:
- JR山手線/東京駅
- 東京都千代田区丸の内2丁目4-1
- TEL:
- 03-5219-5645
- FAX:
- 03-3216-1803
取引態様:貸主 |
- 提携サイト等より掲載されている物件情報につきましては、不動産会社詳細情報にリンクされていないものがあります。
- 物件に関するお問合せは、物件詳細ページの「情報提供会社」に表示されている不動産会社へ直接お願いいたします。
- 間取図は、現況を優先させていただきます。
- 映像は物件の一部を撮影したものです。物件の契約にあたっての最終判断はご自身の判断に基づいて行ってください。
- 仲介手数料について

アットホームは物件情報の適正化に努めております。
内容に誤りがある場合にはこちらへご連絡ください。