福島県郡山市富久山町久保田字恩田(郡山駅)の貸事務所:物件詳細
交通 所在地 |
駅徒歩 |
賃料 管理費等 |
敷金/保証金 礼金 |
使用部分面積 坪数/坪単価 |
物件種目 築年月 |
JR東北本線/郡山
福島県郡山市富久山町久保田字恩田
|
18分
|
22万円
-
|
2ヶ月 / なし
1ヶ月
|
168.07m²
50.84坪/0.4328万円
|
貸事務所(建物一括)
1990年9月(築35年2ヶ月)
|
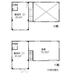
間取図
|
|
<
その他の画像
>
|
交通 | JR東北本線 郡山駅 徒歩18分 |
所在地 |
福島県郡山市富久山町久保田字恩田
|
物件種目 |
貸事務所(建物一括) |
賃料 |
22万円 |
管理費等 |
- |
敷金 / 保証金 |
2ヶ月 / なし |
礼金 |
1ヶ月 |
敷引 |
- |
坪単価 |
0.4328万円 |
保証金償却 |
- |
権利金 |
- |
造作譲渡 |
- |
その他一時金 |
- |
維持費等 |
- |
保険等 |
要 |
使用部分面積 |
168.07m² |
坪数 |
50.84坪 |
築年月 |
1990年9月(築35年2ヶ月)
|
階建 / 階 |
2階建 |
駐車場 |
有 無料 駐車場10台付き |
バイク置き場 |
- |
駐輪場 |
- |
土地面積 |
- |
接道状況 |
-
|
用途地域 |
近隣商業 |
間取り |
- |
建物構造 |
鉄骨造 |
建物名・部屋番号 |
恩田貸倉庫付事務所 |
リフォーム履歴 |
- |
リノベーション履歴 |
- |
特記事項 |
駐車場3台分以上 |
備考 |
賃貸保証等:加入要(家賃保証会社を通してのお申込みとなり、保証委託料として賃料等総額の100%が発生致します。(契約時))
管理形態/管理員の勤務形態:-/-
主要採光面:南向き
◆1階・2階共に 事務所14.7坪 倉庫17.8坪
◆倉庫は2階建て仕様に造作されております。
◆シャッター付き
※洪水ハザードマップ想定浸水深0.5m~3.0m未満地域に該当しておりますが 実際に水が到達したことはありません。
|
エネルギー消費性能 |
- |
断熱性能 |
- |
目安光熱費 |
- |
バス・トイレ |
トイレ2ヶ所、専有部分にトイレあり |
キッチン |
- |
設備・サービス |
プロパンガス、エアコン |
その他 |
- |
契約期間 |
2年 |
条件等 |
-
|
引渡可能時期 |
相談 |
現況 |
空 |
仲介手数料 |
1.1ヶ月 |
|
|
更新料 |
- |
物件番号 |
6987280314 |
情報公開日 |
2025年8月8日 |
次回更新予定日 |
2025年10月25日 |
ケータイ用バーコード |
- スマートフォンでこの物件を見る
- スマートフォンからもこの物件をご覧になれます。
|
※「-」と表示されている項目については、情報提供会社にご確認ください。
周辺施設 |
ファミリーマート郡山富久山町店 |
距離 |
539m |
周辺施設 |
コメリハード&グリーン富久山店 |
距離 |
695m |
周辺施設 |
セブンイレブン郡山富久山久保田店 |
距離 |
680m |
ここから簡単にお問い合わせをすることができます。
(SSLでの暗号化での送信を希望されるお客さまは
こちら
よりお問い合わせください)
お問い合わせを行う前に
「個人情報の取り扱いについて」を必ずお読みください。
「個人情報の取り扱いについて」に同意いただいた場合は「上記にご同意の上 確認画面へ進む」のボタンをクリックしてください。
個人情報の取り扱いについて
皆さまが送付された個人情報はアットホーム(株)のサーバを経由し、お問い合わせ先の不動産会社にメールまたはFAXにて転送されるためアットホーム(株)にも保管されます。アットホーム(株)で保管された個人情報の取り扱いについては、【こちら】をご覧ください。
また、本画面でご記入いただいた個人情報は、お問い合わせ先の不動産会社でも保管します。 お問い合わせ先の不動産会社が保管する個人情報の取り扱いについては、不動産会社に直接お問い合わせください。
福島県知事免許(5)第2412号 |
---|
- 交通:
- 東北新幹線/郡山駅 徒歩33分 【バス】18分 朝日一丁目 停歩1分
- 福島県郡山市朝日1丁目6-12
- TEL:
- 024-925-3930
- FAX:
- 024-925-3931
- 所属団体:
- (公社)福島県宅地建物取引業協会会員東北地区不動産公正取引協議会加盟
取引態様:代理  - 20002820
|
- スマートフォンで
この不動産会社を見る

|
- 提携サイト等より掲載されている物件情報につきましては、不動産会社詳細情報にリンクされていないものがあります。
- 物件に関するお問合せは、物件詳細ページの「情報提供会社」に表示されている不動産会社へ直接お願いいたします。
- 間取図は、現況を優先させていただきます。
- 映像は物件の一部を撮影したものです。物件の契約にあたっての最終判断はご自身の判断に基づいて行ってください。
- 仲介手数料について

アットホームは物件情報の適正化に努めております。
内容に誤りがある場合にはこちらへご連絡ください。