埼玉県さいたま市大宮区上小町(大宮駅)の貸事務所:物件詳細
交通 所在地 |
駅徒歩 |
賃料 管理費等 |
敷金/保証金 礼金 |
使用部分面積 坪数/坪単価 |
物件種目 築年月 |
湘南新宿ライン(宇都宮〜逗子)/大宮
埼玉県さいたま市大宮区上小町
|
14分
|
49.5万円
123,750円
|
なし / 6ヶ月
なし
|
124.03m²
37.51坪/1.3194万円
|
貸事務所
1985年10月(築40年1ヶ月)
|
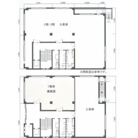
間取図
|
外観
|
その他の画像
|
交通 | 湘南新宿ライン(宇都宮〜逗子) 大宮駅 徒歩14分 |
所在地 |
埼玉県さいたま市大宮区上小町
|
物件種目 |
貸事務所 |
賃料 |
49.5万円 |
管理費等 |
123,750円 |
敷金 / 保証金 |
なし / 6ヶ月 |
礼金 |
なし |
敷引 |
- |
坪単価 |
1.3194万円 |
保証金償却 |
- |
権利金 |
- |
造作譲渡 |
- |
その他一時金 |
- |
維持費等 |
- |
保険等 |
- |
使用部分面積 |
124.03m² |
坪数 |
37.51坪 |
築年月 |
1985年10月(築40年1ヶ月)
|
階建 / 階 |
3階建 / 1階 |
駐車場 |
有 13,200円/月(空き5台) |
バイク置き場 |
- |
駐輪場 |
- |
土地面積 |
- |
接道状況 |
-
|
用途地域 |
- |
間取り |
- |
建物構造 |
RC |
建物名・部屋番号 |
倉持興業ビル 南 |
リフォーム履歴 |
- |
リノベーション履歴 |
- |
特記事項 |
飲食店不可 |
備考 |
管理形態/管理員の勤務形態:-/-
大宮西口の駅前通り
現況は事務所仕様です。光ケーブル。
|
エネルギー消費性能 |
- |
断熱性能 |
- |
目安光熱費 |
- |
バス・トイレ |
共用部分にトイレあり |
キッチン |
- |
設備・サービス |
個別空調、給湯 |
その他 |
エレベーター |
契約期間 |
2年 |
条件等 |
-
|
引渡可能時期 |
即時 |
現況 |
空 |
仲介手数料 |
1ヶ月 |
|
|
更新料 |
なし |
物件番号 |
6987418739 |
情報公開日 |
2025年8月25日 |
次回更新予定日 |
2025年10月25日 |
ケータイ用バーコード |
- スマートフォンでこの物件を見る
- スマートフォンからもこの物件をご覧になれます。
|
※「-」と表示されている項目については、情報提供会社にご確認ください。
ここから簡単にお問い合わせをすることができます。
(SSLでの暗号化での送信を希望されるお客さまは
こちら
よりお問い合わせください)
お問い合わせを行う前に
「個人情報の取り扱いについて」を必ずお読みください。
「個人情報の取り扱いについて」に同意いただいた場合は「上記にご同意の上 確認画面へ進む」のボタンをクリックしてください。
個人情報の取り扱いについて
皆さまが送付された個人情報はアットホーム(株)のサーバを経由し、お問い合わせ先の不動産会社にメールまたはFAXにて転送されるためアットホーム(株)にも保管されます。アットホーム(株)で保管された個人情報の取り扱いについては、【こちら】をご覧ください。
また、本画面でご記入いただいた個人情報は、お問い合わせ先の不動産会社でも保管します。 お問い合わせ先の不動産会社が保管する個人情報の取り扱いについては、不動産会社に直接お問い合わせください。
国土交通大臣免許(3)第8747号 |
---|
- 交通:
- JR京浜東北線/大宮駅 徒歩7分
- 埼玉県さいたま市大宮区桜木町2丁目328-1 フォルトゥーナ桜木101
- TEL:
- 048-650-1777
- FAX:
- 048-650-1788
- 所属団体:
- (公社)東京都宅地建物取引業協会会員(公社)首都圏不動産公正取引協議会加盟
取引態様:仲介  - 00162073
|
- スマートフォンで
この不動産会社を見る

|
- 提携サイト等より掲載されている物件情報につきましては、不動産会社詳細情報にリンクされていないものがあります。
- 物件に関するお問合せは、物件詳細ページの「情報提供会社」に表示されている不動産会社へ直接お願いいたします。
- 間取図は、現況を優先させていただきます。
- 映像は物件の一部を撮影したものです。物件の契約にあたっての最終判断はご自身の判断に基づいて行ってください。
- 仲介手数料について

アットホームは物件情報の適正化に努めております。
内容に誤りがある場合にはこちらへご連絡ください。