福岡県北九州市小倉北区室町1丁目(西小倉駅)の貸事務所:物件詳細
交通 所在地 |
駅徒歩 |
賃料 管理費等 |
敷金/保証金 礼金 |
使用部分面積 坪数/坪単価 |
物件種目 築年月 |
|
JR鹿児島本線/西小倉
福岡県北九州市小倉北区室町1丁目
|
6分
|
要確認
|
要確認
|
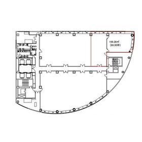
199.34m²
60.30坪/要確認
|
貸事務所
2003年4月(築22年9ヶ月)
|
|
間取図
|
外観
|
<
その他の画像
>
|
| 交通 | JR鹿児島本線 西小倉駅 徒歩6分 |
|---|
| その他の交通 | 北九州モノレール 平和通駅 徒歩10分 北九州モノレール 小倉駅 徒歩11分 |
| 所在地 |
福岡県北九州市小倉北区室町1丁目
|
| 物件種目 |
貸事務所 |
| 賃料 |
要確認 |
管理費等 |
要確認 |
| 敷金 / 保証金 |
要確認 |
礼金 |
要確認 |
| 敷引 |
要確認 |
坪単価 |
要確認 |
| 保証金償却 |
要確認 |
権利金 |
- |
| 造作譲渡 |
- |
その他一時金 |
- |
| 維持費等 |
- |
保険等 |
要 |
| 使用部分面積 |
199.34m² |
坪数 |
60.30坪 |
| 築年月 |
2003年4月(築22年9ヶ月)
|
階建 / 階 |
地上14階地下1階建 / 11階 |
| 駐車場 |
有 16,500円/月 |
バイク置き場 |
- |
| 駐輪場 |
- |
土地面積 |
- |
| 接道状況 |
-
|
用途地域 |
- |
| 間取り |
- |
建物構造 |
SRC |
| アピールポイント |
小倉のシンボルビルです。
リバーウォーク北九州内のオフィス区画の御紹介です。
天井高2,700mm・OAフロア・個別空調・男女別トイレ・光ファイバー等、
オフィスに必要な設備を備えた、小倉エリアの著名な建物になります。
是非一度お問い合わせください。 |
| 建物名・部屋番号 |
リバーウォーク北九州ビル |
| リフォーム履歴 |
- |
| リノベーション履歴 |
- |
| 特記事項 |
24時間利用可、土曜日利用可、土日・祝日利用可、OAフロア、飲食店不可、24時間セキュリティー、天井高2.5M以上 |
| 備考 |
管理形態/管理員の勤務形態:-/-
|
| エネルギー消費性能 |
- |
| 断熱性能 |
- |
| 目安光熱費 |
- |
| バス・トイレ |
共用部分に男女別トイレあり |
| キッチン |
- |
| 設備・サービス |
個別空調、光ファイバー |
| その他 |
エレベーター2基以上、エレベーター |
| 契約期間 |
要確認 |
条件等 |
-
|
| 引渡可能時期 |
即時 |
現況 |
空 |
| 更新料 |
要確認 |
物件番号 |
6987440363 |
| 情報公開日 |
2025年8月26日 |
次回更新予定日 |
2025年12月29日 |
| ケータイ用バーコード |
- スマートフォンでこの物件を見る
- スマートフォンからもこの物件をご覧になれます。
|
※「-」と表示されている項目については、情報提供会社にご確認ください。
| 周辺施設 |
リバーウォーク北九州 |
| 距離 |
12m |
写真を見る |
| 周辺施設 |
ファミリーマートリバーウォーク店 |
| 距離 |
19m |
写真を見る |
| 周辺施設 |
セブンイレブン西小倉駅前店 |
| 距離 |
372m |
写真を見る |
| 周辺施設 |
小倉室町郵便局 |
| 距離 |
176m |
写真を見る |
| 周辺施設 |
福岡中央銀行小倉支店 |
| 距離 |
112m |
写真を見る |
| 周辺施設 |
西日本シティ銀行室町支店 |
| 距離 |
325m |
写真を見る |
| 周辺施設 |
フェルトパーク室町2 |
| 距離 |
198m |
写真を見る |
ここから簡単にお問い合わせをすることができます。
(SSLでの暗号化での送信を希望されるお客さまは
こちら
よりお問い合わせください)
お問い合わせを行う前に
「個人情報の取り扱いについて」を必ずお読みください。
「個人情報の取り扱いについて」に同意いただいた場合は「上記にご同意の上 確認画面へ進む」のボタンをクリックしてください。
個人情報の取り扱いについて
皆さまが送付された個人情報はアットホーム(株)のサーバを経由し、お問い合わせ先の不動産会社にメールまたはFAXにて転送されるためアットホーム(株)にも保管されます。アットホーム(株)で保管された個人情報の取り扱いについては、【こちら】をご覧ください。
また、本画面でご記入いただいた個人情報は、お問い合わせ先の不動産会社でも保管します。 お問い合わせ先の不動産会社が保管する個人情報の取り扱いについては、不動産会社に直接お問い合わせください。
国土交通大臣免許(4)第7938号 |
|---|
- 交通:
- 西鉄天神大牟田線/西鉄福岡(天神)駅 徒歩2分
- 福岡県福岡市中央区天神1丁目6-8 天神ツインビル4F
- TEL:
- 092-791-5500
- FAX:
- 092-791-5511
- 所属団体:
- (公社)全日本不動産協会会員(一社)九州不動産公正取引協議会加盟
取引態様:仲介  - 80506897
|
- スマートフォンで
この不動産会社を見る

|
- 提携サイト等より掲載されている物件情報につきましては、不動産会社詳細情報にリンクされていないものがあります。
- 物件に関するお問合せは、物件詳細ページの「情報提供会社」に表示されている不動産会社へ直接お願いいたします。
- 間取図は、現況を優先させていただきます。
- 映像は物件の一部を撮影したものです。物件の契約にあたっての最終判断はご自身の判断に基づいて行ってください。
- 仲介手数料について

アットホームは物件情報の適正化に努めております。
内容に誤りがある場合にはこちらへご連絡ください。