東京都新宿区西新宿7丁目(西新宿駅)の貸事務所:物件詳細
交通 所在地 |
駅徒歩 |
賃料 管理費等 |
敷金/保証金 礼金 |
使用部分面積 坪数/坪単価 |
物件種目 築年月 |
東京メトロ丸ノ内線/西新宿
東京都新宿区西新宿7丁目
|
6分
|
13.2万円
11,000円
|
なし / 3ヶ月
1ヶ月
|
33.00m²
9.98坪/1.3224万円
|
貸事務所
1971年12月(築53年11ヶ月)
|
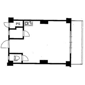
間取図
|
外観
|
<
その他の画像
>
|
交通 | 東京メトロ丸ノ内線 西新宿駅 徒歩6分 |
---|
その他の交通 | 都営大江戸線 新宿西口駅 徒歩9分 西武新宿線 西武新宿駅 徒歩11分 |
所在地 |
東京都新宿区西新宿7丁目
|
物件種目 |
貸事務所 |
賃料 |
13.2万円 |
管理費等 |
11,000円 |
敷金 / 保証金 |
なし / 3ヶ月 |
礼金 |
1ヶ月 |
敷引 |
- |
坪単価 |
1.3224万円 |
保証金償却 |
解約時1ヶ月 |
権利金 |
- |
造作譲渡 |
- |
その他一時金 |
- |
維持費等 |
- |
保険等 |
- |
使用部分面積 |
33.00m² |
坪数 |
9.98坪 |
築年月 |
1971年12月(築53年11ヶ月)
|
階建 / 階 |
地上9階地下1階建 / 3階 |
駐車場 |
- |
バイク置き場 |
- |
駐輪場 |
- |
土地面積 |
- |
接道状況 |
-
|
用途地域 |
- |
間取り |
- |
建物構造 |
SRC |
アピールポイント |
新宿駅徒歩圏内の物件!複数路線利用可能です。 |
建物名・部屋番号 |
興亜第2マンション 302 |
リフォーム履歴 |
- |
リノベーション履歴 |
- |
特記事項 |
- |
備考 |
賃貸保証等:加入要(別途保証委託料要)
管理形態/管理員の勤務形態:-/-
【税率10%算出。税率変動に準ず】
※保証会社加入必須
|
エネルギー消費性能 |
- |
断熱性能 |
- |
目安光熱費 |
- |
バス・トイレ |
専有部分にトイレあり |
キッチン |
- |
設備・サービス |
個別空調、給湯、エアコン、暖房、冷房、光ファイバー |
その他 |
エレベーター |
契約期間 |
2年 |
条件等 |
定期借家
|
引渡可能時期 |
即時 |
現況 |
空 |
仲介手数料 |
1ヶ月 |
|
|
更新料 |
- |
物件番号 |
6987457595 |
情報公開日 |
2025年8月28日 |
次回更新予定日 |
2025年10月24日 |
ケータイ用バーコード |
- スマートフォンでこの物件を見る
- スマートフォンからもこの物件をご覧になれます。
|
※「-」と表示されている項目については、情報提供会社にご確認ください。
周辺施設 |
まいばすけっと西新宿7丁目店 |
距離 |
367m |
写真を見る |
周辺施設 |
ファミリーマート西新宿柏木公園前店 |
距離 |
432m |
写真を見る |
周辺施設 |
やよい軒新宿小滝橋通り店 |
距離 |
344m |
写真を見る |
周辺施設 |
松屋小滝橋通り店 |
距離 |
404m |
写真を見る |
周辺施設 |
バーガーキング新宿小滝橋店 |
距離 |
387m |
写真を見る |
周辺施設 |
Can★Do西新宿店 |
距離 |
368m |
写真を見る |
周辺施設 |
西新宿七郵便局 |
距離 |
490m |
写真を見る |
周辺施設 |
東邦銀行新宿支店 |
距離 |
492m |
写真を見る |
ここから簡単にお問い合わせをすることができます。
(SSLでの暗号化での送信を希望されるお客さまは
こちら
よりお問い合わせください)
お問い合わせを行う前に
「個人情報の取り扱いについて」を必ずお読みください。
「個人情報の取り扱いについて」に同意いただいた場合は「上記にご同意の上 確認画面へ進む」のボタンをクリックしてください。
個人情報の取り扱いについて
皆さまが送付された個人情報はアットホーム(株)のサーバを経由し、お問い合わせ先の不動産会社にメールまたはFAXにて転送されるためアットホーム(株)にも保管されます。アットホーム(株)で保管された個人情報の取り扱いについては、【こちら】をご覧ください。
また、本画面でご記入いただいた個人情報は、お問い合わせ先の不動産会社でも保管します。 お問い合わせ先の不動産会社が保管する個人情報の取り扱いについては、不動産会社に直接お問い合わせください。
東京都知事免許(5)第79601号 |
---|
- 交通:
- JR総武線/新宿駅 徒歩5分
- 東京都渋谷区代々木2丁目13-6 YU-WAビル2階
- TEL:
- 03-5308-4666
- FAX:
- 03-5308-4667
- 所属団体:
- (公社)全日本不動産協会会員(公社)首都圏不動産公正取引協議会加盟
取引態様:仲介  - 00275533
|
- スマートフォンで
この不動産会社を見る

|
- 提携サイト等より掲載されている物件情報につきましては、不動産会社詳細情報にリンクされていないものがあります。
- 物件に関するお問合せは、物件詳細ページの「情報提供会社」に表示されている不動産会社へ直接お願いいたします。
- 間取図は、現況を優先させていただきます。
- 映像は物件の一部を撮影したものです。物件の契約にあたっての最終判断はご自身の判断に基づいて行ってください。
- 仲介手数料について

アットホームは物件情報の適正化に努めております。
内容に誤りがある場合にはこちらへご連絡ください。