不動産 賃貸 マンション等の住宅情報:埼玉住まい情報


山口県周南市住崎町(徳山駅)の貸事務所:物件詳細

  • 物件詳細
  • 情報の見方
  • 印刷用画面
交通
所在地
駅徒歩 賃料
管理費等
敷金/保証金
礼金
使用部分面積
坪数/坪単価
物件種目
築年月

山陽新幹線/徳山

山口県周南市住崎町

2分

要確認

要確認

41.75m²

12.62坪/要確認

貸事務所

2022年7月(築3年9ヶ月)

おすすめコメント  スタッフ: 猪川 未来

◆JR徳山駅南口ロータリーに面している2022年7月竣工築浅オフィスビル◆天井高2,650mmと開放感のある事務所◆OAフロア、個別空調、機械警備、自動販売機等設備有!

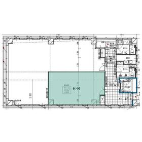
間取図

間取図

外観

外観

<
その他の画像
  • 外観
  • 玄関
  • 共有部分
  • 共有部分
  • 室内
  • 室内
  • 室内
  • 室内
  • 室内
  • 洗面
  • キッチン
  • トイレ
  • その他
  • 周辺環境
  • コンビニ
  • コンビニ
  • 郵便局
  • 銀行
  • 銀行
  • 銀行
  • 役所
>
    • とりあえず保存
    • お問い合わせ
    交通

    山陽新幹線 徳山駅 徒歩2分

    その他の交通

    JR山陽本線 徳山駅 徒歩3分

    岩徳線 徳山駅 徒歩3分

    所在地 山口県周南市住崎町
    物件種目 貸事務所
    賃料 要確認 管理費等 要確認
    敷金 / 保証金 要確認 礼金 要確認
    敷引 要確認 坪単価 要確認
    保証金償却 要確認 権利金
    造作譲渡 その他一時金
    維持費等 保険等
    使用部分面積 41.75m² 坪数 12.62坪
    築年月 2022年7月(築3年9ヶ月) 階建 / 階 7階建 / 6階
    駐車場 バイク置き場
    駐輪場 土地面積
    接道状況 用途地域
    間取り 建物構造 RC
    アピールポイント 周南市中心部エリアは弊社にお任せください!
    山口県周南市・JR徳山駅の南側すぐそばの好立地にございます!
    2022年7月竣工の7階建てオフィスビルの最上階部分のご紹介です。
    築浅物件の為、共用部は清潔感があり、貸室内は天井高2,650mmと開放感があります。
    貸室からは海を眺めることができます!
    OAフロア、個別空調、機会警備等も設備されており快適にお仕事をしていただけます!
    建物名・部屋番号 AZURE徳山ビル
    リフォーム履歴
    リノベーション履歴
    特記事項 24時間利用可、OAフロア、24時間セキュリティー、天井高2.5M以上
    備考
    管理形態/管理員の勤務形態:-/-
    エネルギー消費性能
    断熱性能
    目安光熱費
    バス・トイレ 共用部分に男女別トイレあり
    キッチン
    設備・サービス 個別空調、エアコン、インターネット対応、光ファイバー
    その他 エレベーター
    契約期間 要確認 条件等
    引渡可能時期 2026年3月予定 現況 使用中
    更新料 要確認 物件番号 6987534507
    情報公開日 2025年9月4日 次回更新予定日 2026年4月2日
    ケータイ用バーコード

    QRコード

    スマートフォンでこの物件を見る
    スマートフォンからもこの物件をご覧になれます。
    ※「-」と表示されている項目については、情報提供会社にご確認ください。

    この物件の周辺情報

    周辺施設 アルパーク天満屋周南ショップ
    距離 382m
    周辺施設 セブンイレブンハートインJR徳山駅新幹線口店
    距離 67m
    周辺施設 セブンイレブン周南築港町店
    距離 245m
    周辺施設 徳山有楽町郵便局
    距離 594m
    周辺施設 みずほ銀行徳山支店
    距離 539m
    周辺施設 山口銀行徳山駅前支店
    距離 389m
    周辺施設 三菱UFJ銀行徳山支店
    距離 551m
    周辺施設 周南市役所
    距離 1066m

    クイックお問い合わせ

    ここから簡単にお問い合わせをすることができます。
    (SSLでの暗号化での送信を希望されるお客さまは こちら よりお問い合わせください)

    お問い合わせ内容(必須)
    物件のお問い合わせ理由(必須)
    お名前・ご担当者様名(必須) 姓  名 
    メールアドレス(必須)
    ※携帯電話のメールアドレスをご入力される方はこちらをご確認ください
    電話番号(必須)
    - -

    ※入力いただいた電話番号へSMSまたは音声でパスワードをご連絡します。

    携帯電話の番号をご入力の方へ

    携帯電話の番号をご入力の方へ
    確認画面にて送信ボタンをクリックするとSMSが携帯電話に届きます。
    そのSMSに記載のパスワード(認証番号)を入力し、お問い合わせを完了してください。
    尚、SMSの送信者番号は 0005 202 760 となります。
    これはアットホームの固定番号です。

    備考欄 希望条件、物件案内希望日、質問などがございましたらご記入ください。
    お問い合わせを行う前に「個人情報の取り扱いについて」を必ずお読みください。
    「個人情報の取り扱いについて」に同意いただいた場合は「上記にご同意の上 確認画面へ進む」のボタンをクリックしてください。

    個人情報の取り扱いについて

    皆さまが送付された個人情報はアットホーム(株)のサーバを経由し、お問い合わせ先の不動産会社にメールまたはFAXにて転送されるためアットホーム(株)にも保管されます。アットホーム(株)で保管された個人情報の取り扱いについては、【こちら】をご覧ください。
    また、本画面でご記入いただいた個人情報は、お問い合わせ先の不動産会社でも保管します。 お問い合わせ先の不動産会社が保管する個人情報の取り扱いについては、不動産会社に直接お問い合わせください。

    情報提供会社

    情報提供会社

    (株)クイックコンサルティング 広島支店

    国土交通大臣免許(4)第7938号

    交通:
    広島電鉄本線/紙屋町東駅 徒歩3分
    広島県広島市中区立町2-23 野村不動産広島ビル6F
    TEL:
    082-242-6600
    FAX:
    082-242-6602
    所属団体:
    (公社)全日本不動産協会会員
    中国地区不動産公正取引協議会加盟

    取引態様:仲介

    • 会社情報
    • 50108329
    スマートフォンで
    この不動産会社を見る
    QRコード
    • とりあえず保存
    • お問い合わせ
    • 提携サイト等より掲載されている物件情報につきましては、不動産会社詳細情報にリンクされていないものがあります。
    • 物件に関するお問合せは、物件詳細ページの「情報提供会社」に表示されている不動産会社へ直接お願いいたします。
    • 間取図は、現況を優先させていただきます。
    • 映像は物件の一部を撮影したものです。物件の契約にあたっての最終判断はご自身の判断に基づいて行ってください。
    • 仲介手数料について仲介手数料

    アットホームは物件情報の適正化に努めております。 内容に誤りがある場合にはこちらへご連絡ください。

    【埼玉住まい情報】では、日本全国の物件から賃貸マンションや賃貸アパート・賃貸一戸建て等の賃貸住宅情報、新築マンション・分譲マンションや中古マンション等の売買マンション情報、新築一戸建てや中古一戸建てなどの戸建住宅、 土地など、総合的な不動産住宅情報検索サービスを提供致します。
    【埼玉住まい情報】から、選りすぐりの不動産物件を探してみましょう。

    【免責事項】
    このコーナーの運営はアットホーム株式会社(https://www.athome.co.jp/)が行っています。
    このコーナーに掲載している物件情報は、「アットホーム不動産情報ネットワーク」に加盟する不動産会社等(情報提供元)から提供されています。信頼性の高い情報提供が行えるよう、最大限の努力をしておりますが、その内容を保証するものではありません。 利用者のみなさまと各情報提供元との取引に起因する損害および情報が掲載されたことに起因する損害等については、株式会社イーシティ埼玉、およびアットホームは一切責任を負いません。
    各物件情報の内容や画像等はすべて現況を優先させていただきます。
    お取引等(お取引の準備、資金調達等を含みます)の際には、内容や契約条件等について、各情報提供元より十分な説明を受け、ご自身でご確認の上、判断してください。
    このコーナーへの物件情報のご掲載、その他不動産業務ソリューション等についての不動産会社様のお問合せはこちらからお願いいたします。

    物件画像: