広島県広島市中区大手町3丁目(市役所前駅)の貸事務所:物件詳細
交通 所在地 |
駅徒歩 |
賃料 管理費等 |
敷金/保証金 礼金 |
使用部分面積 坪数/坪単価 |
物件種目 築年月 |
|
広島電鉄宇品線/市役所前
広島県広島市中区大手町3丁目
|
3分
|
要確認
|
要確認
|
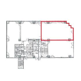
95.37m²
28.84坪/要確認
|
貸事務所
1991年3月(築34年8ヶ月)
|
|
間取図
|
外観
|
<
その他の画像
>
|
| 交通 | 広島電鉄宇品線 市役所前駅 徒歩3分 |
|---|
| その他の交通 | 広島電鉄宇品線 中電前駅 徒歩3分 広島電鉄宇品線 袋町駅 徒歩7分 |
| 所在地 |
広島県広島市中区大手町3丁目
|
| 物件種目 |
貸事務所 |
| 賃料 |
要確認 |
管理費等 |
要確認 |
| 敷金 / 保証金 |
要確認 |
礼金 |
要確認 |
| 敷引 |
要確認 |
坪単価 |
要確認 |
| 保証金償却 |
要確認 |
権利金 |
- |
| 造作譲渡 |
- |
その他一時金 |
- |
| 維持費等 |
- |
保険等 |
要 |
| 使用部分面積 |
95.37m² |
坪数 |
28.84坪 |
| 築年月 |
1991年3月(築34年8ヶ月)
|
階建 / 階 |
12階建 / 11階 |
| 駐車場 |
有 30,800円/月 敷金2ヶ月 |
バイク置き場 |
- |
| 駐輪場 |
- |
土地面積 |
- |
| 接道状況 |
-
|
用途地域 |
- |
| 間取り |
- |
建物構造 |
SRC |
| アピールポイント |
中区大手町の12階建てオフィスビルのご紹介です!
1991年竣工の新耐震基準のオフィスビルで、鯉城通りに面しており視認性良好です。
近くには郵便局・市役所・区役所・銀行などの主要施設が揃っているため利用しやすいです。
OAフロア・機械警備が設備されており、オフィス環境が整っています。
1階には印刷屋さんが入居しており、名刺などの書類作成に便利です! |
| 建物名・部屋番号 |
大手町中央ビル |
| リフォーム履歴 |
- |
| リノベーション履歴 |
- |
| 特記事項 |
24時間利用可、土曜日利用可、土日・祝日利用可、OAフロア、24時間セキュリティー、天井高2.5M以上 |
| 備考 |
管理形態/管理員の勤務形態:-/-
|
| エネルギー消費性能 |
- |
| 断熱性能 |
- |
| 目安光熱費 |
- |
| バス・トイレ |
共用部分に男女別トイレあり |
| キッチン |
- |
| 設備・サービス |
個別空調、防犯カメラ、エアコン、インターネット対応、光ファイバー |
| その他 |
エレベーター2基以上、エレベーター |
| 契約期間 |
要確認 |
条件等 |
-
|
| 引渡可能時期 |
2025年12月予定 |
現況 |
使用中 |
| 更新料 |
要確認 |
物件番号 |
6987534639 |
| 情報公開日 |
2025年9月4日 |
次回更新予定日 |
2025年10月30日 |
| ケータイ用バーコード |
- スマートフォンでこの物件を見る
- スマートフォンからもこの物件をご覧になれます。
|
※「-」と表示されている項目については、情報提供会社にご確認ください。
| 周辺施設 |
セブンイレブン広島中央郵便局前店 |
| 距離 |
8m |
写真を見る |
| 周辺施設 |
ファミリーマート広島ロイネット店 |
| 距離 |
138m |
写真を見る |
| 周辺施設 |
ローソン広島大手町店 |
| 距離 |
154m |
写真を見る |
| 周辺施設 |
広島中央郵便局 |
| 距離 |
183m |
写真を見る |
| 周辺施設 |
広島銀行広島市役所支店 |
| 距離 |
313m |
写真を見る |
| 周辺施設 |
マツモトキヨシ大手町店 |
| 距離 |
406m |
写真を見る |
| 周辺施設 |
広島市中区役所 |
| 距離 |
222m |
写真を見る |
ここから簡単にお問い合わせをすることができます。
(SSLでの暗号化での送信を希望されるお客さまは
こちら
よりお問い合わせください)
お問い合わせを行う前に
「個人情報の取り扱いについて」を必ずお読みください。
「個人情報の取り扱いについて」に同意いただいた場合は「上記にご同意の上 確認画面へ進む」のボタンをクリックしてください。
個人情報の取り扱いについて
皆さまが送付された個人情報はアットホーム(株)のサーバを経由し、お問い合わせ先の不動産会社にメールまたはFAXにて転送されるためアットホーム(株)にも保管されます。アットホーム(株)で保管された個人情報の取り扱いについては、【こちら】をご覧ください。
また、本画面でご記入いただいた個人情報は、お問い合わせ先の不動産会社でも保管します。 お問い合わせ先の不動産会社が保管する個人情報の取り扱いについては、不動産会社に直接お問い合わせください。
国土交通大臣免許(4)第7938号 |
|---|
- 交通:
- 広島電鉄本線/紙屋町東駅 徒歩3分
- 広島県広島市中区立町2-23 野村不動産広島ビル6F
- TEL:
- 082-242-6600
- FAX:
- 082-242-6602
- 所属団体:
- (公社)全日本不動産協会会員中国地区不動産公正取引協議会加盟
取引態様:仲介  - 50108329
|
- スマートフォンで
この不動産会社を見る

|
- 提携サイト等より掲載されている物件情報につきましては、不動産会社詳細情報にリンクされていないものがあります。
- 物件に関するお問合せは、物件詳細ページの「情報提供会社」に表示されている不動産会社へ直接お願いいたします。
- 間取図は、現況を優先させていただきます。
- 映像は物件の一部を撮影したものです。物件の契約にあたっての最終判断はご自身の判断に基づいて行ってください。
- 仲介手数料について

アットホームは物件情報の適正化に努めております。
内容に誤りがある場合にはこちらへご連絡ください。