広島県広島市安佐南区中須2丁目(古市駅)の貸事務所:物件詳細
交通 所在地 |
駅徒歩 |
賃料 管理費等 |
敷金/保証金 礼金 |
使用部分面積 坪数/坪単価 |
物件種目 築年月 |
|
広島高速交通アストラムライン/古市
広島県広島市安佐南区中須2丁目
|
4分
|
16.5万円
3,300円
|
3ヶ月 / なし
1ヶ月
|
80.00m²
24.19坪/0.6819万円
|
貸事務所
1988年8月(築37年5ヶ月)
|
| 交通 | 広島高速交通アストラムライン 古市駅 徒歩4分 |
|---|
| その他の交通 | 可部線 大町駅 徒歩9分 広島高速交通アストラムライン 大町駅 徒歩9分 |
| 所在地 |
広島県広島市安佐南区中須2丁目
|
| 物件種目 |
貸事務所 |
| 賃料 |
16.5万円 |
管理費等 |
3,300円 |
| 敷金 / 保証金 |
3ヶ月 / なし |
礼金 |
1ヶ月 |
| 敷引 |
- |
坪単価 |
0.6819万円 |
| 保証金償却 |
- |
権利金 |
- |
| 造作譲渡 |
- |
その他一時金 |
- |
| 維持費等 |
- |
保険等 |
- |
| 使用部分面積 |
80.00m² |
坪数 |
24.19坪 |
| 築年月 |
1988年8月(築37年5ヶ月)
|
階建 / 階 |
4階建 / 4階 |
| 駐車場 |
有 9,900円/月(空き2台) |
バイク置き場 |
- |
| 駐輪場 |
- |
土地面積 |
- |
| 接道状況 |
-
|
用途地域 |
- |
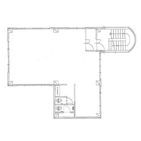
| 間取り |
- |
建物構造 |
RC |
| アピールポイント |
★ 現地待ち合わせ致します。お気軽にお問合せ下さい。
★ ホームページにて物件多数掲載中。
★ ホームページにて360度パノラマなど豊富に御座います。
★ 賃料・敷金・諸条件などお気軽にご相談下さい |
| 建物名・部屋番号 |
|
| リフォーム履歴 |
- |
| リノベーション履歴 |
- |
| 特記事項 |
1フロア1テナント、最上階、耐震構造(新耐震基準) |
| 備考 |
管理形態/管理員の勤務形態:-/-
★☆★☆★☆★☆★☆★☆★☆★☆
広島のテナント専門会社で御座います。
条件交渉や物件提案など幅広くお客様にご対応させて頂きます。
現地待ち合わせなど、精力的に受付させて頂きます。
是非、お気軽にお問合せ下さいませ。
★☆★☆★☆★☆★☆★☆★☆★☆
|
| エネルギー消費性能 |
- |
| 断熱性能 |
- |
| 目安光熱費 |
- |
| バス・トイレ |
トイレ |
| キッチン |
- |
| 設備・サービス |
エアコン、光ファイバー |
| その他 |
- |
| 契約期間 |
2年 |
条件等 |
-
|
| 引渡可能時期 |
即時 |
現況 |
空 |
| 更新料 |
- |
物件番号 |
6987622510 |
| 情報公開日 |
2025年9月11日 |
次回更新予定日 |
2025年12月25日 |
| ケータイ用バーコード |
- スマートフォンでこの物件を見る
- スマートフォンからもこの物件をご覧になれます。
|
※「-」と表示されている項目については、情報提供会社にご確認ください。
ここから簡単にお問い合わせをすることができます。
(SSLでの暗号化での送信を希望されるお客さまは
こちら
よりお問い合わせください)
お問い合わせを行う前に
「個人情報の取り扱いについて」を必ずお読みください。
「個人情報の取り扱いについて」に同意いただいた場合は「上記にご同意の上 確認画面へ進む」のボタンをクリックしてください。
個人情報の取り扱いについて
皆さまが送付された個人情報はアットホーム(株)のサーバを経由し、お問い合わせ先の不動産会社にメールまたはFAXにて転送されるためアットホーム(株)にも保管されます。アットホーム(株)で保管された個人情報の取り扱いについては、【こちら】をご覧ください。
また、本画面でご記入いただいた個人情報は、お問い合わせ先の不動産会社でも保管します。 お問い合わせ先の不動産会社が保管する個人情報の取り扱いについては、不動産会社に直接お問い合わせください。
広島県知事免許(1)第11152号 |
|---|
- 交通:
- JR山陽本線/広島駅 徒歩10分
- 広島県広島市東区若草町1-19 スペースビル202
- TEL:
- 082-207-2933
- FAX:
- 082-207-2932
- 所属団体:
- (公社)全日本不動産協会会員中国地区不動産公正取引協議会加盟
取引態様:仲介  - 50106137
|
- スマートフォンで
この不動産会社を見る

|
- 提携サイト等より掲載されている物件情報につきましては、不動産会社詳細情報にリンクされていないものがあります。
- 物件に関するお問合せは、物件詳細ページの「情報提供会社」に表示されている不動産会社へ直接お願いいたします。
- 間取図は、現況を優先させていただきます。
- 映像は物件の一部を撮影したものです。物件の契約にあたっての最終判断はご自身の判断に基づいて行ってください。
- 仲介手数料について

アットホームは物件情報の適正化に努めております。
内容に誤りがある場合にはこちらへご連絡ください。