岡山県瀬戸内市邑久町尾張(邑久駅)の貸事務所:物件詳細
交通 所在地 |
駅徒歩 |
賃料 管理費等 |
敷金/保証金 礼金 |
使用部分面積 坪数/坪単価 |
物件種目 築年月 |
|
JR赤穂線/邑久
岡山県瀬戸内市邑久町尾張
|
5分
|
9.9万円
3,000円
|
1ヶ月 / なし
1ヶ月
|
61.28m²
18.53坪/0.5341万円
|
貸事務所
1991年2月(築34年9ヶ月)
|
|
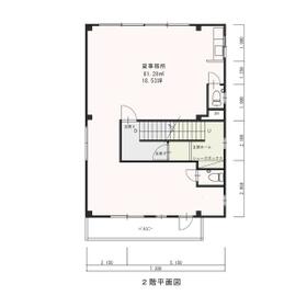
間取図
61.28㎡(18.53坪)
|
外観
瀬戸内市役所すぐ西側のビル2階部分です
|
<
その他の画像
>
|
| 交通 | JR赤穂線 邑久駅 徒歩5分 |
|---|
| その他の交通 | 【バス】 市営バス『瀬戸内市役所前』 停歩1分 |
| 所在地 |
岡山県瀬戸内市邑久町尾張
|
| 物件種目 |
貸事務所 |
| 賃料 |
9.9万円 |
管理費等 |
3,000円 |
| 敷金 / 保証金 |
1ヶ月 / なし |
礼金 |
1ヶ月 |
| 敷引 |
- |
坪単価 |
0.5341万円 |
| 保証金償却 |
- |
権利金 |
- |
| 造作譲渡 |
- |
その他一時金 |
なし |
| 維持費等 |
- |
保険等 |
要 |
| 使用部分面積 |
61.28m² |
坪数 |
18.53坪 |
| 築年月 |
1991年2月(築34年9ヶ月)
|
階建 / 階 |
3階建 / 2階 |
| 駐車場 |
有 4,000円/月(空き1台) 敷地内1台、近隣に3台分の駐車場あり※要相談 |
バイク置き場 |
- |
| 駐輪場 |
有 無料 |
土地面積 |
168.68m²(公簿) |
| 接道状況 |
北 13.0m 公道 接面7.0m
|
用途地域 |
無指定 |
| 間取り |
ワンルーム |
建物構造 |
鉄骨造 |
| アピールポイント |
瀬戸内市役所すぐ西側のリフォーム済み貸事務所(2階部分)です!
県道沿いの利便性の良い立地で、事務所や学習塾・サロンにおすすめです!
◇お問合せは◇
【メールでお問い合わせ】ボタンまたは【0869-24-0333】までお電話ください♪ |
| 建物名・部屋番号 |
NYビル2階 |
| リフォーム履歴 |
■水回り:2025年8月 トイレ 流し台 ■内装:2025年8月 床(フローリング等)、壁・天井(クロス・塗装等)、建具(室内ドア等) ■外装:2025年8月 外壁 ※実施年月は最も古い履歴を表示 |
| リノベーション履歴 |
- |
| 特記事項 |
土日・祝日利用可、飲食店不可、1フロア1テナント、保証人不要、都道府県道沿いに面する |
| 備考 |
賃貸保証等:加入要(初回:賃料の50%又は100% 保証期間1年(更新:20,000円))
管理形態/管理員の勤務形態:-/-
主要採光面:南向き
|
| エネルギー消費性能 |
- |
| 断熱性能 |
- |
| 目安光熱費 |
- |
| バス・トイレ |
トイレ2ヶ所、専有部分にトイレあり |
| キッチン |
- |
| 設備・サービス |
エアコン2台以上 |
| その他 |
- |
| 契約期間 |
2年 |
条件等 |
-
|
| 引渡可能時期 |
即時 |
現況 |
空 |
| 適格請求書発行 |
可
|
| 更新料 |
なし |
物件番号 |
6987630342 |
| 情報公開日 |
2025年9月11日 |
次回更新予定日 |
2025年10月27日 |
| ケータイ用バーコード |
- スマートフォンでこの物件を見る
- スマートフォンからもこの物件をご覧になれます。
|
※「-」と表示されている項目については、情報提供会社にご確認ください。
| 周辺施設 |
ゆめタウン邑久 |
| 距離 |
210m |
写真を見る |
| 周辺施設 |
ハローズ邑久店 |
| 距離 |
260m |
写真を見る |
| 周辺施設 |
ローソン岡山邑久町店 |
| 距離 |
80m |
写真を見る |
| 周辺施設 |
瀬戸内市立邑久小学校 |
| 距離 |
700m |
写真を見る |
| 周辺施設 |
瀬戸内市立邑久中学校 |
| 距離 |
1100m |
写真を見る |
ここから簡単にお問い合わせをすることができます。
(SSLでの暗号化での送信を希望されるお客さまは
こちら
よりお問い合わせください)
お問い合わせを行う前に
「個人情報の取り扱いについて」を必ずお読みください。
「個人情報の取り扱いについて」に同意いただいた場合は「上記にご同意の上 確認画面へ進む」のボタンをクリックしてください。
個人情報の取り扱いについて
皆さまが送付された個人情報はアットホーム(株)のサーバを経由し、お問い合わせ先の不動産会社にメールまたはFAXにて転送されるためアットホーム(株)にも保管されます。アットホーム(株)で保管された個人情報の取り扱いについては、【こちら】をご覧ください。
また、本画面でご記入いただいた個人情報は、お問い合わせ先の不動産会社でも保管します。 お問い合わせ先の不動産会社が保管する個人情報の取り扱いについては、不動産会社に直接お問い合わせください。
岡山県知事免許(2)第5654号 |
|---|
- 交通:
- JR赤穂線/邑久駅 徒歩4分
- 岡山県瀬戸内市邑久町尾張288-2
- TEL:
- 0869-24-0333
- FAX:
- 0869-24-2882
- 所属団体:
- (公社)全日本不動産協会会員中国地区不動産公正取引協議会加盟
取引態様:貸主  - 50102708
|
- スマートフォンで
この不動産会社を見る

|
- 提携サイト等より掲載されている物件情報につきましては、不動産会社詳細情報にリンクされていないものがあります。
- 物件に関するお問合せは、物件詳細ページの「情報提供会社」に表示されている不動産会社へ直接お願いいたします。
- 間取図は、現況を優先させていただきます。
- 映像は物件の一部を撮影したものです。物件の契約にあたっての最終判断はご自身の判断に基づいて行ってください。
- 仲介手数料について

アットホームは物件情報の適正化に努めております。
内容に誤りがある場合にはこちらへご連絡ください。