埼玉県富士見市東みずほ台1丁目(みずほ台駅)の貸事務所:物件詳細
交通 所在地 |
駅徒歩 |
賃料 管理費等 |
敷金/保証金 礼金 |
使用部分面積 坪数/坪単価 |
物件種目 築年月 |
東武東上線/みずほ台
埼玉県富士見市東みずほ台1丁目
|
6分
|
19.2万円
なし
|
2ヶ月 / なし
1ヶ月
|
53.17m²
16.08坪/1.1938万円
|
貸事務所
2025年11月(新築)
|
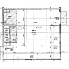
間取図
|
|
その他の画像
|
交通 | 東武東上線 みずほ台駅 徒歩6分 |
---|
その他の交通 | 東武東上線 柳瀬川駅 徒歩28分 東武東上線 鶴瀬駅 徒歩23分 |
所在地 |
埼玉県富士見市東みずほ台1丁目
|
物件種目 |
貸事務所 |
賃料 |
19.2万円 |
管理費等 |
なし |
敷金 / 保証金 |
2ヶ月 / なし |
礼金 |
1ヶ月 |
敷引 |
- |
坪単価 |
1.1938万円 |
保証金償却 |
- |
権利金 |
- |
造作譲渡 |
- |
その他一時金 |
- |
維持費等 |
- |
保険等 |
要 2年 28,500円 火財保険 |
使用部分面積 |
53.17m² |
坪数 |
16.08坪 |
築年月 |
2025年11月(新築)
|
階建 / 階 |
3階建 / 1階 |
駐車場 |
有 11,000円/月(空き1台) |
バイク置き場 |
- |
駐輪場 |
有 無料 |
土地面積 |
784.00m²(公簿) |
接道状況 |
東 8.0m 公道 接面20.4m
|
用途地域 |
1種住居 |
間取り |
- |
建物構造 |
木造 |
建物名・部屋番号 |
Bricks335 A1 |
リフォーム履歴 |
- |
リノベーション履歴 |
- |
特記事項 |
24時間利用可、土曜日利用可、土日・祝日利用可、飲食店不可 |
備考 |
賃貸保証等:加入要(保証会社初回保証料:総額賃料の100% 引落手数料:330円(税込み))/月 年間保証料:総額賃料の10%/年(法人契約の場合法人代表者の連帯保証人必須))
管理形態/管理員の勤務形態:-/-
事務所仕様、トイレ給湯室あり、駐車場・駐輪場1台づつ
看板は外壁に取り付け不可
|
エネルギー消費性能 |
- |
断熱性能 |
- |
目安光熱費 |
- |
バス・トイレ |
専有部分にトイレあり |
キッチン |
- |
設備・サービス |
プロパンガス |
その他 |
- |
契約期間 |
3年 |
条件等 |
-
|
引渡可能時期 |
2025年11月中旬予定 |
現況 |
未完成 |
更新料 |
新賃料 1ヶ月 |
物件番号 |
6987885008 |
情報公開日 |
2025年10月3日 |
次回更新予定日 |
2025年10月17日 |
ケータイ用バーコード |
- スマートフォンでこの物件を見る
- スマートフォンからもこの物件をご覧になれます。
|
※「-」と表示されている項目については、情報提供会社にご確認ください。
ここから簡単にお問い合わせをすることができます。
(SSLでの暗号化での送信を希望されるお客さまは
こちら
よりお問い合わせください)
お問い合わせを行う前に
「個人情報の取り扱いについて」を必ずお読みください。
「個人情報の取り扱いについて」に同意いただいた場合は「上記にご同意の上 確認画面へ進む」のボタンをクリックしてください。
個人情報の取り扱いについて
皆さまが送付された個人情報はアットホーム(株)のサーバを経由し、お問い合わせ先の不動産会社にメールまたはFAXにて転送されるためアットホーム(株)にも保管されます。アットホーム(株)で保管された個人情報の取り扱いについては、【こちら】をご覧ください。
また、本画面でご記入いただいた個人情報は、お問い合わせ先の不動産会社でも保管します。 お問い合わせ先の不動産会社が保管する個人情報の取り扱いについては、不動産会社に直接お問い合わせください。
埼玉県知事免許(2)第23790号 |
---|
- 交通:
- 東武東上線/鶴瀬駅 徒歩26分
- 埼玉県入間郡三芳町大字藤久保字北新埜855-403 アクロスプラザ三芳店内
- TEL:
- 049-293-4687
- FAX:
- 049-293-4688
- 所属団体:
- (公社)埼玉県宅地建物取引業協会会員(公社)首都圏不動産公正取引協議会加盟
取引態様:仲介  - 00987175
|
- スマートフォンで
この不動産会社を見る

|
- 提携サイト等より掲載されている物件情報につきましては、不動産会社詳細情報にリンクされていないものがあります。
- 物件に関するお問合せは、物件詳細ページの「情報提供会社」に表示されている不動産会社へ直接お願いいたします。
- 間取図は、現況を優先させていただきます。
- 映像は物件の一部を撮影したものです。物件の契約にあたっての最終判断はご自身の判断に基づいて行ってください。
- 仲介手数料について

アットホームは物件情報の適正化に努めております。
内容に誤りがある場合にはこちらへご連絡ください。