神奈川県愛甲郡愛川町中津(本厚木駅)の貸事務所:物件詳細
交通 所在地 |
駅徒歩 |
賃料 管理費等 |
敷金/保証金 礼金 |
使用部分面積 坪数/坪単価 |
物件種目 築年月 |
|
小田急小田原線/本厚木 【バス】34分 一本松 停歩1分
神奈川県愛甲郡愛川町中津
|
-
|
9.7万円
3,000円
|
3ヶ月 / なし
1ヶ月
|
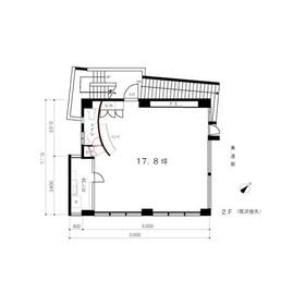
58.88m²
17.81坪/0.5447万円
|
貸事務所
1996年9月(築29年4ヶ月)
|
|
間取図
|
|
<
その他の画像
>
|
| 交通 | 小田急小田原線 本厚木駅 【バス】 34分 一本松 停歩1分 |
|---|
| その他の交通 | 小田急小田原線 海老名駅 【バス】 34分 一本松 停歩1分 |
| 所在地 |
神奈川県愛甲郡愛川町中津
|
| 物件種目 |
貸事務所 |
| 賃料 |
9.7万円 |
管理費等 |
3,000円 |
| 敷金 / 保証金 |
3ヶ月 / なし |
礼金 |
1ヶ月 |
| 敷引 |
- |
坪単価 |
0.5447万円 |
| 保証金償却 |
- |
権利金 |
- |
| 造作譲渡 |
- |
その他一時金 |
鍵交換代:14,300円 |
| 維持費等 |
賃料振替手数料(10%税込):440円/月 |
保険等 |
要 借家人賠償責任2千万円以上 |
| 使用部分面積 |
58.88m² |
坪数 |
17.81坪 |
| 築年月 |
1996年9月(築29年4ヶ月)
|
階建 / 階 |
3階建 / 2階 |
| 駐車場 |
近有 無料(空き2台) 建物から駐車場までの距離約55m |
バイク置き場 |
- |
| 駐輪場 |
有 無料 |
土地面積 |
- |
| 接道状況 |
北東 10.0m 公道
|
用途地域 |
2種住居 |
| 間取り |
- |
建物構造 |
RC |
| 建物名・部屋番号 |
WALL-Sビルディング 2F |
| リフォーム履歴 |
- |
| リノベーション履歴 |
- |
| 特記事項 |
飲食店不可、デザイナーズ、1フロア1テナント、駐車場2台分、角部屋、都道府県道沿いに面する |
| 備考 |
賃貸保証等:加入要(初回保証料:賃料等月額の100% 月額保証料:賃料等月額の0.8%)
管理形態/管理員の勤務形態:-/-
他所在地:中津729-8
主要採光面:北東向き
機関保証+連帯保証人設定 更新手数料:新賃料の1カ月分/3年 駐車場:敷地外2台付無料 現況設備(照明・エアコン・換気扇・流し台・トイレ等)の機能保証はなきものとする。 専用部分の設備内装等の維持管理修理交換にまつわる費用は借主の負担とする。 現況の変更は事前に貸主の承諾を要し退去時に原状に復すものとする。 防災設備は必要に応じ借主の負担で付設し維持管理するものする。 退去時負担必須ルームクリーニング代税別9万円~ ヘアサロン不可
|
| エネルギー消費性能 |
- |
| 断熱性能 |
- |
| 目安光熱費 |
- |
| バス・トイレ |
専有部分にトイレあり |
| キッチン |
- |
| 設備・サービス |
収納スペース、室内洗濯機置場、動力あり |
| その他 |
- |
| 契約期間 |
3年 |
条件等 |
-
|
| 引渡可能時期 |
即時 |
現況 |
空 |
| 仲介手数料 |
1ヶ月 |
適格請求書発行 |
不可
|
| 更新料 |
なし |
物件番号 |
6987905361 |
| 情報公開日 |
2025年10月6日 |
次回更新予定日 |
2025年12月16日 |
| ケータイ用バーコード |
- スマートフォンでこの物件を見る
- スマートフォンからもこの物件をご覧になれます。
|
※「-」と表示されている項目については、情報提供会社にご確認ください。
| 周辺施設 |
ドラッグセイムス愛川町店 |
| 距離 |
141m |
| 周辺施設 |
ローソン・スリーエフ愛川中津中央店 |
| 距離 |
181m |
ここから簡単にお問い合わせをすることができます。
(SSLでの暗号化での送信を希望されるお客さまは
こちら
よりお問い合わせください)
お問い合わせを行う前に
「個人情報の取り扱いについて」を必ずお読みください。
「個人情報の取り扱いについて」に同意いただいた場合は「上記にご同意の上 確認画面へ進む」のボタンをクリックしてください。
個人情報の取り扱いについて
皆さまが送付された個人情報はアットホーム(株)のサーバを経由し、お問い合わせ先の不動産会社にメールまたはFAXにて転送されるためアットホーム(株)にも保管されます。アットホーム(株)で保管された個人情報の取り扱いについては、【こちら】をご覧ください。
また、本画面でご記入いただいた個人情報は、お問い合わせ先の不動産会社でも保管します。 お問い合わせ先の不動産会社が保管する個人情報の取り扱いについては、不動産会社に直接お問い合わせください。
神奈川県知事免許(8)第18740号 |
|---|
- 交通:
- 小田急小田原線/本厚木駅 【バス】30分 諏訪東 停歩3分
- 神奈川県愛甲郡愛川町中津2743-4
- TEL:
- 046-285-6621
- FAX:
- 046-285-6622
- 所属団体:
- (公社)全日本不動産協会会員(公社)首都圏不動産公正取引協議会加盟
取引態様:仲介  - 00222283
|
- スマートフォンで
この不動産会社を見る

|
- 提携サイト等より掲載されている物件情報につきましては、不動産会社詳細情報にリンクされていないものがあります。
- 物件に関するお問合せは、物件詳細ページの「情報提供会社」に表示されている不動産会社へ直接お願いいたします。
- 間取図は、現況を優先させていただきます。
- 映像は物件の一部を撮影したものです。物件の契約にあたっての最終判断はご自身の判断に基づいて行ってください。
- 仲介手数料について

アットホームは物件情報の適正化に努めております。
内容に誤りがある場合にはこちらへご連絡ください。