東京都千代田区内神田1丁目(神田駅)の貸事務所:物件詳細
交通 所在地 |
駅徒歩 |
賃料 管理費等 |
敷金/保証金 礼金 |
使用部分面積 坪数/坪単価 |
物件種目 築年月 |
|
JR山手線/神田
東京都千代田区内神田1丁目
|
5分
|
要確認
|
要確認
|
347.83m²
105.21坪/要確認
|
貸事務所
1971年10月(築54年3ヶ月)
|
|
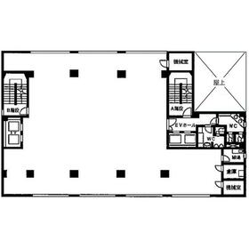
間取図
|
|
<
その他の画像
>
|
| 交通 | JR山手線 神田駅 徒歩5分 |
|---|
| その他の交通 | JR総武本線 新日本橋駅 徒歩8分 東京メトロ丸ノ内線 大手町駅 徒歩7分 |
| 所在地 |
東京都千代田区内神田1丁目
|
| 物件種目 |
貸事務所 |
| 賃料 |
要確認 |
管理費等 |
要確認 |
| 敷金 / 保証金 |
要確認 |
礼金 |
要確認 |
| 敷引 |
要確認 |
坪単価 |
要確認 |
| 保証金償却 |
要確認 |
権利金 |
- |
| 造作譲渡 |
- |
その他一時金 |
- |
| 維持費等 |
- |
保険等 |
- |
| 使用部分面積 |
347.83m² |
坪数 |
105.21坪 |
| 築年月 |
1971年10月(築54年3ヶ月)
|
階建 / 階 |
地上7階地下2階建 / 3階 |
| 駐車場 |
- |
バイク置き場 |
- |
| 駐輪場 |
- |
土地面積 |
- |
| 接道状況 |
-
|
用途地域 |
- |
| 間取り |
- |
建物構造 |
RC |
| アピールポイント |
更新料・償却なし!!神田エリアでは珍しい大型ビルです★【耐震補強工事済み】屋上庭園&会議室も使用可能です♪設備も充実しています。お気軽にお問い合わせください! |
| 建物名・部屋番号 |
3階 |
| リフォーム履歴 |
- |
| リノベーション履歴 |
- |
| 特記事項 |
OAフロア、飲食店不可、24時間セキュリティー、天井高2.5M以上 |
| 備考 |
管理形態/管理員の勤務形態:-/-
□ビル内喫煙所有 □屋上庭園(8時〜16時) □共有部清掃1日2回
□入居者専用貸会議室(8人用/1H500円) □防犯カメラ
□照明:LED
男女別トイレ 室外トイレ
※保険加入必須 ※保証会社原則加入
|
| エネルギー消費性能 |
- |
| 断熱性能 |
- |
| 目安光熱費 |
- |
| バス・トイレ |
共用部分に男女別トイレあり |
| キッチン |
- |
| 設備・サービス |
個別空調、給湯、エアコン、暖房、冷房 |
| その他 |
エレベーター2基以上 |
| 契約期間 |
5年 |
条件等 |
定期借家
|
| 引渡可能時期 |
相談 |
現況 |
使用中 |
| 仲介手数料 |
1ヶ月 |
|
|
| 更新料 |
要確認 |
物件番号 |
6987949583 |
| 情報公開日 |
2025年10月9日 |
次回更新予定日 |
2025年12月25日 |
| ケータイ用バーコード |
- スマートフォンでこの物件を見る
- スマートフォンからもこの物件をご覧になれます。
|
※「-」と表示されている項目については、情報提供会社にご確認ください。
| 周辺施設 |
ローソンTHE KAITEKIビル店 |
| 距離 |
76m |
写真を見る |
| 周辺施設 |
タリーズコーヒー神田橋本郷通り店 |
| 距離 |
67m |
写真を見る |
| 周辺施設 |
神田錦町郵便局 |
| 距離 |
204m |
写真を見る |
| 周辺施設 |
スギ薬局神田西口通り店 |
| 距離 |
289m |
写真を見る |
| 周辺施設 |
松屋神田西口店 |
| 距離 |
257m |
写真を見る |
| 周辺施設 |
まいばすけっと神田駅西店 |
| 距離 |
208m |
写真を見る |
| 周辺施設 |
(資)檜書店 |
| 距離 |
378m |
写真を見る |
| 周辺施設 |
四国銀行東京支店 |
| 距離 |
98m |
写真を見る |
ここから簡単にお問い合わせをすることができます。
(SSLでの暗号化での送信を希望されるお客さまは
こちら
よりお問い合わせください)
お問い合わせを行う前に
「個人情報の取り扱いについて」を必ずお読みください。
「個人情報の取り扱いについて」に同意いただいた場合は「上記にご同意の上 確認画面へ進む」のボタンをクリックしてください。
個人情報の取り扱いについて
皆さまが送付された個人情報はアットホーム(株)のサーバを経由し、お問い合わせ先の不動産会社にメールまたはFAXにて転送されるためアットホーム(株)にも保管されます。アットホーム(株)で保管された個人情報の取り扱いについては、【こちら】をご覧ください。
また、本画面でご記入いただいた個人情報は、お問い合わせ先の不動産会社でも保管します。 お問い合わせ先の不動産会社が保管する個人情報の取り扱いについては、不動産会社に直接お問い合わせください。
東京都知事免許(5)第79601号 |
|---|
- 交通:
- JR中央線/神田駅 徒歩3分
- 東京都千代田区鍛冶町1丁目9-1 第二大久保ビル2階
- TEL:
- 03-5297-5666
- FAX:
- 03-5297-5665
- 所属団体:
- (公社)全日本不動産協会会員(公社)首都圏不動産公正取引協議会加盟
取引態様:仲介  - 00016657
|
- スマートフォンで
この不動産会社を見る

|
- 提携サイト等より掲載されている物件情報につきましては、不動産会社詳細情報にリンクされていないものがあります。
- 物件に関するお問合せは、物件詳細ページの「情報提供会社」に表示されている不動産会社へ直接お願いいたします。
- 間取図は、現況を優先させていただきます。
- 映像は物件の一部を撮影したものです。物件の契約にあたっての最終判断はご自身の判断に基づいて行ってください。
- 仲介手数料について

アットホームは物件情報の適正化に努めております。
内容に誤りがある場合にはこちらへご連絡ください。