北海道札幌市中央区北四条西7丁目(さっぽろ駅)の貸事務所:物件詳細
交通 所在地 |
駅徒歩 |
賃料 管理費等 |
敷金/保証金 礼金 |
使用部分面積 坪数/坪単価 |
物件種目 築年月 |
|
札幌市南北線/さっぽろ
北海道札幌市中央区北四条西7丁目
|
4分
|
15.3万円
-
|
なし / 8ヶ月
なし
|
38.30m²
11.58坪/1.3206万円
|
貸事務所
1973年6月(築52年7ヶ月)
|
|
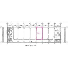
間取図
|
外観
|
その他の画像
|
| 交通 | 札幌市南北線 さっぽろ駅 徒歩4分 |
|---|
| その他の交通 | JR千歳線 札幌駅 徒歩5分 |
| 所在地 |
北海道札幌市中央区北四条西7丁目
|
| 物件種目 |
貸事務所 |
| 賃料 |
15.3万円 |
管理費等 |
- |
| 敷金 / 保証金 |
なし / 8ヶ月 |
礼金 |
なし |
| 敷引 |
- |
坪単価 |
1.3206万円 |
| 保証金償却 |
- |
権利金 |
- |
| 造作譲渡 |
- |
その他一時金 |
契約事務手数料:22,000円 |
| 維持費等 |
電気基本料:550円/月 |
保険等 |
要 |
| 使用部分面積 |
38.30m² |
坪数 |
11.58坪 |
| 築年月 |
1973年6月(築52年7ヶ月)
|
階建 / 階 |
地上9階地下1階建 / 4階 |
| 駐車場 |
空無 |
バイク置き場 |
- |
| 駐輪場 |
- |
土地面積 |
- |
| 接道状況 |
-
|
用途地域 |
- |
| 間取り |
- |
建物構造 |
SRC |
| アピールポイント |
ぜひ、お気軽にお問い合わせください。
LINEでも問い合わせ可能です。
@riseto
で検索し、友達追加してメッセージください。
お待ちしています。 |
| 建物名・部屋番号 |
札幌ホワイトビル 403 |
| リフォーム履歴 |
■内装:2025年9月 床(フローリング等)、壁・天井(クロス・塗装等) ※実施年月は最も古い履歴を表示 |
| リノベーション履歴 |
- |
| 特記事項 |
24時間利用可、土日・祝日利用可、有人警備、飲食店不可、24時間セキュリティー |
| 備考 |
賃貸保証等:加入要(USEN家賃保証Prime:月額固定費の150%)
管理形態/管理員の勤務形態:-/-
|
| エネルギー消費性能 |
- |
| 断熱性能 |
- |
| 目安光熱費 |
- |
| バス・トイレ |
共用部分に男女別トイレあり、多機能トイレ |
| キッチン |
- |
| 設備・サービス |
個別空調、防犯カメラ、エアコン、暖房、冷房、火災警報器(報知機)、インターネット対応 |
| その他 |
施設内喫煙所、エレベーター2基以上 |
| 契約期間 |
2年 |
条件等 |
定期借家
|
| 引渡可能時期 |
即時 |
現況 |
空 |
| 適格請求書発行 |
可
|
| 更新料 |
- |
物件番号 |
6987989516 |
| 情報公開日 |
2025年11月20日 |
次回更新予定日 |
2025年12月18日 |
| ケータイ用バーコード |
- スマートフォンでこの物件を見る
- スマートフォンからもこの物件をご覧になれます。
|
※「-」と表示されている項目については、情報提供会社にご確認ください。
ここから簡単にお問い合わせをすることができます。
(SSLでの暗号化での送信を希望されるお客さまは
こちら
よりお問い合わせください)
お問い合わせを行う前に
「個人情報の取り扱いについて」を必ずお読みください。
「個人情報の取り扱いについて」に同意いただいた場合は「上記にご同意の上 確認画面へ進む」のボタンをクリックしてください。
個人情報の取り扱いについて
皆さまが送付された個人情報はアットホーム(株)のサーバを経由し、お問い合わせ先の不動産会社にメールまたはFAXにて転送されるためアットホーム(株)にも保管されます。アットホーム(株)で保管された個人情報の取り扱いについては、【こちら】をご覧ください。
また、本画面でご記入いただいた個人情報は、お問い合わせ先の不動産会社でも保管します。 お問い合わせ先の不動産会社が保管する個人情報の取り扱いについては、不動産会社に直接お問い合わせください。
神奈川県知事免許(1)第32580号 |
|---|
- 交通:
- ブルーライン/吉野町駅 徒歩3分
- 神奈川県横浜市南区日枝町5丁目137-4
- TEL:
- 045-341-3337
- FAX:
- 045-341-3338
- 所属団体:
- (公社)神奈川県宅地建物取引業協会会員(公社)首都圏不動産公正取引協議会加盟
取引態様:仲介  - 00278575
|
- スマートフォンで
この不動産会社を見る

|
- 提携サイト等より掲載されている物件情報につきましては、不動産会社詳細情報にリンクされていないものがあります。
- 物件に関するお問合せは、物件詳細ページの「情報提供会社」に表示されている不動産会社へ直接お願いいたします。
- 間取図は、現況を優先させていただきます。
- 映像は物件の一部を撮影したものです。物件の契約にあたっての最終判断はご自身の判断に基づいて行ってください。
- 仲介手数料について

アットホームは物件情報の適正化に努めております。
内容に誤りがある場合にはこちらへご連絡ください。