神奈川県横浜市中区尾上町3丁目(関内駅)の貸事務所:物件詳細
交通 所在地 |
駅徒歩 |
賃料 管理費等 |
敷金/保証金 礼金 |
使用部分面積 坪数/坪単価 |
物件種目 築年月 |
|
JR根岸線/関内
神奈川県横浜市中区尾上町3丁目
|
2分
|
13.2万円
-
|
なし / 6ヶ月
1ヶ月
|
33.05m²
9.99坪/1.3204万円
|
貸事務所
1969年2月(築56年10ヶ月)
|
| 交通 | JR根岸線 関内駅 徒歩2分 |
|---|
| その他の交通 | ブルーライン 関内駅 徒歩2分 横浜高速鉄道みなとみらい線 馬車道駅 徒歩7分 |
| 所在地 |
神奈川県横浜市中区尾上町3丁目
|
| 物件種目 |
貸事務所 |
| 賃料 |
13.2万円 |
管理費等 |
- |
| 敷金 / 保証金 |
なし / 6ヶ月 |
礼金 |
1ヶ月 |
| 敷引 |
- |
坪単価 |
1.3204万円 |
| 保証金償却 |
- |
権利金 |
- |
| 造作譲渡 |
- |
その他一時金 |
- |
| 維持費等 |
- |
保険等 |
要 業種による |
| クレジットカード決済 |
初期費用可 クレジット可能条件等:決済手数料は別途かかります。 |
| 使用部分面積 |
33.05m² |
坪数 |
9.99坪 |
| 築年月 |
1969年2月(築56年10ヶ月)
|
階建 / 階 |
地上8階地下1階建 / 5階 |
| 駐車場 |
- |
バイク置き場 |
- |
| 駐輪場 |
- |
土地面積 |
- |
| 接道状況 |
-
|
用途地域 |
- |
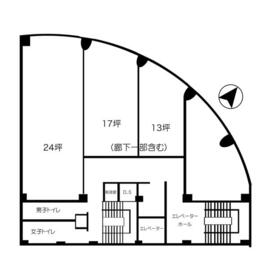
| 間取り |
- |
建物構造 |
RC |
| 建物名・部屋番号 |
木村ビル 5G |
| リフォーム履歴 |
- |
| リノベーション履歴 |
- |
| 特記事項 |
角部屋 |
| 備考 |
管理形態/管理員の勤務形態:-/-
機械警備(ALSOK)・個別空調・解約時1ヶ月償却
10坪のタイプになります
定期建物賃貸借(再契約相談可)
分割も可能
|
| エネルギー消費性能 |
- |
| 断熱性能 |
- |
| 目安光熱費 |
- |
| バス・トイレ |
共用部分に男女別トイレあり |
| キッチン |
- |
| 設備・サービス |
個別空調 |
| その他 |
エレベーター |
| 契約期間 |
3年 |
条件等 |
定期借家
|
| 引渡可能時期 |
即時 |
現況 |
空 |
| 更新料 |
新賃料 1ヶ月 |
物件番号 |
6988007871 |
| 情報公開日 |
2025年10月14日 |
次回更新予定日 |
2025年11月16日 |
| ケータイ用バーコード |
- スマートフォンでこの物件を見る
- スマートフォンからもこの物件をご覧になれます。
|
※「-」と表示されている項目については、情報提供会社にご確認ください。
| 周辺施設 |
紳士服コナカ関内尾上町店 |
| 距離 |
140m |
| 周辺施設 |
神奈川中小企業センター内郵便局 |
| 距離 |
297m |
| 周辺施設 |
横浜市市民文化会館関内ホール |
| 距離 |
284m |
ここから簡単にお問い合わせをすることができます。
(SSLでの暗号化での送信を希望されるお客さまは
こちら
よりお問い合わせください)
お問い合わせを行う前に
「個人情報の取り扱いについて」を必ずお読みください。
「個人情報の取り扱いについて」に同意いただいた場合は「上記にご同意の上 確認画面へ進む」のボタンをクリックしてください。
個人情報の取り扱いについて
皆さまが送付された個人情報はアットホーム(株)のサーバを経由し、お問い合わせ先の不動産会社にメールまたはFAXにて転送されるためアットホーム(株)にも保管されます。アットホーム(株)で保管された個人情報の取り扱いについては、【こちら】をご覧ください。
また、本画面でご記入いただいた個人情報は、お問い合わせ先の不動産会社でも保管します。 お問い合わせ先の不動産会社が保管する個人情報の取り扱いについては、不動産会社に直接お問い合わせください。
神奈川県知事免許(8)第19482号 |
|---|
- 交通:
- JR京浜東北線/関内駅 徒歩5分
- 神奈川県横浜市中区羽衣町3丁目60 羽衣町京浜ビル4F
- TEL:
- 045-251-7615
- FAX:
- 045-242-3663
- 所属団体:
- (公社)神奈川県宅地建物取引業協会会員(公社)首都圏不動産公正取引協議会加盟
取引態様:仲介  - 00230710
|
- スマートフォンで
この不動産会社を見る

|
- 提携サイト等より掲載されている物件情報につきましては、不動産会社詳細情報にリンクされていないものがあります。
- 物件に関するお問合せは、物件詳細ページの「情報提供会社」に表示されている不動産会社へ直接お願いいたします。
- 間取図は、現況を優先させていただきます。
- 映像は物件の一部を撮影したものです。物件の契約にあたっての最終判断はご自身の判断に基づいて行ってください。
- 仲介手数料について

アットホームは物件情報の適正化に努めております。
内容に誤りがある場合にはこちらへご連絡ください。