東京都新宿区西新宿4丁目(都庁前駅)の貸事務所:物件詳細
交通 所在地 |
駅徒歩 |
賃料 管理費等 |
敷金/保証金 礼金 |
使用部分面積 坪数/坪単価 |
物件種目 築年月 |
|
都営大江戸線/都庁前
東京都新宿区西新宿4丁目
|
6分
|
68.69万円
158,532円
|
5ヶ月 / なし
なし
|
158.84m²
48.04坪/1.4296万円
|
貸事務所
1979年2月(築46年9ヶ月)
|
| 交通 | 都営大江戸線 都庁前駅 徒歩6分 |
|---|
| その他の交通 | 都営大江戸線 西新宿五丁目駅 徒歩9分 京王線 初台駅 徒歩14分 |
| 所在地 |
東京都新宿区西新宿4丁目
|
| 物件種目 |
貸事務所 |
| 賃料 |
68.69万円 |
管理費等 |
158,532円 |
| 敷金 / 保証金 |
5ヶ月 / なし |
礼金 |
なし |
| 敷引 |
- |
坪単価 |
1.4296万円 |
| 保証金償却 |
- |
権利金 |
- |
| 造作譲渡 |
- |
その他一時金 |
- |
| 維持費等 |
- |
保険等 |
要 火災 |
| 使用部分面積 |
158.84m² |
坪数 |
48.04坪 |
| 築年月 |
1979年2月(築46年9ヶ月)
|
階建 / 階 |
13階建 / 2階 |
| 駐車場 |
- |
バイク置き場 |
- |
| 駐輪場 |
- |
土地面積 |
- |
| 接道状況 |
-
|
用途地域 |
- |
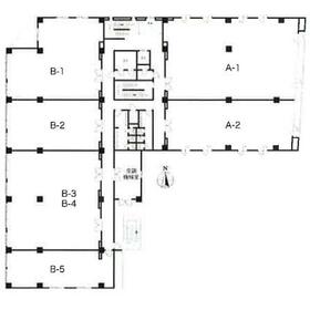
| 間取り |
- |
建物構造 |
SRC |
| アピールポイント |
◎都庁前駅から徒歩圏内♪
◎新宿中央公園近くの貸事務所 |
| 建物名・部屋番号 |
ハイネスロフティー 2階B1 |
| リフォーム履歴 |
- |
| リノベーション履歴 |
- |
| 特記事項 |
飲食店不可 |
| 備考 |
賃貸保証等:加入要(VRサポート 賃料等総額の100%)
管理形態/管理員の勤務形態:-/-
※消費税込
※償却無
※定借2年:再契約相談可(再契約料:新賃料1ヶ月)
※エントランス開放時間:月~土、8時~20時
※OAフロア設置予定
|
| エネルギー消費性能 |
- |
| 断熱性能 |
- |
| 目安光熱費 |
- |
| バス・トイレ |
共用部分に男女別トイレあり |
| キッチン |
- |
| 設備・サービス |
個別空調 |
| その他 |
エレベーター2基以上、エレベーター |
| 契約期間 |
2年 |
条件等 |
定期借家
|
| 引渡可能時期 |
指定有り2026年2月14日 |
現況 |
使用中 |
| 更新料 |
- |
物件番号 |
6988010322 |
| 情報公開日 |
2025年10月14日 |
次回更新予定日 |
2025年11月10日 |
| ケータイ用バーコード |
- スマートフォンでこの物件を見る
- スマートフォンからもこの物件をご覧になれます。
|
※「-」と表示されている項目については、情報提供会社にご確認ください。
ここから簡単にお問い合わせをすることができます。
(SSLでの暗号化での送信を希望されるお客さまは
こちら
よりお問い合わせください)
お問い合わせを行う前に
「個人情報の取り扱いについて」を必ずお読みください。
「個人情報の取り扱いについて」に同意いただいた場合は「上記にご同意の上 確認画面へ進む」のボタンをクリックしてください。
個人情報の取り扱いについて
皆さまが送付された個人情報はアットホーム(株)のサーバを経由し、お問い合わせ先の不動産会社にメールまたはFAXにて転送されるためアットホーム(株)にも保管されます。アットホーム(株)で保管された個人情報の取り扱いについては、【こちら】をご覧ください。
また、本画面でご記入いただいた個人情報は、お問い合わせ先の不動産会社でも保管します。 お問い合わせ先の不動産会社が保管する個人情報の取り扱いについては、不動産会社に直接お問い合わせください。
神奈川県知事免許(4)第25863号 |
|---|
- 交通:
- 東急東横線/反町駅 徒歩1分
- 神奈川県横浜市神奈川区松本町1丁目2-3 第2カヤギヤビル1階
- TEL:
- 045-326-2736
- FAX:
- 045-326-2737
- 所属団体:
- (公社)神奈川県宅地建物取引業協会会員(公社)首都圏不動産公正取引協議会加盟
取引態様:仲介  - 00013994
|
- スマートフォンで
この不動産会社を見る

|
- 提携サイト等より掲載されている物件情報につきましては、不動産会社詳細情報にリンクされていないものがあります。
- 物件に関するお問合せは、物件詳細ページの「情報提供会社」に表示されている不動産会社へ直接お願いいたします。
- 間取図は、現況を優先させていただきます。
- 映像は物件の一部を撮影したものです。物件の契約にあたっての最終判断はご自身の判断に基づいて行ってください。
- 仲介手数料について

アットホームは物件情報の適正化に努めております。
内容に誤りがある場合にはこちらへご連絡ください。