愛知県名古屋市東区葵3丁目(千種駅)の貸事務所:物件詳細
交通 所在地 |
駅徒歩 |
賃料 管理費等 |
敷金/保証金 礼金 |
使用部分面積 坪数/坪単価 |
物件種目 築年月 |
|
名古屋市東山線/千種
愛知県名古屋市東区葵3丁目
|
2分
|
11.2万円
32,945円
|
なし / 8ヶ月
なし
|
39.60m²
11.97坪/0.935万円
|
貸事務所
1990年2月(築35年11ヶ月)
|
|
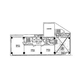
間取図
基準階間取り図
|
外観
|
<
その他の画像
>
|
| 交通 | 名古屋市東山線 千種駅 徒歩2分 |
|---|
| その他の交通 | JR中央線 千種駅 徒歩4分 名古屋市桜通線 車道駅 徒歩7分 |
| 所在地 |
愛知県名古屋市東区葵3丁目
|
| 物件種目 |
貸事務所 |
| 賃料 |
11.2万円 |
管理費等 |
32,945円 |
| 敷金 / 保証金 |
なし / 8ヶ月 |
礼金 |
なし |
| 敷引 |
- |
坪単価 |
0.935万円 |
| 保証金償却 |
- |
権利金 |
- |
| 造作譲渡 |
- |
その他一時金 |
- |
| 維持費等 |
- |
保険等 |
- |
| 使用部分面積 |
39.60m² |
坪数 |
11.97坪 |
| 築年月 |
1990年2月(築35年11ヶ月)
|
階建 / 階 |
9階建 / 3階 |
| 駐車場 |
- |
バイク置き場 |
- |
| 駐輪場 |
- |
土地面積 |
- |
| 接道状況 |
-
|
用途地域 |
- |
| 間取り |
- |
建物構造 |
SRC |
| アピールポイント |
名古屋支店 TEL:052-223-0655
お問合せから原則30分以内に確認しご連絡致します!
お気軽にお問い合わせください。 |
| 建物名・部屋番号 |
千種ファーストビルかとう 3階303 11.98坪 |
| リフォーム履歴 |
- |
| リノベーション履歴 |
- |
| 特記事項 |
24時間利用可、土曜日利用可、土日・祝日利用可、飲食店不可、24時間セキュリティー、耐震構造(新耐震基準)、天井高2.5M以上、IT重説対応物件 |
| 備考 |
管理形態/管理員の勤務形態:-/-
IT重説対応物件
|
| エネルギー消費性能 |
- |
| 断熱性能 |
- |
| 目安光熱費 |
- |
| バス・トイレ |
共用部分に男女別トイレあり |
| キッチン |
- |
| 設備・サービス |
個別空調、非接触型ICカードキー、給湯、ビルトインエアコン、エアコン、暖房、冷房、火災警報器(報知機)、インターネット対応、光ファイバー |
| その他 |
エレベーター |
| 契約期間 |
2年 |
条件等 |
-
|
| 引渡可能時期 |
2026年1月上旬予定 |
現況 |
使用中 |
| 更新料 |
- |
物件番号 |
6988035239 |
| 情報公開日 |
2025年10月16日 |
次回更新予定日 |
2025年12月12日 |
| ケータイ用バーコード |
- スマートフォンでこの物件を見る
- スマートフォンからもこの物件をご覧になれます。
|
※「-」と表示されている項目については、情報提供会社にご確認ください。
| 周辺施設 |
セブンイレブン名古屋葵3丁目店 |
| 距離 |
147m |
| 周辺施設 |
CoCo壱番屋中区新栄店 |
| 距離 |
304m |
| 周辺施設 |
トヨタレンタリース名古屋千種駅西店 |
| 距離 |
100m |
| 周辺施設 |
ゆうちょ銀行名古屋支店メルパルク名古屋内出張所 |
| 距離 |
271m |
ここから簡単にお問い合わせをすることができます。
(SSLでの暗号化での送信を希望されるお客さまは
こちら
よりお問い合わせください)
お問い合わせを行う前に
「個人情報の取り扱いについて」を必ずお読みください。
「個人情報の取り扱いについて」に同意いただいた場合は「上記にご同意の上 確認画面へ進む」のボタンをクリックしてください。
個人情報の取り扱いについて
皆さまが送付された個人情報はアットホーム(株)のサーバを経由し、お問い合わせ先の不動産会社にメールまたはFAXにて転送されるためアットホーム(株)にも保管されます。アットホーム(株)で保管された個人情報の取り扱いについては、【こちら】をご覧ください。
また、本画面でご記入いただいた個人情報は、お問い合わせ先の不動産会社でも保管します。 お問い合わせ先の不動産会社が保管する個人情報の取り扱いについては、不動産会社に直接お問い合わせください。
国土交通大臣免許(4)第7938号 |
|---|
- 交通:
- 名古屋市鶴舞線/伏見駅 徒歩3分
- 愛知県名古屋市中区錦1丁目6-18 J・伊藤ビル7F
- TEL:
- 052-223-0655
- FAX:
- 052-223-0656
- 所属団体:
- (公社)全日本不動産協会会員東海不動産公正取引協議会加盟
取引態様:仲介  - 40410567
|
- スマートフォンで
この不動産会社を見る

|
- 提携サイト等より掲載されている物件情報につきましては、不動産会社詳細情報にリンクされていないものがあります。
- 物件に関するお問合せは、物件詳細ページの「情報提供会社」に表示されている不動産会社へ直接お願いいたします。
- 間取図は、現況を優先させていただきます。
- 映像は物件の一部を撮影したものです。物件の契約にあたっての最終判断はご自身の判断に基づいて行ってください。
- 仲介手数料について

アットホームは物件情報の適正化に努めております。
内容に誤りがある場合にはこちらへご連絡ください。