東京都港区海岸3丁目(芝浦ふ頭駅)の貸事務所:物件詳細
交通 所在地 |
駅徒歩 |
賃料 管理費等 |
敷金/保証金 礼金 |
使用部分面積 坪数/坪単価 |
物件種目 築年月 |
|
新交通ゆりかもめ/芝浦ふ頭
東京都港区海岸3丁目
|
3分
|
93.72万円
-
|
なし / 12ヶ月
なし
|
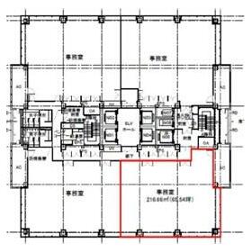
216.66m²
65.53坪/1.43万円
|
貸事務所
1994年7月(築31年4ヶ月)
|
|
間取図
|
外観
|
その他の画像
|
| 交通 | 新交通ゆりかもめ 芝浦ふ頭駅 徒歩3分 |
|---|
| その他の交通 | 新交通ゆりかもめ 日の出駅 徒歩6分 都営三田線 三田駅 徒歩10分 |
| 所在地 |
東京都港区海岸3丁目
|
| 物件種目 |
貸事務所 |
| 賃料 |
93.72万円 |
管理費等 |
- |
| 敷金 / 保証金 |
なし / 12ヶ月 |
礼金 |
なし |
| 敷引 |
- |
坪単価 |
1.43万円 |
| 保証金償却 |
- |
権利金 |
- |
| 造作譲渡 |
- |
その他一時金 |
- |
| 維持費等 |
- |
保険等 |
要 |
| 使用部分面積 |
216.66m² |
坪数 |
65.53坪 |
| 築年月 |
1994年7月(築31年4ヶ月)
|
階建 / 階 |
地上16階地下3階建 / 6階 |
| 駐車場 |
- |
バイク置き場 |
- |
| 駐輪場 |
- |
土地面積 |
- |
| 接道状況 |
-
|
用途地域 |
- |
| 間取り |
- |
建物構造 |
SRC |
| 建物名・部屋番号 |
ピアシティ芝浦ビル 6階南西側 |
| リフォーム履歴 |
- |
| リノベーション履歴 |
- |
| 特記事項 |
OAフロア、飲食店不可、24時間セキュリティー、耐震構造(新耐震基準)、天井高2.5M以上 |
| 備考 |
賃貸保証等:利用可(月額固定費の1ヶ月分)
管理形態/管理員の勤務形態:-/-
天井高:2,700㎜
コンビニ・レストランあり
貨物用EVあり
|
| エネルギー消費性能 |
- |
| 断熱性能 |
- |
| 目安光熱費 |
- |
| バス・トイレ |
共用部分に男女別トイレあり |
| キッチン |
- |
| 設備・サービス |
個別空調、エアコン |
| その他 |
エレベーター2基以上 |
| 契約期間 |
2年 |
条件等 |
-
|
| 引渡可能時期 |
2026年2月上旬予定 |
現況 |
使用中 |
| 仲介手数料 |
1ヶ月 |
適格請求書発行 |
可
|
| 更新料 |
- |
物件番号 |
6988035767 |
| 情報公開日 |
2025年10月16日 |
次回更新予定日 |
2025年10月30日 |
| ケータイ用バーコード |
- スマートフォンでこの物件を見る
- スマートフォンからもこの物件をご覧になれます。
|
※「-」と表示されている項目については、情報提供会社にご確認ください。
| 周辺施設 |
まいばすけっと海岸3丁目店 |
| 距離 |
256m |
| 周辺施設 |
セブンイレブン芝浦ベイワード店 |
| 距離 |
453m |
| 周辺施設 |
さわやか信用金庫東京港支店 |
| 距離 |
845m |
| 周辺施設 |
三菱UFJ銀行田町支店 |
| 距離 |
1119m |
ここから簡単にお問い合わせをすることができます。
(SSLでの暗号化での送信を希望されるお客さまは
こちら
よりお問い合わせください)
お問い合わせを行う前に
「個人情報の取り扱いについて」を必ずお読みください。
「個人情報の取り扱いについて」に同意いただいた場合は「上記にご同意の上 確認画面へ進む」のボタンをクリックしてください。
個人情報の取り扱いについて
皆さまが送付された個人情報はアットホーム(株)のサーバを経由し、お問い合わせ先の不動産会社にメールまたはFAXにて転送されるためアットホーム(株)にも保管されます。アットホーム(株)で保管された個人情報の取り扱いについては、【こちら】をご覧ください。
また、本画面でご記入いただいた個人情報は、お問い合わせ先の不動産会社でも保管します。 お問い合わせ先の不動産会社が保管する個人情報の取り扱いについては、不動産会社に直接お問い合わせください。
東京都知事免許(1)第106093号 |
|---|
- 交通:
- JR山手線/神田駅 徒歩3分
- 東京都千代田区神田須田町1丁目26 ラシーヌ神田ビル6階
- TEL:
- 03-6262-9750
- FAX:
- 03-6262-9751
- 所属団体:
- (公社)全日本不動産協会会員(公社)首都圏不動産公正取引協議会加盟
取引態様:仲介  - 00276094
|
- スマートフォンで
この不動産会社を見る

|
- 提携サイト等より掲載されている物件情報につきましては、不動産会社詳細情報にリンクされていないものがあります。
- 物件に関するお問合せは、物件詳細ページの「情報提供会社」に表示されている不動産会社へ直接お願いいたします。
- 間取図は、現況を優先させていただきます。
- 映像は物件の一部を撮影したものです。物件の契約にあたっての最終判断はご自身の判断に基づいて行ってください。
- 仲介手数料について

アットホームは物件情報の適正化に努めております。
内容に誤りがある場合にはこちらへご連絡ください。