東京都千代田区九段北4丁目(市ヶ谷駅)の貸事務所:物件詳細
交通 所在地 |
駅徒歩 |
賃料 管理費等 |
敷金/保証金 礼金 |
使用部分面積 坪数/坪単価 |
物件種目 築年月 |
|
都営新宿線/市ヶ谷
東京都千代田区九段北4丁目
|
2分
|
34.87万円
93,901円
|
5ヶ月 / なし
1ヶ月
|
80.63m²
24.39坪/1.4297万円
|
貸事務所
1986年12月(築39年4ヶ月)
|
|
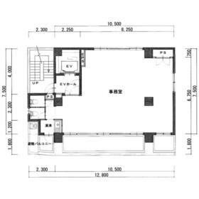
間取図
|
|
その他の画像
|
| 交通 | 都営新宿線 市ヶ谷駅 徒歩2分 |
|---|
| その他の交通 | JR総武線 市ケ谷駅 徒歩4分 東京メトロ有楽町線 市ケ谷駅 徒歩4分 |
| 所在地 |
東京都千代田区九段北4丁目
|
| 物件種目 |
貸事務所 |
| 賃料 |
34.87万円 |
管理費等 |
93,901円 |
| 敷金 / 保証金 |
5ヶ月 / なし |
礼金 |
1ヶ月 |
| 敷引 |
- |
坪単価 |
1.4297万円 |
| 保証金償却 |
- |
権利金 |
- |
| 造作譲渡 |
- |
その他一時金 |
- |
| 維持費等 |
- |
保険等 |
要 火災 |
| 使用部分面積 |
80.63m² |
坪数 |
24.39坪 |
| 築年月 |
1986年12月(築39年4ヶ月)
|
階建 / 階 |
7階建 / 4階 |
| 駐車場 |
- |
バイク置き場 |
- |
| 駐輪場 |
- |
土地面積 |
- |
| 接道状況 |
-
|
用途地域 |
- |
| 間取り |
- |
建物構造 |
SRC |
| 建物名・部屋番号 |
九段北TLビル 5 |
| リフォーム履歴 |
- |
| リノベーション履歴 |
- |
| 特記事項 |
24時間利用可、フリーレント、24時間セキュリティー |
| 備考 |
賃貸保証等:加入要(必須)
管理形態/管理員の勤務形態:-/-
フリーレント:2ヶ月
フリーレント2ヶ月、手数料2ヶ月のキャンペーン実施中。礼金1ヶ月、敷金5ヶ月分です。駅近く、複数路線使用可能でアクセス良好。新耐震設計、火災保フリーレント2ヶ月、手数料2ヶ月のキャンペーン実施中。礼金1ヶ月、敷金5ヶ月分です。駅近く、複数路線使用可能でアクセス良好。新耐震設計、火災保険・指定保証会加入必須、償却なし(原状回復義務あり)。険・指定保証会加入必須、償却なし(原状回復義務あり)。
|
| エネルギー消費性能 |
- |
| 断熱性能 |
- |
| 目安光熱費 |
- |
| バス・トイレ |
専有部分にトイレあり |
| キッチン |
- |
| 設備・サービス |
暖房、冷房 |
| その他 |
エレベーター |
| 契約期間 |
2年 |
条件等 |
-
|
| 引渡可能時期 |
2026年2月上旬予定 |
現況 |
居住中 |
| 更新料 |
新賃料 1ヶ月 |
物件番号 |
6988450510 |
| 情報公開日 |
2025年11月20日 |
次回更新予定日 |
2026年3月9日 |
| ケータイ用バーコード |
- スマートフォンでこの物件を見る
- スマートフォンからもこの物件をご覧になれます。
|
※「-」と表示されている項目については、情報提供会社にご確認ください。
| 周辺施設 |
まいばすけっと九段南3丁目店 |
| 距離 |
369m |
| 周辺施設 |
セブンイレブン九段北4丁目店 |
| 距離 |
80m |
| 周辺施設 |
ゆうちょ銀行本店市ヶ谷駅内出張所 |
| 距離 |
315m |
| 周辺施設 |
東京消防庁第一消防方面本部 |
| 距離 |
1057m |
ここから簡単にお問い合わせをすることができます。
(SSLでの暗号化での送信を希望されるお客さまは
こちら
よりお問い合わせください)
お問い合わせを行う前に
「個人情報の取り扱いについて」を必ずお読みください。
「個人情報の取り扱いについて」に同意いただいた場合は「上記にご同意の上 確認画面へ進む」のボタンをクリックしてください。
個人情報の取り扱いについて
皆さまが送付された個人情報はアットホーム(株)のサーバを経由し、お問い合わせ先の不動産会社にメールまたはFAXにて転送されるためアットホーム(株)にも保管されます。アットホーム(株)で保管された個人情報の取り扱いについては、【こちら】をご覧ください。
また、本画面でご記入いただいた個人情報は、お問い合わせ先の不動産会社でも保管します。 お問い合わせ先の不動産会社が保管する個人情報の取り扱いについては、不動産会社に直接お問い合わせください。
東京都知事免許(1)第108997号 |
|---|
- 交通:
- JR山手線/神田駅 徒歩2分
- 東京都千代田区鍛冶町1丁目5-2 鍛冶町ビル
- TEL:
- 03-3256-0045
- FAX:
- 03-3252-0160
- 所属団体:
- (公社)東京都宅地建物取引業協会会員(公社)首都圏不動産公正取引協議会加盟
取引態様:仲介  - 00274711
|
- スマートフォンで
この不動産会社を見る

|
- 提携サイト等より掲載されている物件情報につきましては、不動産会社詳細情報にリンクされていないものがあります。
- 物件に関するお問合せは、物件詳細ページの「情報提供会社」に表示されている不動産会社へ直接お願いいたします。
- 間取図は、現況を優先させていただきます。
- 映像は物件の一部を撮影したものです。物件の契約にあたっての最終判断はご自身の判断に基づいて行ってください。
- 仲介手数料について

アットホームは物件情報の適正化に努めております。
内容に誤りがある場合にはこちらへご連絡ください。