東京都港区虎ノ門5丁目(神谷町駅)の貸事務所:物件詳細
交通 所在地 |
駅徒歩 |
賃料 管理費等 |
敷金/保証金 礼金 |
使用部分面積 坪数/坪単価 |
物件種目 築年月 |
|
東京メトロ日比谷線/神谷町
東京都港区虎ノ門5丁目
|
1分
|
341.264万円
なし
|
12ヶ月 / なし
なし
|
366.54m²
110.87坪/3.0779万円
|
貸事務所
1982年10月(築43年3ヶ月)
|
|
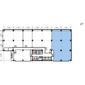
間取図
|
|
その他の画像
|
| 交通 | 東京メトロ日比谷線 神谷町駅 徒歩1分 |
|---|
| その他の交通 | 東京メトロ日比谷線 虎ノ門ヒルズ駅 徒歩7分 都営三田線 御成門駅 徒歩8分 |
| 所在地 |
東京都港区虎ノ門5丁目
|
| 物件種目 |
貸事務所 |
| 賃料 |
341.264万円 |
管理費等 |
なし |
| 敷金 / 保証金 |
12ヶ月 / なし |
礼金 |
なし |
| 敷引 |
- |
坪単価 |
3.0779万円 |
| 保証金償却 |
- |
権利金 |
- |
| 造作譲渡 |
- |
その他一時金 |
- |
| 維持費等 |
- |
保険等 |
- |
| 使用部分面積 |
366.54m² |
坪数 |
110.87坪 |
| 築年月 |
1982年10月(築43年3ヶ月)
|
階建 / 階 |
地上9階地下3階建 / 5階 |
| 駐車場 |
- |
バイク置き場 |
- |
| 駐輪場 |
- |
土地面積 |
- |
| 接道状況 |
-
|
用途地域 |
- |
| 間取り |
- |
建物構造 |
SRC |
| アピールポイント |
★神谷町駅直結!
★東京ワールドゲートにも直結!
★桜田通りに面する開放的なフロア! |
| 建物名・部屋番号 |
虎ノ門40MTビル 5F |
| リフォーム履歴 |
- |
| リノベーション履歴 |
- |
| 特記事項 |
24時間利用可、土日・祝日利用可、OAフロア、駐車場3台分以上、24時間セキュリティー、国道沿いに面する |
| 備考 |
管理形態/管理員の勤務形態:-/-
■設備/天井高2,450MM OAフロア50MM 床荷重400㎏/㎡ OA電気容量40VA/㎡ 空調/インナー:天井カセット型ファンコイル方式 駐車場有60台(カーリフト+自走式2段パーク 要空確認)長5.6M、幅2.05M、高1.5M、重量2.2t エレベーター:常用3基 サスティナビリティ/再生可能エネルギー導入(RE100対応)■館内施設・サービス/飲食施設 和・洋・中が揃うバラエティ豊富なレストラン街 歯科 コンビニエンスストア カンファレンス シェアオフィス 保育所 ラウンジ 喫煙所
|
| エネルギー消費性能 |
- |
| 断熱性能 |
- |
| 目安光熱費 |
- |
| バス・トイレ |
トイレ2ヶ所、共用部分に男女別トイレあり |
| キッチン |
- |
| 設備・サービス |
エアコン2台以上、防犯カメラ、ビルトインエアコン |
| その他 |
エレベーター2基以上、人荷用エレベーター |
| 契約期間 |
3年 |
条件等 |
定期借家
|
| 引渡可能時期 |
即時 |
現況 |
空 |
| 更新料 |
なし |
物件番号 |
6988587043 |
| 情報公開日 |
2025年12月1日 |
次回更新予定日 |
2025年12月30日 |
| ケータイ用バーコード |
- スマートフォンでこの物件を見る
- スマートフォンからもこの物件をご覧になれます。
|
※「-」と表示されている項目については、情報提供会社にご確認ください。
ここから簡単にお問い合わせをすることができます。
(SSLでの暗号化での送信を希望されるお客さまは
こちら
よりお問い合わせください)
お問い合わせを行う前に
「個人情報の取り扱いについて」を必ずお読みください。
「個人情報の取り扱いについて」に同意いただいた場合は「上記にご同意の上 確認画面へ進む」のボタンをクリックしてください。
個人情報の取り扱いについて
皆さまが送付された個人情報はアットホーム(株)のサーバを経由し、お問い合わせ先の不動産会社にメールまたはFAXにて転送されるためアットホーム(株)にも保管されます。アットホーム(株)で保管された個人情報の取り扱いについては、【こちら】をご覧ください。
また、本画面でご記入いただいた個人情報は、お問い合わせ先の不動産会社でも保管します。 お問い合わせ先の不動産会社が保管する個人情報の取り扱いについては、不動産会社に直接お問い合わせください。
東京都知事免許(9)第54011号 |
|---|
- 交通:
- JR山手線/新橋駅 徒歩3分
- 東京都港区新橋4丁目9-1 新橋プラザビル103号
- TEL:
- 03-5408-7778
- 所属団体:
- (公社)東京都宅地建物取引業協会会員(公社)首都圏不動産公正取引協議会加盟
取引態様:仲介  - 00105709
|
- スマートフォンで
この不動産会社を見る

|
- 提携サイト等より掲載されている物件情報につきましては、不動産会社詳細情報にリンクされていないものがあります。
- 物件に関するお問合せは、物件詳細ページの「情報提供会社」に表示されている不動産会社へ直接お願いいたします。
- 間取図は、現況を優先させていただきます。
- 映像は物件の一部を撮影したものです。物件の契約にあたっての最終判断はご自身の判断に基づいて行ってください。
- 仲介手数料について

アットホームは物件情報の適正化に努めております。
内容に誤りがある場合にはこちらへご連絡ください。