東京都台東区浅草橋3丁目(浅草橋駅)の貸事務所:物件詳細
交通 所在地 |
駅徒歩 |
賃料 管理費等 |
敷金/保証金 礼金 |
使用部分面積 坪数/坪単価 |
物件種目 築年月 |
|
JR総武線/浅草橋
東京都台東区浅草橋3丁目
|
7分
|
119.12万円
255,453円
|
8ヶ月 / なし
なし
|
255.92m²
77.41坪/1.5388万円
|
貸事務所
1989年7月(築36年6ヶ月)
|
|
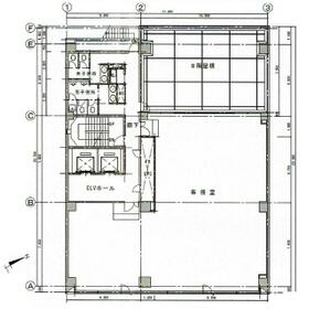
間取図
|
外観
1階にセブンイレブン
|
<
その他の画像
>
|
| 交通 | JR総武線 浅草橋駅 徒歩7分 |
|---|
| その他の交通 | 都営浅草線 蔵前駅 徒歩4分 都営大江戸線 蔵前駅 徒歩8分 |
| 所在地 |
東京都台東区浅草橋3丁目
|
| 物件種目 |
貸事務所 |
| 賃料 |
119.12万円 |
管理費等 |
255,453円 |
| 敷金 / 保証金 |
8ヶ月 / なし |
礼金 |
なし |
| 敷引 |
2ヶ月 |
坪単価 |
1.5388万円 |
| 保証金償却 |
- |
権利金 |
- |
| 造作譲渡 |
- |
その他一時金 |
- |
| 維持費等 |
- |
保険等 |
要 2年 借家人賠償責任保険 |
| 使用部分面積 |
255.92m² |
坪数 |
77.41坪 |
| 築年月 |
1989年7月(築36年6ヶ月)
|
階建 / 階 |
9階建 / 9階 |
| 駐車場 |
- |
バイク置き場 |
- |
| 駐輪場 |
- |
土地面積 |
- |
| 接道状況 |
-
|
用途地域 |
- |
| 間取り |
- |
建物構造 |
SRC |
| アピールポイント |
《アピールポイント》
江戸通り沿い1階セブンイレブン視認性良好
蔵前駅歩4分、浅草橋駅歩6分
JR総武・都営浅草・大江戸3路線利用可
EV2基 レイアウトしやすい無柱空間
トイレ等水回りが執務室外に設置
居抜き(内部造作)引き継可能:大・小会議室
WEB会議ブース3 リフレッシュルーム
《周辺環境》
みずほ銀行 浅草橋支店約385m
三菱UFJ銀行 浅草橋支店約424m
朝日信用金庫浅草橋支店約178m
くらまえ橋郵便局約256m
セブンイレブン約10m
ファミリーマート浅草橋三丁目店102m
まいばすけっと浅草橋駅北店約213m
マルエツプチ蔵前四丁目店約122m
台東区立くらまえオレンジ図書館約373m
鳥越神社約366m
すき家浅草橋駅前店約434m
大戸屋ごはん処浅草橋店約300m
フレッシュネスバーガー浅草橋店約435m
物件のご検討については、是非、現地をご覧に頂き、周辺環境や物件の詳細を明確に
ご理解頂くことをお勧め致します
おかげさまで弊社は創業17周年を迎えることとなりました
弊社のオフィス情報はハトマークサイトでもご覧頂けます ぜひ、ご相談下さい! |
| 建物名・部屋番号 |
浅草橋ミハマビル |
| リフォーム履歴 |
- |
| リノベーション履歴 |
- |
| 特記事項 |
土日・祝日利用可、OAフロア、1フロア1テナント、最上階、24時間セキュリティー、都道府県道沿いに面する |
| 備考 |
管理形態/管理員の勤務形態:-/-
|
| エネルギー消費性能 |
- |
| 断熱性能 |
- |
| 目安光熱費 |
- |
| バス・トイレ |
共用部分に男女別トイレあり |
| キッチン |
- |
| 設備・サービス |
個別空調、防犯カメラ |
| その他 |
エレベーター2基以上 |
| 契約期間 |
2年 |
条件等 |
-
|
| 引渡可能時期 |
2026年1月中旬予定 |
現況 |
使用中 |
| 更新料 |
新賃料 1ヶ月 |
物件番号 |
6988626182 |
| 情報公開日 |
2025年12月3日 |
次回更新予定日 |
2025年12月17日 |
| ケータイ用バーコード |
- スマートフォンでこの物件を見る
- スマートフォンからもこの物件をご覧になれます。
|
※「-」と表示されている項目については、情報提供会社にご確認ください。
| 周辺施設 |
マルエツプチ蔵前四丁目店 |
| 距離 |
122m |
写真を見る |
| 周辺施設 |
まいばすけっと浅草橋駅北店 |
| 距離 |
213m |
写真を見る |
| 周辺施設 |
セブンイレブン台東浅草橋3丁目東店 |
| 距離 |
8m |
写真を見る |
| 周辺施設 |
ファミリーマート浅草橋三丁目店 |
| 距離 |
102m |
写真を見る |
| 周辺施設 |
なか卯蔵前橋店 |
| 距離 |
163m |
写真を見る |
| 周辺施設 |
ドラッグセイムス蔵前3丁目店 |
| 距離 |
363m |
写真を見る |
| 周辺施設 |
くらまえ橋郵便局 |
| 距離 |
256m |
写真を見る |
| 周辺施設 |
みずほ銀行浅草橋支店 |
| 距離 |
385m |
写真を見る |
ここから簡単にお問い合わせをすることができます。
(SSLでの暗号化での送信を希望されるお客さまは
こちら
よりお問い合わせください)
お問い合わせを行う前に
「個人情報の取り扱いについて」を必ずお読みください。
「個人情報の取り扱いについて」に同意いただいた場合は「上記にご同意の上 確認画面へ進む」のボタンをクリックしてください。
個人情報の取り扱いについて
皆さまが送付された個人情報はアットホーム(株)のサーバを経由し、お問い合わせ先の不動産会社にメールまたはFAXにて転送されるためアットホーム(株)にも保管されます。アットホーム(株)で保管された個人情報の取り扱いについては、【こちら】をご覧ください。
また、本画面でご記入いただいた個人情報は、お問い合わせ先の不動産会社でも保管します。 お問い合わせ先の不動産会社が保管する個人情報の取り扱いについては、不動産会社に直接お問い合わせください。
東京都知事免許(4)第90587号 |
|---|
- 交通:
- 東京メトロ千代田線/綾瀬駅 徒歩3分
- 東京都足立区綾瀬3丁目16-15
- TEL:
- 03-5856-3856
- FAX:
- 03-3629-9005
- 所属団体:
- (公社)東京都宅地建物取引業協会会員(公社)首都圏不動産公正取引協議会加盟
取引態様:仲介  - 00101134
|
- スマートフォンで
この不動産会社を見る

|
- 提携サイト等より掲載されている物件情報につきましては、不動産会社詳細情報にリンクされていないものがあります。
- 物件に関するお問合せは、物件詳細ページの「情報提供会社」に表示されている不動産会社へ直接お願いいたします。
- 間取図は、現況を優先させていただきます。
- 映像は物件の一部を撮影したものです。物件の契約にあたっての最終判断はご自身の判断に基づいて行ってください。
- 仲介手数料について

アットホームは物件情報の適正化に努めております。
内容に誤りがある場合にはこちらへご連絡ください。