東京都港区虎ノ門1丁目(虎ノ門駅)の貸事務所:物件詳細
交通 所在地 |
駅徒歩 |
賃料 管理費等 |
敷金/保証金 礼金 |
使用部分面積 坪数/坪単価 |
物件種目 築年月 |
|
東京メトロ銀座線/虎ノ門
東京都港区虎ノ門1丁目
|
2分
|
要確認
|
要確認
|
281.08m²
85.02坪/要確認
|
貸事務所
2013年2月(築12年11ヶ月)
|
|
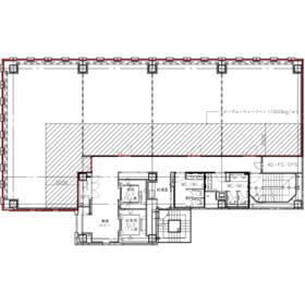
間取図
|
|
その他の画像
|
| 交通 | 東京メトロ銀座線 虎ノ門駅 徒歩2分 |
|---|
| その他の交通 | 東京メトロ千代田線 霞ケ関駅 徒歩6分 都営三田線 内幸町駅 徒歩9分 |
| 所在地 |
東京都港区虎ノ門1丁目
|
| 物件種目 |
貸事務所 |
| 賃料 |
要確認 |
管理費等 |
要確認 |
| 敷金 / 保証金 |
要確認 |
礼金 |
要確認 |
| 敷引 |
要確認 |
坪単価 |
要確認 |
| 保証金償却 |
要確認 |
権利金 |
- |
| 造作譲渡 |
- |
その他一時金 |
- |
| 維持費等 |
- |
保険等 |
要 火災 |
| 使用部分面積 |
281.08m² |
坪数 |
85.02坪 |
| 築年月 |
2013年2月(築12年11ヶ月)
|
階建 / 階 |
地上12階地下1階建 / 6階 |
| 駐車場 |
有 50,000円/月 ハイルーフ対応区画もあります。要条件・空き確認 |
バイク置き場 |
- |
| 駐輪場 |
- |
土地面積 |
- |
| 接道状況 |
-
|
用途地域 |
- |
| 間取り |
- |
建物構造 |
鉄骨造 |
| アピールポイント |
洗練された外観、エントランスも綺麗です!
■エントランス:平日・土曜8~20時開館、日・祝閉館
■EV:不停止付
※時間外は通用口
■床:タイルカーペット
■OA:100mm
■定期借家:期間相談 |
| 建物名・部屋番号 |
第3虎の門電気ビルディング 6F |
| リフォーム履歴 |
- |
| リノベーション履歴 |
- |
| 特記事項 |
24時間利用可、OAフロア、免震構造、天井高2.5M以上 |
| 備考 |
賃貸保証等:加入要(別途)
管理形態/管理員の勤務形態:-/-
洗練された外観、エントランスも綺麗です!
■エントランス:平日・土曜8~20時開館、日・祝閉館
■EV:不停止付
※時間外は通用口
■床:タイルカーペット
■OA:100mm
■定期借家:期間相談
|
| エネルギー消費性能 |
- |
| 断熱性能 |
- |
| 目安光熱費 |
- |
| バス・トイレ |
トイレ2ヶ所、専有部分に男女別トイレあり |
| キッチン |
- |
| 設備・サービス |
個別空調、給湯、エアコン、暖房、冷房、光ファイバー |
| その他 |
エレベーター2基以上、エレベーター |
| 契約期間 |
2年 |
条件等 |
定期借家
|
| 引渡可能時期 |
2026年6月予定 |
現況 |
使用中 |
| 仲介手数料 |
1ヶ月 |
|
|
| 更新料 |
要確認 |
物件番号 |
6988808720 |
| 情報公開日 |
2025年12月18日 |
次回更新予定日 |
2026年1月1日 |
| ケータイ用バーコード |
- スマートフォンでこの物件を見る
- スマートフォンからもこの物件をご覧になれます。
|
※「-」と表示されている項目については、情報提供会社にご確認ください。
| 周辺施設 |
ローソン虎ノ門駅南店 |
| 距離 |
196m |
写真を見る |
| 周辺施設 |
珈琲大使館虎ノ門店 |
| 距離 |
134m |
写真を見る |
| 周辺施設 |
ドトールコーヒーショップ虎ノ門桜田通り店 |
| 距離 |
191m |
写真を見る |
| 周辺施設 |
セブンイレブン港区虎ノ門駅南店 |
| 距離 |
247m |
写真を見る |
| 周辺施設 |
タリーズコーヒー虎ノ門桜田通り店 |
| 距離 |
190m |
写真を見る |
| 周辺施設 |
みずほ銀行虎ノ門支店 |
| 距離 |
222m |
写真を見る |
| 周辺施設 |
虎ノ門郵便局 |
| 距離 |
288m |
写真を見る |
| 周辺施設 |
三菱UFJ銀行虎ノ門中央支店 |
| 距離 |
254m |
写真を見る |
ここから簡単にお問い合わせをすることができます。
(SSLでの暗号化での送信を希望されるお客さまは
こちら
よりお問い合わせください)
お問い合わせを行う前に
「個人情報の取り扱いについて」を必ずお読みください。
「個人情報の取り扱いについて」に同意いただいた場合は「上記にご同意の上 確認画面へ進む」のボタンをクリックしてください。
個人情報の取り扱いについて
皆さまが送付された個人情報はアットホーム(株)のサーバを経由し、お問い合わせ先の不動産会社にメールまたはFAXにて転送されるためアットホーム(株)にも保管されます。アットホーム(株)で保管された個人情報の取り扱いについては、【こちら】をご覧ください。
また、本画面でご記入いただいた個人情報は、お問い合わせ先の不動産会社でも保管します。 お問い合わせ先の不動産会社が保管する個人情報の取り扱いについては、不動産会社に直接お問い合わせください。
東京都知事免許(5)第79601号 |
|---|
- 交通:
- 都営浅草線/大門駅 徒歩1分
- 東京都港区芝大門1丁目15-7 芝大門ABC館ビル7F
- TEL:
- 03-3434-9666
- FAX:
- 03-3434-9665
- 所属団体:
- (公社)全日本不動産協会会員(一社)不動産協会会員(公社)首都圏不動産公正取引協議会加盟
取引態様:仲介  - 00160639
|
- スマートフォンで
この不動産会社を見る

|
- 提携サイト等より掲載されている物件情報につきましては、不動産会社詳細情報にリンクされていないものがあります。
- 物件に関するお問合せは、物件詳細ページの「情報提供会社」に表示されている不動産会社へ直接お願いいたします。
- 間取図は、現況を優先させていただきます。
- 映像は物件の一部を撮影したものです。物件の契約にあたっての最終判断はご自身の判断に基づいて行ってください。
- 仲介手数料について

アットホームは物件情報の適正化に努めております。
内容に誤りがある場合にはこちらへご連絡ください。