東京都新宿区天神町(神楽坂駅)の貸事務所:物件詳細
交通 所在地 |
駅徒歩 |
賃料 管理費等 |
敷金/保証金 礼金 |
使用部分面積 坪数/坪単価 |
物件種目 築年月 |
|
東京メトロ東西線/神楽坂
東京都新宿区天神町
|
2分
|
30.9672万円
77,418円
|
5ヶ月 / なし
なし
|
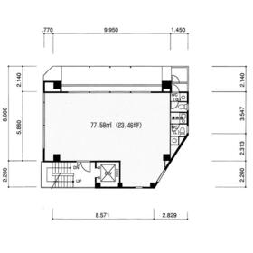
77.58m²
23.46坪/1.3196万円
|
貸事務所
1996年1月(築30年)
|
|
間取図
|
外観
|
<
その他の画像
>
|
| 交通 | 東京メトロ東西線 神楽坂駅 徒歩2分 |
|---|
| その他の交通 | 東京メトロ有楽町線 江戸川橋駅 徒歩8分 JR総武線 飯田橋駅 徒歩16分 |
| 所在地 |
東京都新宿区天神町
|
| 物件種目 |
貸事務所 |
| 賃料 |
30.9672万円 |
管理費等 |
77,418円 |
| 敷金 / 保証金 |
5ヶ月 / なし |
礼金 |
なし |
| 敷引 |
- |
坪単価 |
1.3196万円 |
| 保証金償却 |
- |
権利金 |
- |
| 造作譲渡 |
- |
その他一時金 |
- |
| 維持費等 |
- |
保険等 |
要 2年 火災保険 |
| 使用部分面積 |
77.58m² |
坪数 |
23.46坪 |
| 築年月 |
1996年1月(築30年)
|
階建 / 階 |
地上9階地下1階建 / 7階 |
| 駐車場 |
無 |
バイク置き場 |
無 |
| 駐輪場 |
無 |
土地面積 |
- |
| 接道状況 |
南
|
用途地域 |
- |
| 間取り |
- |
建物構造 |
SRC |
| 建物名・部屋番号 |
|
| リフォーム履歴 |
■内装:2025年11月 床(フローリング等) 床タイルカーペット張替え ※実施年月は最も古い履歴を表示 |
| リノベーション履歴 |
- |
| 特記事項 |
土日・祝日利用可、飲食店不可、1フロア1テナント、角部屋 |
| 備考 |
賃貸保証等:利用可(日本セーフティー株式会社)
管理形態/管理員の勤務形態:-/-
主要採光面:南向き
契約更新時、更新事務手数料として新賃料の0.55ヶ月分相当額(税込)を申し受けます。
水道・電気の使用料は子メーターにつき、2ヶ月ごとに貸主より請求いたします。原状回復義務あり。解約予告3ヶ月前。
|
| エネルギー消費性能 |
- |
| 断熱性能 |
- |
| 目安光熱費 |
- |
| バス・トイレ |
専有部分に男女別トイレあり |
| キッチン |
- |
| 設備・サービス |
エアコン2台以上、オートロック、防犯カメラ、給湯、ビルトインエアコン、火災警報器(報知機)、インターネット対応、光ファイバー |
| その他 |
エレベーター |
| 契約期間 |
2年 |
条件等 |
-
|
| 引渡可能時期 |
相談 |
現況 |
空 |
| 更新料 |
なし |
物件番号 |
6988821797 |
| 情報公開日 |
2025年12月22日 |
次回更新予定日 |
2026年1月10日 |
| ケータイ用バーコード |
- スマートフォンでこの物件を見る
- スマートフォンからもこの物件をご覧になれます。
|
※「-」と表示されている項目については、情報提供会社にご確認ください。
| 周辺施設 |
セブンイレブン新宿神楽坂駅西店 |
| 距離 |
106m |
写真を見る |
| 周辺施設 |
まいばすけっと神楽坂駅西店 |
| 距離 |
48m |
写真を見る |
| 周辺施設 |
オリジン弁当神楽坂店 |
| 距離 |
82m |
写真を見る |
ここから簡単にお問い合わせをすることができます。
(SSLでの暗号化での送信を希望されるお客さまは
こちら
よりお問い合わせください)
お問い合わせを行う前に
「個人情報の取り扱いについて」を必ずお読みください。
「個人情報の取り扱いについて」に同意いただいた場合は「上記にご同意の上 確認画面へ進む」のボタンをクリックしてください。
個人情報の取り扱いについて
皆さまが送付された個人情報はアットホーム(株)のサーバを経由し、お問い合わせ先の不動産会社にメールまたはFAXにて転送されるためアットホーム(株)にも保管されます。アットホーム(株)で保管された個人情報の取り扱いについては、【こちら】をご覧ください。
また、本画面でご記入いただいた個人情報は、お問い合わせ先の不動産会社でも保管します。 お問い合わせ先の不動産会社が保管する個人情報の取り扱いについては、不動産会社に直接お問い合わせください。
東京都知事免許(10)第44344号 |
|---|
- 交通:
- 都営新宿線/西大島駅 徒歩2分
- 東京都江東区大島3丁目1-16
- TEL:
- 03-3638-1801
- FAX:
- 03-3638-1802
- 所属団体:
- (公社)東京都宅地建物取引業協会会員(公社)首都圏不動産公正取引協議会加盟
取引態様:仲介  - 00211088
|
- スマートフォンで
この不動産会社を見る

|
- 提携サイト等より掲載されている物件情報につきましては、不動産会社詳細情報にリンクされていないものがあります。
- 物件に関するお問合せは、物件詳細ページの「情報提供会社」に表示されている不動産会社へ直接お願いいたします。
- 間取図は、現況を優先させていただきます。
- 映像は物件の一部を撮影したものです。物件の契約にあたっての最終判断はご自身の判断に基づいて行ってください。
- 仲介手数料について

アットホームは物件情報の適正化に努めております。
内容に誤りがある場合にはこちらへご連絡ください。