神奈川県横浜市中区住吉町4丁目(関内駅)の貸事務所:物件詳細
交通 所在地 |
駅徒歩 |
賃料 管理費等 |
敷金/保証金 礼金 |
使用部分面積 坪数/坪単価 |
物件種目 築年月 |
|
ブルーライン/関内
神奈川県横浜市中区住吉町4丁目
|
1分
|
8.8万円
3,300円
|
なし / 3ヶ月
1ヶ月
|
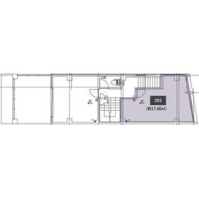
17.00m²
5.14坪/1.7113万円
|
貸事務所
1956年1月(築70年2ヶ月)
|
|
間取図
|
室内
|
<
その他の画像
>
|
| 交通 | ブルーライン 関内駅 徒歩1分 |
|---|
| その他の交通 | 横浜高速鉄道みなとみらい線 馬車道駅 徒歩4分 JR京浜東北線 関内駅 徒歩6分 |
| 所在地 |
神奈川県横浜市中区住吉町4丁目
|
| 物件種目 |
貸事務所 |
| 賃料 |
8.8万円 |
管理費等 |
3,300円 |
| 敷金 / 保証金 |
なし / 3ヶ月 |
礼金 |
1ヶ月 |
| 敷引 |
- |
坪単価 |
1.7113万円 |
| 保証金償却 |
- |
権利金 |
- |
| 造作譲渡 |
- |
その他一時金 |
- |
| 維持費等 |
- |
保険等 |
要 |
| 使用部分面積 |
17.00m² |
坪数 |
5.14坪 |
| 築年月 |
1956年1月(築70年2ヶ月)
|
階建 / 階 |
3階建 / 2階 |
| 駐車場 |
- |
バイク置き場 |
- |
| 駐輪場 |
- |
土地面積 |
- |
| 接道状況 |
-
|
用途地域 |
- |
| 間取り |
- |
建物構造 |
RC |
| アピールポイント |
馬車道沿いに佇むビルの中にあるコンパクトサイズの貸事務所!ブルーライン「関内」駅徒歩1分、みなとみらい線「馬車道」駅徒歩4分の好立地です!(JR京浜東北・根岸線「関内」駅徒歩6分も利用可)
このたび大規模なビル改装工事でフロア毎にリニューアルされました。
各フロアに2部屋ずつ、建物内部でそれぞれが独立している形状ですので、多くの人と顔を合わさずに集中して何かに取り組みたい方にもオススメです!洋服や小物などの物販店、画家や作家のアトリエなどが適しています。(利用用途事前相談要)
水道代が管理費に含まれているのも嬉しいポイントです!
共用トイレは2階と3階にそれぞれ1ヶ所、男性用と女性用で分かれていますので、安心してご利用頂けます♪ |
| 建物名・部屋番号 |
|
| リフォーム履歴 |
- |
| リノベーション履歴 |
- |
| 特記事項 |
土日・祝日利用可、飲食店不可、保証人不要 |
| 備考 |
賃貸保証等:加入要(初回:賃料等の100%(1年更新・更新時10000円))
管理形態/管理員の勤務形態:-/-
水道代は管理費に含みます(電気代は別途請求)
利用用途事前相談要
|
| エネルギー消費性能 |
- |
| 断熱性能 |
- |
| 目安光熱費 |
- |
| バス・トイレ |
共用部分に男女別トイレあり |
| キッチン |
- |
| 設備・サービス |
エアコン |
| その他 |
- |
| 契約期間 |
5年 |
条件等 |
定期借家
|
| 引渡可能時期 |
相談 |
現況 |
空 |
| 仲介手数料 |
1ヶ月 |
適格請求書発行 |
可
|
| 更新料 |
- |
物件番号 |
6989316680 |
| 情報公開日 |
2026年2月1日 |
次回更新予定日 |
2026年2月15日 |
| ケータイ用バーコード |
- スマートフォンでこの物件を見る
- スマートフォンからもこの物件をご覧になれます。
|
※「-」と表示されている項目については、情報提供会社にご確認ください。
ここから簡単にお問い合わせをすることができます。
(SSLでの暗号化での送信を希望されるお客さまは
こちら
よりお問い合わせください)
お問い合わせを行う前に
「個人情報の取り扱いについて」を必ずお読みください。
「個人情報の取り扱いについて」に同意いただいた場合は「上記にご同意の上 確認画面へ進む」のボタンをクリックしてください。
個人情報の取り扱いについて
皆さまが送付された個人情報はアットホーム(株)のサーバを経由し、お問い合わせ先の不動産会社にメールまたはFAXにて転送されるためアットホーム(株)にも保管されます。アットホーム(株)で保管された個人情報の取り扱いについては、【こちら】をご覧ください。
また、本画面でご記入いただいた個人情報は、お問い合わせ先の不動産会社でも保管します。 お問い合わせ先の不動産会社が保管する個人情報の取り扱いについては、不動産会社に直接お問い合わせください。
神奈川県知事免許(4)第27268号 |
|---|
- 交通:
- JR横須賀線/逗子駅 徒歩3分
- 神奈川県逗子市逗子5丁目1-12
- TEL:
- 046-872-3006
- FAX:
- 046-872-3007
- 所属団体:
- (公社)神奈川県宅地建物取引業協会会員(公社)首都圏不動産公正取引協議会加盟
取引態様:仲介  - 00101743
|
- スマートフォンで
この不動産会社を見る

|
- 提携サイト等より掲載されている物件情報につきましては、不動産会社詳細情報にリンクされていないものがあります。
- 物件に関するお問合せは、物件詳細ページの「情報提供会社」に表示されている不動産会社へ直接お願いいたします。
- 間取図は、現況を優先させていただきます。
- 映像は物件の一部を撮影したものです。物件の契約にあたっての最終判断はご自身の判断に基づいて行ってください。
- 仲介手数料について

アットホームは物件情報の適正化に努めております。
内容に誤りがある場合にはこちらへご連絡ください。