愛知県名古屋市緑区有松(有松駅)の貸事務所:物件詳細
交通 所在地 |
駅徒歩 |
賃料 管理費等 |
敷金/保証金 礼金 |
使用部分面積 坪数/坪単価 |
物件種目 築年月 |
|
名鉄名古屋本線/有松
愛知県名古屋市緑区有松
|
5分
|
15.4万円
3,300円
|
なし / 42万円
15.4万円
|
42.86m²
12.96坪/1.1879万円
|
貸事務所
1973年5月(築52年11ヶ月)
|
|
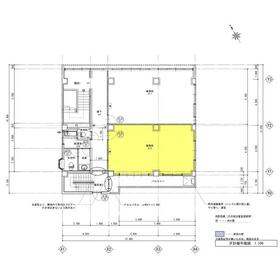
間取図
2階平面図 ※計画図のため、現況とは異なる場合がございます。(現況優先)
|
間取図
1階配置図 ※計画図のため、現況とは異なる場合がございます。(現況優先)
|
その他の画像
|
| 交通 | 名鉄名古屋本線 有松駅 徒歩5分 |
| 所在地 |
愛知県名古屋市緑区有松
|
| 物件種目 |
貸事務所 |
| 賃料 |
15.4万円 |
管理費等 |
3,300円 |
| 敷金 / 保証金 |
なし / 42万円 |
礼金 |
15.4万円 |
| 敷引 |
- |
坪単価 |
1.1879万円 |
| 保証金償却 |
解約時50% |
権利金 |
- |
| 造作譲渡 |
- |
その他一時金 |
- |
| 維持費等 |
- |
保険等 |
要 借家人賠償責任特約付き火災 |
| 使用部分面積 |
42.86m² |
坪数 |
12.96坪 |
| 築年月 |
1973年5月(築52年11ヶ月)
|
階建 / 階 |
4階建 / 2階 |
| 駐車場 |
有 11,000円/月(空き2台) 駐車場2台分(普通車1台、軽専用1台)の使用が可能です。使用料金:普通車 月額11,000円、軽専用 月額8,800円 ※借りないことも可 |
バイク置き場 |
無 |
| 駐輪場 |
無 |
土地面積 |
373.55m²(公簿) |
| 接道状況 |
北東 6.1m 公道 接面14.8m
|
用途地域 |
近隣商業、1種住居 |
| 間取り |
ワンルーム |
建物構造 |
RC |
| アピールポイント |
名鉄名古屋本線有松駅徒歩約5分!歴史情緒あふれる旧東海道に面したリフォーム済み物件です。新規開業・支店開設をご検討の方におすすめです。 |
| 建物名・部屋番号 |
福松有松ビル 202 |
| リフォーム履歴 |
■内装:2026年4月 内装全面(床・壁・天井・建具) ■外装:2026年4月 外壁 ■共用部の大規模修繕工事:2026年4月 2階共用部にトイレ(男女別)、洗面室、給湯室を新設。 ※実施年月は最も古い履歴を表示 |
| リノベーション履歴 |
- |
| 特記事項 |
飲食店不可、駐車場2台分 |
| 備考 |
賃貸保証等:加入要(CIZあいたく保証)
管理形態/管理員の勤務形態:-/-
※現在改装中。入居可能時期についてはお問い合わせください。
※名古屋市伝統的建造物群保存地区保存条例により、建物前面の東海道との道路境界沿いに「門及び塀」を設置します。そのため、建物1階部分の前面道路からの視認性は低下します。
|
| エネルギー消費性能 |
- |
| 断熱性能 |
- |
| 目安光熱費 |
- |
| バス・トイレ |
共用部分に男女別トイレあり |
| キッチン |
- |
| 設備・サービス |
エアコン |
| その他 |
- |
| 契約期間 |
2年 |
条件等 |
-
|
| 引渡可能時期 |
2026年5月予定 |
現況 |
空 |
| 仲介手数料 |
15.4万円 |
適格請求書発行 |
可
|
| 更新料 |
なし |
物件番号 |
6989539979 |
| 情報公開日 |
2026年3月2日 |
次回更新予定日 |
2026年4月3日 |
| ケータイ用バーコード |
- スマートフォンでこの物件を見る
- スマートフォンからもこの物件をご覧になれます。
|
※「-」と表示されている項目については、情報提供会社にご確認ください。
ここから簡単にお問い合わせをすることができます。
(SSLでの暗号化での送信を希望されるお客さまは
こちら
よりお問い合わせください)
お問い合わせを行う前に
「個人情報の取り扱いについて」を必ずお読みください。
「個人情報の取り扱いについて」に同意いただいた場合は「上記にご同意の上 確認画面へ進む」のボタンをクリックしてください。
個人情報の取り扱いについて
皆さまが送付された個人情報はアットホーム(株)のサーバを経由し、お問い合わせ先の不動産会社にメールまたはFAXにて転送されるためアットホーム(株)にも保管されます。アットホーム(株)で保管された個人情報の取り扱いについては、【こちら】をご覧ください。
また、本画面でご記入いただいた個人情報は、お問い合わせ先の不動産会社でも保管します。 お問い合わせ先の不動産会社が保管する個人情報の取り扱いについては、不動産会社に直接お問い合わせください。
愛知県知事免許(8)第16303号 |
|---|
- 交通:
- 名鉄名古屋本線/左京山駅 徒歩15分
- 愛知県名古屋市緑区若田2丁目1010
- TEL:
- 052-624-2121
- FAX:
- 052-622-4755
- 所属団体:
- (公社)愛知県宅地建物取引業協会会員東海不動産公正取引協議会加盟
取引態様:仲介  - 40002974
|
- スマートフォンで
この不動産会社を見る

|
- 提携サイト等より掲載されている物件情報につきましては、不動産会社詳細情報にリンクされていないものがあります。
- 物件に関するお問合せは、物件詳細ページの「情報提供会社」に表示されている不動産会社へ直接お願いいたします。
- 間取図は、現況を優先させていただきます。
- 映像は物件の一部を撮影したものです。物件の契約にあたっての最終判断はご自身の判断に基づいて行ってください。
- 仲介手数料について

アットホームは物件情報の適正化に努めております。
内容に誤りがある場合にはこちらへご連絡ください。