東京都台東区鳥越2丁目(蔵前駅)の貸事務所:物件詳細
交通 所在地 |
駅徒歩 |
賃料 管理費等 |
敷金/保証金 礼金 |
使用部分面積 坪数/坪単価 |
物件種目 築年月 |
|
都営浅草線/蔵前
東京都台東区鳥越2丁目
|
5分
|
61.6528万円
なし
|
なし / 8ヶ月
1ヶ月
|
115.80m²
35.02坪/1.7601万円
|
貸事務所
2016年5月(築10年1ヶ月)
|
|
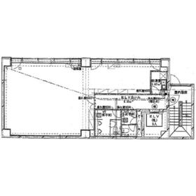
間取図
|
|
その他の画像
|
| 交通 | 都営浅草線 蔵前駅 徒歩5分 |
|---|
| その他の交通 | JR総武線 浅草橋駅 徒歩10分 つくばエクスプレス 新御徒町駅 徒歩11分 |
| 所在地 |
東京都台東区鳥越2丁目
|
| 物件種目 |
貸事務所 |
| 賃料 |
61.6528万円 |
管理費等 |
なし |
| 敷金 / 保証金 |
なし / 8ヶ月 |
礼金 |
1ヶ月 |
| 敷引 |
- |
坪単価 |
1.7601万円 |
| 保証金償却 |
- |
権利金 |
- |
| 造作譲渡 |
- |
その他一時金 |
- |
| 維持費等 |
水道代:3,500円/月 |
保険等 |
要 火災 |
| 使用部分面積 |
115.80m² |
坪数 |
35.02坪 |
| 築年月 |
2016年5月(築10年1ヶ月)
|
階建 / 階 |
5階建 / 4階 |
| 駐車場 |
有 17,600円/月 平置き、屋根付き |
バイク置き場 |
- |
| 駐輪場 |
- |
土地面積 |
- |
| 接道状況 |
-
|
用途地域 |
- |
| 間取り |
- |
建物構造 |
RC |
| アピールポイント |
浅草線・大江戸線『蔵前』駅から徒歩5分、総武線『浅草橋』駅から徒歩10分と複数路線利用可能な好立地です。営業拠点としてもお勧めです。OAフロア完備、個別空調、男女別トイレとオフィスとしての必要機能を備えた物件です。平置きで屋根とシャッターが付いた駐車場の空きもあるため、営業車などの保有も可能です。1フロア1テナント、近隣も静かな環境から業務に集中できる環境でございます。現況は入居中ですが、内見も可能です。ご連絡をお待ちしております。 |
| 建物名・部屋番号 |
TKD鳥越ビル 4階 |
| リフォーム履歴 |
- |
| リノベーション履歴 |
- |
| 特記事項 |
24時間利用可、土曜日利用可、土日・祝日利用可、OAフロア、1フロア1テナント、24時間セキュリティー、耐震構造(新耐震基準)、天井高2.5M以上 |
| 備考 |
賃貸保証等:加入要(貸主指定の保証会社をご利用いただきます。)
管理形態/管理員の勤務形態:-/-
|
| エネルギー消費性能 |
- |
| 断熱性能 |
- |
| 目安光熱費 |
- |
| バス・トイレ |
専有部分に男女別トイレあり |
| キッチン |
- |
| 設備・サービス |
個別空調、エアコン2台以上、オートロック、防犯カメラ、給湯、動力あり、ビルトインエアコン、エアコン |
| その他 |
エレベーター |
| 契約期間 |
2年 |
条件等 |
-
|
| 引渡可能時期 |
指定有り2026年7月1日 |
現況 |
居住中 |
| 仲介手数料 |
1ヶ月 |
|
|
| 更新料 |
- |
物件番号 |
6989642512 |
| 情報公開日 |
2026年2月25日 |
次回更新予定日 |
2026年5月7日 |
| ケータイ用バーコード |
- スマートフォンでこの物件を見る
- スマートフォンからもこの物件をご覧になれます。
|
※「-」と表示されている項目については、情報提供会社にご確認ください。
| 周辺施設 |
マルエツプチ蔵前四丁目店 |
| 距離 |
281m |
| 周辺施設 |
セブンイレブン台東浅草橋3丁目店 |
| 距離 |
219m |
| 周辺施設 |
ドラッグセイムス蔵前3丁目店 |
| 距離 |
401m |
ここから簡単にお問い合わせをすることができます。
(SSLでの暗号化での送信を希望されるお客さまは
こちら
よりお問い合わせください)
お問い合わせを行う前に
「個人情報の取り扱いについて」を必ずお読みください。
「個人情報の取り扱いについて」に同意いただいた場合は「上記にご同意の上 確認画面へ進む」のボタンをクリックしてください。
個人情報の取り扱いについて
皆さまが送付された個人情報はアットホーム(株)のサーバを経由し、お問い合わせ先の不動産会社にメールまたはFAXにて転送されるためアットホーム(株)にも保管されます。アットホーム(株)で保管された個人情報の取り扱いについては、【こちら】をご覧ください。
また、本画面でご記入いただいた個人情報は、お問い合わせ先の不動産会社でも保管します。 お問い合わせ先の不動産会社が保管する個人情報の取り扱いについては、不動産会社に直接お問い合わせください。
国土交通大臣免許(1)第10868号 |
|---|
- 交通:
- JR山手線/新宿駅 徒歩3分
- 東京都新宿区西新宿7丁目4-4 武蔵ビル7F
- TEL:
- 03-6826-7602
- FAX:
- 03-5332-3035
- 所属団体:
- (公社)東京都宅地建物取引業協会会員(公社)首都圏不動産公正取引協議会加盟
取引態様:仲介  - 00018342
|
- スマートフォンで
この不動産会社を見る

|
- 提携サイト等より掲載されている物件情報につきましては、不動産会社詳細情報にリンクされていないものがあります。
- 物件に関するお問合せは、物件詳細ページの「情報提供会社」に表示されている不動産会社へ直接お願いいたします。
- 間取図は、現況を優先させていただきます。
- 映像は物件の一部を撮影したものです。物件の契約にあたっての最終判断はご自身の判断に基づいて行ってください。
- 仲介手数料について

アットホームは物件情報の適正化に努めております。
内容に誤りがある場合にはこちらへご連絡ください。