東京都新宿区西新宿4丁目(新宿駅)の貸事務所:物件詳細
交通 所在地 |
駅徒歩 |
賃料 管理費等 |
敷金/保証金 礼金 |
使用部分面積 坪数/坪単価 |
物件種目 築年月 |
|
JR山手線/新宿
東京都新宿区西新宿4丁目
|
14分
|
52.95万円
-
|
なし / 7ヶ月
1ヶ月
|
102.67m²
31.05坪/1.705万円
|
貸事務所
1992年6月(築33年10ヶ月)
|
|
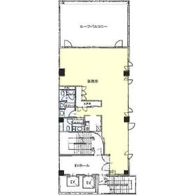
間取図
|
|
その他の画像
|
| 交通 | JR山手線 新宿駅 徒歩14分 |
|---|
| その他の交通 | 都営大江戸線 都庁前駅 徒歩7分 東京メトロ丸ノ内線 西新宿駅 徒歩4分 |
| 所在地 |
東京都新宿区西新宿4丁目
|
| 物件種目 |
貸事務所 |
| 賃料 |
52.95万円 |
管理費等 |
- |
| 敷金 / 保証金 |
なし / 7ヶ月 |
礼金 |
1ヶ月 |
| 敷引 |
- |
坪単価 |
1.705万円 |
| 保証金償却 |
解約時1ヶ月 |
権利金 |
- |
| 造作譲渡 |
- |
その他一時金 |
- |
| 維持費等 |
水道料金:3,850円/月 |
保険等 |
要 貸主指定 |
| 使用部分面積 |
102.67m² |
坪数 |
31.05坪 |
| 築年月 |
1992年6月(築33年10ヶ月)
|
階建 / 階 |
地上7階地下2階建 / 7階 |
| 駐車場 |
- |
バイク置き場 |
- |
| 駐輪場 |
- |
土地面積 |
- |
| 接道状況 |
-
|
用途地域 |
- |
| 間取り |
- |
建物構造 |
SRC |
| アピールポイント |
新宿西口にある貸事務所物件になります。約31坪になり機械警備もついていますのでセキュリティも安心です。地下には貸会議室もあり1時間/2,000円で利用可能です。内見などお気軽にご連絡ください。 |
| 建物名・部屋番号 |
WIS Bldg 7階 |
| リフォーム履歴 |
- |
| リノベーション履歴 |
- |
| 特記事項 |
24時間利用可、土曜日利用可、土日・祝日利用可、OAフロア、飲食店不可、最上階、24時間セキュリティー、耐震構造(新耐震基準) |
| 備考 |
賃貸保証等:加入要(貸主指定保証会社)
管理形態/管理員の勤務形態:-/-
1フロア1テナント
機械警備
OAフロア
|
| エネルギー消費性能 |
- |
| 断熱性能 |
- |
| 目安光熱費 |
- |
| バス・トイレ |
共用部分に男女別トイレあり |
| キッチン |
- |
| 設備・サービス |
個別空調、エアコン |
| その他 |
エレベーター2基以上、エレベーター |
| 契約期間 |
2年 |
条件等 |
-
|
| 引渡可能時期 |
指定有り2026年7月1日 |
現況 |
使用中 |
| 仲介手数料 |
1.1ヶ月 |
|
|
| 更新料 |
新賃料 1ヶ月 |
物件番号 |
6989673074 |
| 情報公開日 |
2026年2月27日 |
次回更新予定日 |
2026年3月13日 |
| ケータイ用バーコード |
- スマートフォンでこの物件を見る
- スマートフォンからもこの物件をご覧になれます。
|
※「-」と表示されている項目については、情報提供会社にご確認ください。
| 周辺施設 |
ファミリーマート新宿中央公園店 |
| 距離 |
253m |
| 周辺施設 |
キッチンオリジン西新宿五丁目店 |
| 距離 |
443m |
| 周辺施設 |
マクドナルド西新宿5丁目店 |
| 距離 |
442m |
| 周辺施設 |
みずほ銀行東京都庁出張所 |
| 距離 |
678m |
ここから簡単にお問い合わせをすることができます。
(SSLでの暗号化での送信を希望されるお客さまは
こちら
よりお問い合わせください)
お問い合わせを行う前に
「個人情報の取り扱いについて」を必ずお読みください。
「個人情報の取り扱いについて」に同意いただいた場合は「上記にご同意の上 確認画面へ進む」のボタンをクリックしてください。
個人情報の取り扱いについて
皆さまが送付された個人情報はアットホーム(株)のサーバを経由し、お問い合わせ先の不動産会社にメールまたはFAXにて転送されるためアットホーム(株)にも保管されます。アットホーム(株)で保管された個人情報の取り扱いについては、【こちら】をご覧ください。
また、本画面でご記入いただいた個人情報は、お問い合わせ先の不動産会社でも保管します。 お問い合わせ先の不動産会社が保管する個人情報の取り扱いについては、不動産会社に直接お問い合わせください。
東京都知事免許(3)第97250号 |
|---|
- 交通:
- JR山手線/池袋駅 徒歩5分
- 東京都豊島区南池袋3丁目15-11 ナイスフォーラム南池袋6F
- TEL:
- 03-5956-4004
- FAX:
- 03-5396-3005
- 所属団体:
- (公社)全日本不動産協会会員(公社)首都圏不動産公正取引協議会加盟
取引態様:仲介  - 00161899
|
- スマートフォンで
この不動産会社を見る

|
- 提携サイト等より掲載されている物件情報につきましては、不動産会社詳細情報にリンクされていないものがあります。
- 物件に関するお問合せは、物件詳細ページの「情報提供会社」に表示されている不動産会社へ直接お願いいたします。
- 間取図は、現況を優先させていただきます。
- 映像は物件の一部を撮影したものです。物件の契約にあたっての最終判断はご自身の判断に基づいて行ってください。
- 仲介手数料について

アットホームは物件情報の適正化に努めております。
内容に誤りがある場合にはこちらへご連絡ください。