東京都新宿区舟町(四谷三丁目駅)の貸事務所:物件詳細
交通 所在地 |
駅徒歩 |
賃料 管理費等 |
敷金/保証金 礼金 |
使用部分面積 坪数/坪単価 |
物件種目 築年月 |
|
東京メトロ丸ノ内線/四谷三丁目
東京都新宿区舟町
|
5分
|
19.8万円
-
|
3ヶ月 / なし
1ヶ月
|
32.34m²
9.78坪/2.024万円
|
貸事務所
1968年5月(築57年11ヶ月)
|
|
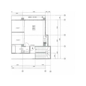
間取図
|
外観
|
<
その他の画像
>
|
| 交通 | 東京メトロ丸ノ内線 四谷三丁目駅 徒歩5分 |
|---|
| その他の交通 | 東京メトロ南北線 四ツ谷駅 徒歩15分 都営新宿線 曙橋駅 徒歩7分 |
| 所在地 |
東京都新宿区舟町
|
| 物件種目 |
貸事務所 |
| 賃料 |
19.8万円 |
管理費等 |
- |
| 敷金 / 保証金 |
3ヶ月 / なし |
礼金 |
1ヶ月 |
| 敷引 |
1ヶ月 |
坪単価 |
2.024万円 |
| 保証金償却 |
- |
権利金 |
- |
| 造作譲渡 |
- |
その他一時金 |
- |
| 維持費等 |
- |
保険等 |
要 2年 借家人賠償 |
| 使用部分面積 |
32.34m² |
坪数 |
9.78坪 |
| 築年月 |
1968年5月(築57年11ヶ月)
|
階建 / 階 |
4階建 / 3階 |
| 駐車場 |
無 |
バイク置き場 |
有 10,000円/月 |
| 駐輪場 |
有 1,000円/月 |
土地面積 |
- |
| 接道状況 |
-
|
用途地域 |
- |
| 間取り |
ワンルーム |
建物構造 |
RC |
| アピールポイント |
2駅2路線利用可の最寄駅からも程近い静かな街区に位置します。事務所に、SOHO利用にいかがでしょうか。業種はご相談ください。バイク置場と自転車置場もまだスペースがございます。明るいお部屋で24時間・365日利用可能です。静かな業態でしたらご相談が可能でございます。ぜひ一度ご覧ください。お問合せをお待ちしております。 |
| 建物名・部屋番号 |
ビレッジ四ツ谷3ビル 301 |
| リフォーム履歴 |
- |
| リノベーション履歴 |
- |
| 特記事項 |
24時間利用可、土日・祝日利用可、角部屋 |
| 備考 |
賃貸保証等:加入要(初回保証委託は賃料等の1ヶ月分。)
管理形態/管理員の勤務形態:-/-
主要採光面:南向き
広めのワンルームをリノベーション済みで、2区画の仕切りと引き戸のあるスペースが造作されていますので、約2.8帖ある2部屋があるような室内間取りになっています。各スペースとも照明やコンセントが設置されていて使い勝手も良いかと思います。
|
| エネルギー消費性能 |
- |
| 断熱性能 |
- |
| 目安光熱費 |
- |
| バス・トイレ |
追焚機能、バス・トイレ同室、シャワー、専有部分にトイレあり、多機能トイレ |
| キッチン |
- |
| 設備・サービス |
洗濯機置場、給湯、都市ガス、エアコン |
| その他 |
- |
| 契約期間 |
2年 |
条件等 |
定期借家
|
| 引渡可能時期 |
相談 |
現況 |
空 |
| 仲介手数料 |
1ヶ月 |
適格請求書発行 |
可
|
| 更新料 |
- |
物件番号 |
6989868948 |
| 情報公開日 |
2026年3月14日 |
次回更新予定日 |
2026年3月30日 |
| ケータイ用バーコード |
- スマートフォンでこの物件を見る
- スマートフォンからもこの物件をご覧になれます。
|
※「-」と表示されている項目については、情報提供会社にご確認ください。
| 周辺施設 |
ファミリーマート四谷三丁目駅前店 |
| 距離 |
398m |
| 周辺施設 |
三菱UFJ銀行四谷三丁目支店 |
| 距離 |
950m |
ここから簡単にお問い合わせをすることができます。
(SSLでの暗号化での送信を希望されるお客さまは
こちら
よりお問い合わせください)
お問い合わせを行う前に
「個人情報の取り扱いについて」を必ずお読みください。
「個人情報の取り扱いについて」に同意いただいた場合は「上記にご同意の上 確認画面へ進む」のボタンをクリックしてください。
個人情報の取り扱いについて
皆さまが送付された個人情報はアットホーム(株)のサーバを経由し、お問い合わせ先の不動産会社にメールまたはFAXにて転送されるためアットホーム(株)にも保管されます。アットホーム(株)で保管された個人情報の取り扱いについては、【こちら】をご覧ください。
また、本画面でご記入いただいた個人情報は、お問い合わせ先の不動産会社でも保管します。 お問い合わせ先の不動産会社が保管する個人情報の取り扱いについては、不動産会社に直接お問い合わせください。
東京都知事免許(2)第100745号 |
|---|
- 交通:
- 京王線/代田橋駅 徒歩1分
- 東京都世田谷区大原2丁目26-20 ハイツ代田橋101
- TEL:
- 03-6379-4710
- FAX:
- 03-6379-4717
- 所属団体:
- (公社)全日本不動産協会会員(公社)首都圏不動産公正取引協議会加盟
取引態様:仲介  - 00262918
|
- スマートフォンで
この不動産会社を見る

|
- 提携サイト等より掲載されている物件情報につきましては、不動産会社詳細情報にリンクされていないものがあります。
- 物件に関するお問合せは、物件詳細ページの「情報提供会社」に表示されている不動産会社へ直接お願いいたします。
- 間取図は、現況を優先させていただきます。
- 映像は物件の一部を撮影したものです。物件の契約にあたっての最終判断はご自身の判断に基づいて行ってください。
- 仲介手数料について

アットホームは物件情報の適正化に努めております。
内容に誤りがある場合にはこちらへご連絡ください。