福岡県福岡市中央区六本松2丁目(六本松駅)の貸事務所:物件詳細
交通 所在地 |
駅徒歩 |
賃料 管理費等 |
敷金/保証金 礼金 |
使用部分面積 坪数/坪単価 |
物件種目 築年月 |
|
地下鉄七隈線/六本松
福岡県福岡市中央区六本松2丁目
|
3分
|
78.1847万円
-
|
10ヶ月 / なし
なし
|
138.24m²
41.81坪/1.8697万円
|
貸事務所
2019年3月(築7年3ヶ月)
|
|
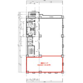
間取図
|
室内
写真手前側の約138.24㎡(41.81坪)になります
|
その他の画像
|
| 交通 | 地下鉄七隈線 六本松駅 徒歩3分 |
| 所在地 |
福岡県福岡市中央区六本松2丁目
|
| 物件種目 |
貸事務所 |
| 賃料 |
78.1847万円 |
管理費等 |
- |
| 敷金 / 保証金 |
10ヶ月 / なし |
礼金 |
なし |
| 敷引 |
- |
坪単価 |
1.8697万円 |
| 保証金償却 |
- |
権利金 |
- |
| 造作譲渡 |
- |
その他一時金 |
- |
| 維持費等 |
- |
保険等 |
要 借家人賠償責任 |
| 使用部分面積 |
138.24m² |
坪数 |
41.81坪 |
| 築年月 |
2019年3月(築7年3ヶ月)
|
階建 / 階 |
10階建 / 8階 |
| 駐車場 |
無 |
バイク置き場 |
- |
| 駐輪場 |
- |
土地面積 |
- |
| 接道状況 |
-
|
用途地域 |
商業地域 |
| 間取り |
- |
建物構造 |
RC |
| 建物名・部屋番号 |
六本松SKビル 8階A区画 |
| リフォーム履歴 |
- |
| リノベーション履歴 |
- |
| 特記事項 |
24時間利用可、土曜日利用可、土日・祝日利用可、OAフロア、24時間セキュリティー、耐震構造(新耐震基準)、天井高2.5M以上、バリアフリー、24時間換気システム |
| 備考 |
賃貸保証等:加入要(保証料:総賃料1か月分(フォーシーズ))
管理形態/管理員の勤務形態:-/-
主要採光面:南向き
床仕上げ:OAフロア
天井高:2700mm
機械警備
|
| エネルギー消費性能 |
- |
| 断熱性能 |
- |
| 目安光熱費 |
- |
| バス・トイレ |
共用部分に男女別トイレあり、多機能トイレ |
| キッチン |
- |
| 設備・サービス |
個別空調、エアコン2台以上、防犯カメラ、ビルトインエアコン、火災警報器(報知機)、光ファイバー |
| その他 |
荷積みスペース、エレベーター2基以上、車寄せスペース、障がい者等用駐車場、エレベーター |
| 契約期間 |
2年 |
条件等 |
-
|
| 引渡可能時期 |
2026年10月上旬予定 |
現況 |
使用中 |
| 更新料 |
- |
物件番号 |
6989876947 |
| 情報公開日 |
2026年3月13日 |
次回更新予定日 |
2026年5月12日 |
| ケータイ用バーコード |
- スマートフォンでこの物件を見る
- スマートフォンからもこの物件をご覧になれます。
|
※「-」と表示されている項目については、情報提供会社にご確認ください。
ここから簡単にお問い合わせをすることができます。
(SSLでの暗号化での送信を希望されるお客さまは
こちら
よりお問い合わせください)
お問い合わせを行う前に
「個人情報の取り扱いについて」を必ずお読みください。
「個人情報の取り扱いについて」に同意いただいた場合は「上記にご同意の上 確認画面へ進む」のボタンをクリックしてください。
個人情報の取り扱いについて
皆さまが送付された個人情報はアットホーム(株)のサーバを経由し、お問い合わせ先の不動産会社にメールまたはFAXにて転送されるためアットホーム(株)にも保管されます。アットホーム(株)で保管された個人情報の取り扱いについては、【こちら】をご覧ください。
また、本画面でご記入いただいた個人情報は、お問い合わせ先の不動産会社でも保管します。 お問い合わせ先の不動産会社が保管する個人情報の取り扱いについては、不動産会社に直接お問い合わせください。
福岡県知事免許(11)第8270号 |
|---|
- 交通:
- JR鹿児島本線/小倉駅 徒歩5分
- 福岡県北九州市小倉北区米町1丁目2-22 小倉NSビル5F
- TEL:
- 093-513-5028
- FAX:
- 093-513-5018
- 所属団体:
- (公社)福岡県宅地建物取引業協会会員(一社)九州不動産公正取引協議会加盟
取引態様:貸主  - 80900521
|
- スマートフォンで
この不動産会社を見る

|
- 提携サイト等より掲載されている物件情報につきましては、不動産会社詳細情報にリンクされていないものがあります。
- 物件に関するお問合せは、物件詳細ページの「情報提供会社」に表示されている不動産会社へ直接お願いいたします。
- 間取図は、現況を優先させていただきます。
- 映像は物件の一部を撮影したものです。物件の契約にあたっての最終判断はご自身の判断に基づいて行ってください。
- 仲介手数料について

アットホームは物件情報の適正化に努めております。
内容に誤りがある場合にはこちらへご連絡ください。