不動産 賃貸 マンション等の住宅情報:埼玉住まい情報


東京都渋谷区円山町(神泉駅)の貸事務所:物件詳細

  • 物件詳細
  • 情報の見方
  • 印刷用画面
交通
所在地
駅徒歩 賃料
管理費等
敷金/保証金
礼金
使用部分面積
坪数/坪単価
物件種目
築年月

京王井の頭線/神泉

東京都渋谷区円山町

3分

78.925万円

157,850円

なし / 8ヶ月

なし

135.54m²

41.00坪/1.925万円

貸事務所

1975年4月(築51年2ヶ月)

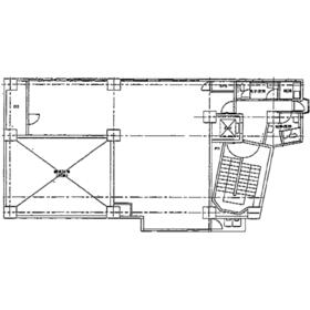
間取図

間取図

外観

外観

  • とりあえず保存
  • お問い合わせ
交通

京王井の頭線 神泉駅 徒歩3分

その他の交通

JR山手線 渋谷駅 徒歩6分

東京メトロ半蔵門線 渋谷駅 徒歩6分

所在地 東京都渋谷区円山町
物件種目 貸事務所
賃料 78.925万円 管理費等 157,850円
敷金 / 保証金 なし / 8ヶ月 礼金 なし
敷引 坪単価 1.925万円
保証金償却 解約時10% 権利金
造作譲渡 その他一時金
維持費等 保険等
使用部分面積 135.54m² 坪数 41.00坪
築年月 1975年4月(築51年2ヶ月) 階建 / 階 地上12階地下2階建 / 4階
駐車場 バイク置き場
駐輪場 土地面積
接道状況 用途地域
間取り 建物構造 SRC
建物名・部屋番号 新大宗道玄坂上ビル 401
リフォーム履歴
リノベーション履歴
特記事項 有人警備
備考
賃貸保証等:加入要(月額固定費の1ヶ月分)
管理形態/管理員の勤務形態:-/-
・有人警備(22時まで)
エネルギー消費性能
断熱性能
目安光熱費
バス・トイレ トイレ2ヶ所、共用部分に男女別トイレあり
キッチン
設備・サービス 個別空調、給湯、光ファイバー
その他 エレベーター
契約期間 2年 条件等 定期借家定期借家
引渡可能時期 即時 現況
更新料 新賃料 1ヶ月 物件番号 6989891763
情報公開日 2026年4月23日 次回更新予定日 2026年5月7日
ケータイ用バーコード

QRコード

スマートフォンでこの物件を見る
スマートフォンからもこの物件をご覧になれます。
※「-」と表示されている項目については、情報提供会社にご確認ください。

この物件の周辺情報

周辺施設 ローソン渋谷道玄坂上店
距離 59m
周辺施設 ファミリーマート道玄坂上店
距離 103m
周辺施設 コメダ珈琲店渋谷道玄坂上店
距離 113m
周辺施設 モスバーガー渋谷円山町店
距離 144m
周辺施設 すき家渋谷円山町店
距離 144m
周辺施設 渋谷道玄坂郵便局
距離 172m
周辺施設 ゆうちょ銀行本店渋谷マークシティ出張所
距離 403m
周辺施設 三菱UFJ銀行渋谷支店
距離 635m

クイックお問い合わせ

ここから簡単にお問い合わせをすることができます。
(SSLでの暗号化での送信を希望されるお客さまは こちら よりお問い合わせください)

お問い合わせ内容(必須)
物件のお問い合わせ理由(必須)
お名前・ご担当者様名(必須) 姓  名 
メールアドレス(必須)
※携帯電話のメールアドレスをご入力される方はこちらをご確認ください
電話番号(必須)
- -

※入力いただいた電話番号へSMSまたは音声でパスワードをご連絡します。

携帯電話の番号をご入力の方へ

携帯電話の番号をご入力の方へ
確認画面にて送信ボタンをクリックするとSMSが携帯電話に届きます。
そのSMSに記載のパスワード(認証番号)を入力し、お問い合わせを完了してください。
尚、SMSの送信者番号は 0005 202 760 となります。
これはアットホームの固定番号です。

備考欄 希望条件、物件案内希望日、質問などがございましたらご記入ください。
お問い合わせを行う前に「個人情報の取り扱いについて」を必ずお読みください。
「個人情報の取り扱いについて」に同意いただいた場合は「上記にご同意の上 確認画面へ進む」のボタンをクリックしてください。

個人情報の取り扱いについて

皆さまが送付された個人情報はアットホーム(株)のサーバを経由し、お問い合わせ先の不動産会社にメールまたはFAXにて転送されるためアットホーム(株)にも保管されます。アットホーム(株)で保管された個人情報の取り扱いについては、【こちら】をご覧ください。
また、本画面でご記入いただいた個人情報は、お問い合わせ先の不動産会社でも保管します。 お問い合わせ先の不動産会社が保管する個人情報の取り扱いについては、不動産会社に直接お問い合わせください。

情報提供会社

情報提供会社

(株)アドマイアー

東京都知事免許(3)第94663号

交通:
JR山手線/東京駅 徒歩4分
東京都中央区日本橋3丁目2-3 ユニバース第1ビル2階
TEL:
03-5204-1031
FAX:
03-5204-1032
所属団体:
(公社)全日本不動産協会会員
(公社)首都圏不動産公正取引協議会加盟

取引態様:仲介

  • 会社情報
  • 00019724
スマートフォンで
この不動産会社を見る
QRコード
  • とりあえず保存
  • お問い合わせ
  • 提携サイト等より掲載されている物件情報につきましては、不動産会社詳細情報にリンクされていないものがあります。
  • 物件に関するお問合せは、物件詳細ページの「情報提供会社」に表示されている不動産会社へ直接お願いいたします。
  • 間取図は、現況を優先させていただきます。
  • 映像は物件の一部を撮影したものです。物件の契約にあたっての最終判断はご自身の判断に基づいて行ってください。
  • 仲介手数料について仲介手数料

アットホームは物件情報の適正化に努めております。 内容に誤りがある場合にはこちらへご連絡ください。

【埼玉住まい情報】では、日本全国の物件から賃貸マンションや賃貸アパート・賃貸一戸建て等の賃貸住宅情報、新築マンション・分譲マンションや中古マンション等の売買マンション情報、新築一戸建てや中古一戸建てなどの戸建住宅、 土地など、総合的な不動産住宅情報検索サービスを提供致します。
【埼玉住まい情報】から、選りすぐりの不動産物件を探してみましょう。

【免責事項】
このコーナーの運営はアットホーム株式会社(https://www.athome.co.jp/)が行っています。
このコーナーに掲載している物件情報は、「アットホーム不動産情報ネットワーク」に加盟する不動産会社等(情報提供元)から提供されています。信頼性の高い情報提供が行えるよう、最大限の努力をしておりますが、その内容を保証するものではありません。 利用者のみなさまと各情報提供元との取引に起因する損害および情報が掲載されたことに起因する損害等については、株式会社イーシティ埼玉、およびアットホームは一切責任を負いません。
各物件情報の内容や画像等はすべて現況を優先させていただきます。
お取引等(お取引の準備、資金調達等を含みます)の際には、内容や契約条件等について、各情報提供元より十分な説明を受け、ご自身でご確認の上、判断してください。
このコーナーへの物件情報のご掲載、その他不動産業務ソリューション等についての不動産会社様のお問合せはこちらからお願いいたします。

物件画像: