東京都千代田区九段北1丁目(九段下駅)の貸事務所:物件詳細
交通 所在地 |
駅徒歩 |
賃料 管理費等 |
敷金/保証金 礼金 |
使用部分面積 坪数/坪単価 |
物件種目 築年月 |
|
東京メトロ東西線/九段下
東京都千代田区九段北1丁目
|
2分
|
35.8万円
-
|
なし / 8ヶ月
なし
|
61.33m²
18.55坪/1.9297万円
|
貸事務所
1991年1月(築35年3ヶ月)
|
|
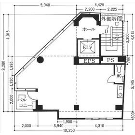
間取図
|
外観
|
<
その他の画像
>
|
| 交通 | 東京メトロ東西線 九段下駅 徒歩2分 |
|---|
| その他の交通 | 東京メトロ半蔵門線 神保町駅 徒歩8分 都営三田線 水道橋駅 徒歩13分 |
| 所在地 |
東京都千代田区九段北1丁目
|
| 物件種目 |
貸事務所 |
| 賃料 |
35.8万円 |
管理費等 |
- |
| 敷金 / 保証金 |
なし / 8ヶ月 |
礼金 |
なし |
| 敷引 |
- |
坪単価 |
1.9297万円 |
| 保証金償却 |
解約時1ヶ月 |
権利金 |
- |
| 造作譲渡 |
- |
その他一時金 |
契約事務手数料:16,500円、室内抗菌処理代(任意):9,020円 |
| 維持費等 |
- |
保険等 |
要 2年 火災 |
| 使用部分面積 |
61.33m² |
坪数 |
18.55坪 |
| 築年月 |
1991年1月(築35年3ヶ月)
|
階建 / 階 |
地上9階地下1階建 / 7階 |
| 駐車場 |
- |
バイク置き場 |
- |
| 駐輪場 |
- |
土地面積 |
- |
| 接道状況 |
-
|
用途地域 |
- |
| 間取り |
- |
建物構造 |
SRC |
| アピールポイント |
複数沿線利用可能。駅5分圏内の好立地エリア!
安心の新耐震基準の建物です。
ワンフロア1テナント。
店舗利用も相談可能です。
諸条件はご相談くださいませ。 |
| 建物名・部屋番号 |
東英九段ビル |
| リフォーム履歴 |
- |
| リノベーション履歴 |
- |
| 特記事項 |
24時間利用可、飲食店不可 |
| 備考 |
賃貸保証等:加入要(条件により異なります。)
管理形態/管理員の勤務形態:-/-
■その他の交通:メトロ半蔵門線「九段下駅」徒歩2分
■設備:専用ミニキッチン
■契約更新時、事務手数料あり
■鍵交換 借主負担あり
■店舗利用時は業種や使用方法により保証金が異なります。
|
| エネルギー消費性能 |
- |
| 断熱性能 |
- |
| 目安光熱費 |
- |
| バス・トイレ |
専有部分にトイレあり |
| キッチン |
- |
| 設備・サービス |
個別空調 |
| その他 |
エレベーター |
| 契約期間 |
2年 |
条件等 |
-
|
| 引渡可能時期 |
即時 |
現況 |
空 |
| 更新料 |
なし |
物件番号 |
6989954973 |
| 情報公開日 |
2026年3月17日 |
次回更新予定日 |
2026年4月3日 |
| ケータイ用バーコード |
- スマートフォンでこの物件を見る
- スマートフォンからもこの物件をご覧になれます。
|
※「-」と表示されている項目については、情報提供会社にご確認ください。
| 周辺施設 |
まいばすけっと九段北1丁目店 |
| 距離 |
10m |
写真を見る |
| 周辺施設 |
エクセルシオールカフェ九段下店 |
| 距離 |
40m |
写真を見る |
| 周辺施設 |
ファミリーマート九段北一丁目店 |
| 距離 |
44m |
写真を見る |
| 周辺施設 |
ローソン九段北目白通店 |
| 距離 |
50m |
写真を見る |
| 周辺施設 |
スギ薬局九段下店 |
| 距離 |
135m |
写真を見る |
| 周辺施設 |
セブンイレブン北の丸スクエア店 |
| 距離 |
190m |
写真を見る |
| 周辺施設 |
ニッポンレンタカー神保町九段下営業所 |
| 距離 |
104m |
写真を見る |
| 周辺施設 |
神田消防署三崎町出張所 |
| 距離 |
524m |
写真を見る |
ここから簡単にお問い合わせをすることができます。
(SSLでの暗号化での送信を希望されるお客さまは
こちら
よりお問い合わせください)
お問い合わせを行う前に
「個人情報の取り扱いについて」を必ずお読みください。
「個人情報の取り扱いについて」に同意いただいた場合は「上記にご同意の上 確認画面へ進む」のボタンをクリックしてください。
個人情報の取り扱いについて
皆さまが送付された個人情報はアットホーム(株)のサーバを経由し、お問い合わせ先の不動産会社にメールまたはFAXにて転送されるためアットホーム(株)にも保管されます。アットホーム(株)で保管された個人情報の取り扱いについては、【こちら】をご覧ください。
また、本画面でご記入いただいた個人情報は、お問い合わせ先の不動産会社でも保管します。 お問い合わせ先の不動産会社が保管する個人情報の取り扱いについては、不動産会社に直接お問い合わせください。
東京都知事免許(5)第79510号 |
|---|
- 交通:
- 東京メトロ千代田線/湯島駅 徒歩1分
- 東京都文京区湯島3丁目14-8 加田湯島ビル1F
- TEL:
- 03-5688-0160
- FAX:
- 03-5688-0161
- 所属団体:
- (公社)東京都宅地建物取引業協会会員(公社)首都圏不動産公正取引協議会加盟
取引態様:仲介  - 00015336
|
- スマートフォンで
この不動産会社を見る

|
- 提携サイト等より掲載されている物件情報につきましては、不動産会社詳細情報にリンクされていないものがあります。
- 物件に関するお問合せは、物件詳細ページの「情報提供会社」に表示されている不動産会社へ直接お願いいたします。
- 間取図は、現況を優先させていただきます。
- 映像は物件の一部を撮影したものです。物件の契約にあたっての最終判断はご自身の判断に基づいて行ってください。
- 仲介手数料について

アットホームは物件情報の適正化に努めております。
内容に誤りがある場合にはこちらへご連絡ください。