東京都品川区大崎1丁目(大崎駅)の貸事務所:物件詳細
交通 所在地 |
駅徒歩 |
賃料 管理費等 |
敷金/保証金 礼金 |
使用部分面積 坪数/坪単価 |
物件種目 築年月 |
|
湘南新宿ライン(宇都宮〜逗子)/大崎
東京都品川区大崎1丁目
|
3分
|
53.44万円
-
|
なし / 3ヶ月
なし
|
107.00m²
32.36坪/1.6511万円
|
貸事務所
1986年3月(築40年1ヶ月)
|
|
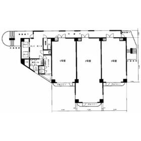
間取図
|
外観
|
その他の画像
|
| 交通 | 湘南新宿ライン(宇都宮〜逗子) 大崎駅 徒歩3分 |
|---|
| その他の交通 | 湘南新宿ライン(前橋〜小田原) 大崎駅 徒歩3分 東急池上線 大崎広小路駅 徒歩12分 |
| 所在地 |
東京都品川区大崎1丁目
|
| 物件種目 |
貸事務所 |
| 賃料 |
53.44万円 |
管理費等 |
- |
| 敷金 / 保証金 |
なし / 3ヶ月 |
礼金 |
なし |
| 敷引 |
- |
坪単価 |
1.6511万円 |
| 保証金償却 |
解約時20% |
権利金 |
- |
| 造作譲渡 |
- |
その他一時金 |
- |
| 維持費等 |
- |
保険等 |
要 |
| 使用部分面積 |
107.00m² |
坪数 |
32.36坪 |
| 築年月 |
1986年3月(築40年1ヶ月)
|
階建 / 階 |
8階建 / 3階 |
| 駐車場 |
- |
バイク置き場 |
- |
| 駐輪場 |
- |
土地面積 |
- |
| 接道状況 |
-
|
用途地域 |
- |
| 間取り |
- |
建物構造 |
SRC |
| アピールポイント |
大崎駅徒歩2分とアクセス良好な物件です。駅前で好立地で分室や独立な
どのかたにおすすめです。室内はタイルカーペットで室内にトイレあり
ます。3人前後での利用がお勧めです。内見や気になった際はお気軽にお
問い合わせください。 |
| 建物名・部屋番号 |
INOビル大崎 3階302号室 |
| リフォーム履歴 |
- |
| リノベーション履歴 |
- |
| 特記事項 |
24時間利用可、土曜日利用可、土日・祝日利用可 |
| 備考 |
賃貸保証等:利用可(月額固定費の1ヶ月分)
管理形態/管理員の勤務形態:-/-
|
| エネルギー消費性能 |
- |
| 断熱性能 |
- |
| 目安光熱費 |
- |
| バス・トイレ |
専有部分にトイレあり |
| キッチン |
- |
| 設備・サービス |
個別空調、インターネット対応 |
| その他 |
エレベーター |
| 契約期間 |
2年 |
条件等 |
-
|
| 引渡可能時期 |
2026年6月上旬予定 |
現況 |
使用中 |
| 仲介手数料 |
1ヶ月 |
|
|
| 更新料 |
- |
物件番号 |
6989964343 |
| 情報公開日 |
2026年3月17日 |
次回更新予定日 |
2026年3月31日 |
| ケータイ用バーコード |
- スマートフォンでこの物件を見る
- スマートフォンからもこの物件をご覧になれます。
|
※「-」と表示されている項目については、情報提供会社にご確認ください。
| 周辺施設 |
まいばすけっと大崎駅前店 |
| 距離 |
487m |
| 周辺施設 |
ファミリーマートゲートシティ大崎店 |
| 距離 |
176m |
| 周辺施設 |
スターバックスコーヒーゲートシティ大崎店 |
| 距離 |
185m |
| 周辺施設 |
くすりSTATION大崎店 |
| 距離 |
156m |
ここから簡単にお問い合わせをすることができます。
(SSLでの暗号化での送信を希望されるお客さまは
こちら
よりお問い合わせください)
お問い合わせを行う前に
「個人情報の取り扱いについて」を必ずお読みください。
「個人情報の取り扱いについて」に同意いただいた場合は「上記にご同意の上 確認画面へ進む」のボタンをクリックしてください。
個人情報の取り扱いについて
皆さまが送付された個人情報はアットホーム(株)のサーバを経由し、お問い合わせ先の不動産会社にメールまたはFAXにて転送されるためアットホーム(株)にも保管されます。アットホーム(株)で保管された個人情報の取り扱いについては、【こちら】をご覧ください。
また、本画面でご記入いただいた個人情報は、お問い合わせ先の不動産会社でも保管します。 お問い合わせ先の不動産会社が保管する個人情報の取り扱いについては、不動産会社に直接お問い合わせください。
東京都知事免許(1)第106093号 |
|---|
- 交通:
- JR山手線/神田駅 徒歩3分
- 東京都千代田区神田須田町1丁目26 ラシーヌ神田ビル6階
- TEL:
- 03-6262-9750
- FAX:
- 03-6262-9751
- 所属団体:
- (公社)全日本不動産協会会員(公社)首都圏不動産公正取引協議会加盟
取引態様:仲介  - 00276094
|
- スマートフォンで
この不動産会社を見る

|
- 提携サイト等より掲載されている物件情報につきましては、不動産会社詳細情報にリンクされていないものがあります。
- 物件に関するお問合せは、物件詳細ページの「情報提供会社」に表示されている不動産会社へ直接お願いいたします。
- 間取図は、現況を優先させていただきます。
- 映像は物件の一部を撮影したものです。物件の契約にあたっての最終判断はご自身の判断に基づいて行ってください。
- 仲介手数料について

アットホームは物件情報の適正化に努めております。
内容に誤りがある場合にはこちらへご連絡ください。