兵庫県姫路市白浜町宇佐崎中1丁目(八家駅)の貸土地:物件詳細
交通 所在地 |
駅徒歩 |
賃料 坪単価 |
敷金/保証金 礼金 |
土地面積(坪数) 最適用途 |
建ぺい率 容積率 |
|
山陽電鉄本線/八家
兵庫県姫路市白浜町宇佐崎中1丁目
|
6分
|
50万円
0.11万円
|
4ヶ月 / なし
なし
|
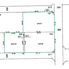
1,619.01m²
(489.74坪)
駐車場用地
|
60%
200%
|
|
地形図等
|
外観
|
その他の画像
|
| 交通 | 山陽電鉄本線 八家駅 徒歩6分 |
| 所在地 |
兵庫県姫路市白浜町宇佐崎中1丁目
|
| 物件種目 |
貸地 |
| 賃料 |
50万円 |
管理費等 |
- |
| 敷金 / 保証金 |
4ヶ月 / なし |
礼金 |
なし |
| 坪単価 |
0.11万円 |
敷引 |
- |
| 保証金償却 |
- |
権利金 |
- |
| 維持費等 |
- |
その他一時金 |
- |
| 保険等 |
- |
|
|
| 土地面積 |
1,619.01m²(公簿) |
坪数 |
489.74坪 |
| 私道負担面積 |
- |
都市計画 |
市街化区域 |
| 用途地域 |
2種住居 |
最適用途 |
駐車場用地 |
| 建ぺい率 |
60% |
容積率 |
200% |
| 地勢 |
- |
接道状況 |
北 6.0m 公道
・
東 8.0m 公道
・
南 6.0m 公道
・
三方道路
|
| 地目 |
宅地 |
セットバック |
- |
| 特記事項 |
- |
| 備考 |
管理形態/管理員の勤務形態:-/-
駐車場契約時は消費税要
土地造作についてはご相談ください
短期賃貸も相談可能です
|
| エネルギー消費性能 |
- |
| 断熱性能 |
- |
| 目安光熱費 |
- |
| バス・トイレ |
- |
| 設備・サービス |
上水道、下水道、都市ガス |
| その他 |
- |
| 契約期間 |
2年 |
条件等 |
- |
| 引渡可能時期 |
即時 |
現況 |
更地 |
| 仲介手数料 |
1ヶ月 |
|
|
| 更新料 |
- |
物件番号 |
6982031214 |
| 情報公開日 |
2025年7月17日 |
次回更新予定日 |
2025年12月18日 |
| ケータイ用バーコード |
- スマートフォンでこの物件を見る
- スマートフォンからもこの物件をご覧になれます。
|
※「-」と表示されている項目については、情報提供会社にご確認ください。
| 周辺施設 |
セブンイレブン姫路宇佐崎中2丁目店 |
| 距離 |
683m |
| 周辺施設 |
認定こども園うさざき分園 |
| 距離 |
709m |
ここから簡単にお問い合わせをすることができます。
(SSLでの暗号化での送信を希望されるお客さまは
こちら
よりお問い合わせください)
お問い合わせを行う前に
「個人情報の取り扱いについて」を必ずお読みください。
「個人情報の取り扱いについて」に同意いただいた場合は「上記にご同意の上 確認画面へ進む」のボタンをクリックしてください。
個人情報の取り扱いについて
皆さまが送付された個人情報はアットホーム(株)のサーバを経由し、お問い合わせ先の不動産会社にメールまたはFAXにて転送されるためアットホーム(株)にも保管されます。アットホーム(株)で保管された個人情報の取り扱いについては、【こちら】をご覧ください。
また、本画面でご記入いただいた個人情報は、お問い合わせ先の不動産会社でも保管します。 お問い合わせ先の不動産会社が保管する個人情報の取り扱いについては、不動産会社に直接お問い合わせください。
兵庫県知事免許(5)第451079号 |
|---|
- 交通:
- 山陽電鉄本線/白浜の宮駅 徒歩18分
- 兵庫県姫路市東山28-7
- TEL:
- 079-229-9229
- FAX:
- 079-229-9228
- 所属団体:
- (公社)全日本不動産協会会員(公社)近畿地区不動産公正取引協議会加盟
取引態様:仲介  - 50022007
|
- スマートフォンで
この不動産会社を見る

|
- 提携サイト等より掲載されている物件情報につきましては、不動産会社詳細情報にリンクされていないものがあります。
- 物件に関するお問合せは、物件詳細ページの「情報提供会社」に表示されている不動産会社へ直接お願いいたします。
- 間取図は、現況を優先させていただきます。
- 映像は物件の一部を撮影したものです。物件の契約にあたっての最終判断はご自身の判断に基づいて行ってください。
- 仲介手数料について

アットホームは物件情報の適正化に努めております。
内容に誤りがある場合にはこちらへご連絡ください。