埼玉県さいたま市見沼区大字大谷(大和田駅)の貸土地:物件詳細
交通 所在地 |
駅徒歩 |
賃料 坪単価 |
敷金/保証金 礼金 |
土地面積(坪数) 最適用途 |
建ぺい率 容積率 |
|
東武野田線/大和田
埼玉県さいたま市見沼区大字大谷
|
28分
|
5.9万円
0.26万円
|
2ヶ月 / なし
1ヶ月
|
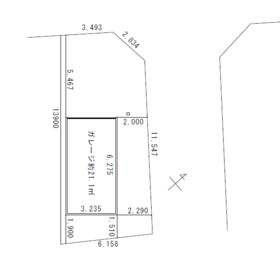
77.00m²
(23.29坪)
倉庫用地
|
50%
100%
|
|
地形図等
|
外観
|
その他の画像
|
| 交通 | 東武野田線 大和田駅 徒歩28分 |
| 所在地 |
埼玉県さいたま市見沼区大字大谷
|
| 物件種目 |
貸地 |
| 賃料 |
5.9万円 |
管理費等 |
3,000円 |
| 敷金 / 保証金 |
2ヶ月 / なし |
礼金 |
1ヶ月 |
| 坪単価 |
0.26万円 |
敷引 |
- |
| 保証金償却 |
- |
権利金 |
- |
| 維持費等 |
- |
その他一時金 |
- |
| 保険等 |
- |
|
|
| 土地面積 |
77.00m²(公簿) |
坪数 |
23.29坪 |
| 私道負担面積 |
- |
都市計画 |
市街化区域 |
| 用途地域 |
1種低層 |
最適用途 |
倉庫用地 |
| 建ぺい率 |
50% |
容積率 |
100% |
| 地勢 |
- |
接道状況 |
-
|
| 地目 |
雑種地 |
セットバック |
- |
| 特記事項 |
- |
| 備考 |
管理形態/管理員の勤務形態:-/-
|
| エネルギー消費性能 |
- |
| 断熱性能 |
- |
| 目安光熱費 |
- |
| バス・トイレ |
- |
| 設備・サービス |
電気 |
| その他 |
- |
| 契約期間 |
2年 |
条件等 |
- |
| 引渡可能時期 |
2026年6月上旬予定 |
現況 |
建物有 |
| 仲介手数料 |
1ヶ月 |
|
|
| 更新料 |
新賃料 1ヶ月 |
物件番号 |
6985586850 |
| 情報公開日 |
2026年5月12日 |
次回更新予定日 |
2026年5月30日 |
| ケータイ用バーコード |
- スマートフォンでこの物件を見る
- スマートフォンからもこの物件をご覧になれます。
|
※「-」と表示されている項目については、情報提供会社にご確認ください。
| 周辺施設 |
オリーブの丘さいたま蓮沼店 |
| 距離 |
1552m |
| 周辺施設 |
さいたま市立大谷中学校 |
| 距離 |
1199m |
| 周辺施設 |
さいたま市立海老沼小学校 |
| 距離 |
1709m |
ここから簡単にお問い合わせをすることができます。
(SSLでの暗号化での送信を希望されるお客さまは
こちら
よりお問い合わせください)
お問い合わせを行う前に
「個人情報の取り扱いについて」を必ずお読みください。
「個人情報の取り扱いについて」に同意いただいた場合は「上記にご同意の上 確認画面へ進む」のボタンをクリックしてください。
個人情報の取り扱いについて
皆さまが送付された個人情報はアットホーム(株)のサーバを経由し、お問い合わせ先の不動産会社にメールまたはFAXにて転送されるためアットホーム(株)にも保管されます。アットホーム(株)で保管された個人情報の取り扱いについては、【こちら】をご覧ください。
また、本画面でご記入いただいた個人情報は、お問い合わせ先の不動産会社でも保管します。 お問い合わせ先の不動産会社が保管する個人情報の取り扱いについては、不動産会社に直接お問い合わせください。
国土交通大臣免許(3)第8747号 |
|---|
- 交通:
- JR京浜東北線/大宮駅 徒歩7分
- 埼玉県さいたま市大宮区桜木町2丁目328-1 フォルトゥーナ桜木101
- TEL:
- 048-650-1777
- FAX:
- 048-650-1788
- 所属団体:
- (公社)東京都宅地建物取引業協会会員(公社)首都圏不動産公正取引協議会加盟
取引態様:仲介  - 00162073
|
- スマートフォンで
この不動産会社を見る

|
- 提携サイト等より掲載されている物件情報につきましては、不動産会社詳細情報にリンクされていないものがあります。
- 物件に関するお問合せは、物件詳細ページの「情報提供会社」に表示されている不動産会社へ直接お願いいたします。
- 間取図は、現況を優先させていただきます。
- 映像は物件の一部を撮影したものです。物件の契約にあたっての最終判断はご自身の判断に基づいて行ってください。
- 仲介手数料について

アットホームは物件情報の適正化に努めております。
内容に誤りがある場合にはこちらへご連絡ください。