大阪府松原市田井城4丁目(高見ノ里駅)の貸土地:物件詳細
交通 所在地 |
駅徒歩 |
賃料 坪単価 |
敷金/保証金 礼金 |
土地面積(坪数) 最適用途 |
建ぺい率 容積率 |
|
近鉄南大阪線/高見ノ里
大阪府松原市田井城4丁目
|
7分
|
4.5万円
0.23万円
|
なし / なし
2ヶ月
|
66.00m²
(19.96坪)
資材置場用地
|
60%
200%
|
|
地形図等
|
外観
|
その他の画像
|
| 交通 | 近鉄南大阪線 高見ノ里駅 徒歩7分 |
|---|
| その他の交通 | 近鉄南大阪線 布忍駅 徒歩7分 |
| 所在地 |
大阪府松原市田井城4丁目
|
| 物件種目 |
貸地 |
| 賃料 |
4.5万円 |
管理費等 |
5,000円 |
| 敷金 / 保証金 |
なし / なし |
礼金 |
2ヶ月 |
| 坪単価 |
0.23万円 |
敷引 |
- |
| 保証金償却 |
- |
権利金 |
- |
| 維持費等 |
- |
その他一時金 |
- |
| 保険等 |
- |
|
|
| 土地面積 |
66.00m²(実測) |
坪数 |
19.96坪 |
| 私道負担面積 |
- |
都市計画 |
市街化区域 |
| 用途地域 |
2種住居 |
最適用途 |
資材置場用地 |
| 建ぺい率 |
60% |
容積率 |
200% |
| 地勢 |
- |
接道状況 |
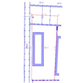
北 4.0m 私道 位置指定有 接面5.7m
|
| 地目 |
宅地 |
セットバック |
済 |
| アピールポイント |
駐車場用地・資材置場にご利用できます。また、コンテナ等を置いていただいても大丈夫です。貸主負担で砂利を引いたりは、相談応じます。 |
| 特記事項 |
- |
| 備考 |
管理形態/管理員の勤務形態:-/-
|
| エネルギー消費性能 |
- |
| 断熱性能 |
- |
| 目安光熱費 |
- |
| バス・トイレ |
- |
| 設備・サービス |
上水道、下水道、都市ガス、電気 |
| その他 |
- |
| 契約期間 |
2年 |
条件等 |
- |
| 引渡可能時期 |
相談 |
現況 |
更地 |
| 仲介手数料 |
1ヶ月 |
|
|
| 更新料 |
なし |
物件番号 |
6986653777 |
| 情報公開日 |
2025年6月12日 |
次回更新予定日 |
2025年12月31日 |
| ケータイ用バーコード |
- スマートフォンでこの物件を見る
- スマートフォンからもこの物件をご覧になれます。
|
※「-」と表示されている項目については、情報提供会社にご確認ください。
ここから簡単にお問い合わせをすることができます。
(SSLでの暗号化での送信を希望されるお客さまは
こちら
よりお問い合わせください)
お問い合わせを行う前に
「個人情報の取り扱いについて」を必ずお読みください。
「個人情報の取り扱いについて」に同意いただいた場合は「上記にご同意の上 確認画面へ進む」のボタンをクリックしてください。
個人情報の取り扱いについて
皆さまが送付された個人情報はアットホーム(株)のサーバを経由し、お問い合わせ先の不動産会社にメールまたはFAXにて転送されるためアットホーム(株)にも保管されます。アットホーム(株)で保管された個人情報の取り扱いについては、【こちら】をご覧ください。
また、本画面でご記入いただいた個人情報は、お問い合わせ先の不動産会社でも保管します。 お問い合わせ先の不動産会社が保管する個人情報の取り扱いについては、不動産会社に直接お問い合わせください。
大阪府知事免許(1)第62344号 |
|---|
- 交通:
- 阪急京都線/高槻市駅 徒歩30分 【バス】1分 須賀町 停歩12分
- 大阪府高槻市須賀町33-1
- TEL:
- 072-668-5767
- FAX:
- 072-668-5768
- 所属団体:
- (一社)大阪府宅地建物取引業協会会員(公社)近畿地区不動産公正取引協議会加盟
取引態様:仲介  - 50105585
|
- スマートフォンで
この不動産会社を見る

|
- 提携サイト等より掲載されている物件情報につきましては、不動産会社詳細情報にリンクされていないものがあります。
- 物件に関するお問合せは、物件詳細ページの「情報提供会社」に表示されている不動産会社へ直接お願いいたします。
- 間取図は、現況を優先させていただきます。
- 映像は物件の一部を撮影したものです。物件の契約にあたっての最終判断はご自身の判断に基づいて行ってください。
- 仲介手数料について

アットホームは物件情報の適正化に努めております。
内容に誤りがある場合にはこちらへご連絡ください。