神奈川県厚木市酒井(愛甲石田駅)の貸土地:物件詳細
交通 所在地 |
駅徒歩 |
賃料 坪単価 |
敷金/保証金 礼金 |
土地面積(坪数) 最適用途 |
建ぺい率 容積率 |
|
小田急小田原線/愛甲石田
神奈川県厚木市酒井
|
18分
|
33.5万円
0.17万円
|
3ヶ月 / なし
1ヶ月
|
675.00m²
(204.18坪)
駐車場用地
|
60%
200%
|
|
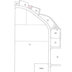
地形図等
2方向に接道あり
|
|
その他の画像
|
| 交通 | 小田急小田原線 愛甲石田駅 徒歩18分 |
| 所在地 |
神奈川県厚木市酒井
|
| 物件種目 |
貸地 |
| 賃料 |
33.5万円 |
管理費等 |
なし |
| 敷金 / 保証金 |
3ヶ月 / なし |
礼金 |
1ヶ月 |
| 坪単価 |
0.17万円 |
敷引 |
- |
| 保証金償却 |
- |
権利金 |
- |
| 維持費等 |
- |
その他一時金 |
なし |
| 保険等 |
- |
|
|
| 土地面積 |
675.00m²(実測) |
坪数 |
204.18坪 |
| 私道負担面積 |
なし |
都市計画 |
市街化区域 |
| 用途地域 |
工業地域 |
最適用途 |
駐車場用地 |
| 建ぺい率 |
60% |
容積率 |
200% |
| 地勢 |
- |
接道状況 |
南 16.0m 公道 接面24.0m
・
東 5.0m 公道 接面23.0m
・
二方道路
|
| 地目 |
畑 |
セットバック |
- |
| アピールポイント |
工業地域にある貸地です 駐車場用地としてご利用ください。 |
| 特記事項 |
区画整理地内 |
| 備考 |
管理形態/管理員の勤務形態:-/-
法令等制限:2026年3月換地処分
酒井土地区画整地内の貸地になります。用途が決まってから76条申請が必要になる為、現況引渡しとなります。諸条件応相談。
|
| エネルギー消費性能 |
- |
| 断熱性能 |
- |
| 目安光熱費 |
- |
| バス・トイレ |
- |
| 設備・サービス |
上水道、下水道、電気 |
| その他 |
- |
| 契約期間 |
3年 |
条件等 |
- |
| 引渡可能時期 |
相談 |
現況 |
更地 |
| 更新料 |
新賃料 1ヶ月 |
物件番号 |
6987013260 |
| 情報公開日 |
2025年8月21日 |
次回更新予定日 |
2025年10月31日 |
| ケータイ用バーコード |
- スマートフォンでこの物件を見る
- スマートフォンからもこの物件をご覧になれます。
|
※「-」と表示されている項目については、情報提供会社にご確認ください。
| 周辺施設 |
ヨークマート厚木インター店 |
| 距離 |
1198m |
| 周辺施設 |
ローソン厚木西インター店 |
| 距離 |
666m |
| 周辺施設 |
エネオス東名厚木インターSS |
| 距離 |
642m |
ここから簡単にお問い合わせをすることができます。
(SSLでの暗号化での送信を希望されるお客さまは
こちら
よりお問い合わせください)
お問い合わせを行う前に
「個人情報の取り扱いについて」を必ずお読みください。
「個人情報の取り扱いについて」に同意いただいた場合は「上記にご同意の上 確認画面へ進む」のボタンをクリックしてください。
個人情報の取り扱いについて
皆さまが送付された個人情報はアットホーム(株)のサーバを経由し、お問い合わせ先の不動産会社にメールまたはFAXにて転送されるためアットホーム(株)にも保管されます。アットホーム(株)で保管された個人情報の取り扱いについては、【こちら】をご覧ください。
また、本画面でご記入いただいた個人情報は、お問い合わせ先の不動産会社でも保管します。 お問い合わせ先の不動産会社が保管する個人情報の取り扱いについては、不動産会社に直接お問い合わせください。
神奈川県知事免許(7)第21436号 |
|---|
- 交通:
- 小田急小田原線/伊勢原駅 徒歩15分
- 神奈川県伊勢原市田中84-1
- TEL:
- 0463-91-0003
- FAX:
- 0463-92-1677
- 所属団体:
- (公社)神奈川県宅地建物取引業協会会員(公社)首都圏不動産公正取引協議会加盟
取引態様:仲介  - 00241186
|
- スマートフォンで
この不動産会社を見る

|
- 提携サイト等より掲載されている物件情報につきましては、不動産会社詳細情報にリンクされていないものがあります。
- 物件に関するお問合せは、物件詳細ページの「情報提供会社」に表示されている不動産会社へ直接お願いいたします。
- 間取図は、現況を優先させていただきます。
- 映像は物件の一部を撮影したものです。物件の契約にあたっての最終判断はご自身の判断に基づいて行ってください。
- 仲介手数料について

アットホームは物件情報の適正化に努めております。
内容に誤りがある場合にはこちらへご連絡ください。