不動産 賃貸 マンション等の住宅情報:埼玉住まい情報


埼玉県八潮市大字浮塚(六町駅)の貸土地:物件詳細

  • 物件詳細
  • 情報の見方
  • 印刷用画面
交通
所在地
駅徒歩 賃料
坪単価
敷金/保証金
礼金
土地面積(坪数)
最適用途
建ぺい率
容積率

つくばエクスプレス/六町 新着

埼玉県八潮市大字浮塚

28分

66.36万円

0.14万円

なし / 4ヶ月

1ヶ月

1,568.00m² (474.31坪)

駐車場用地

60%

200%

おすすめコメント

東京に近い好立地の土地です。広さも十分で大型車など相談可能。資材置場などの用途などお気軽にご相談ください。キレイに整地した砂利となっております。

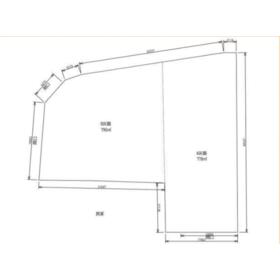
地形図等

地形図等

その他の画像
    • とりあえず保存
    • お問い合わせ
    交通

    つくばエクスプレス 六町駅 徒歩28分

    その他の交通

    つくばエクスプレス 八潮駅 徒歩26分

    所在地 埼玉県八潮市大字浮塚
    物件種目 貸地
    賃料 66.36万円 管理費等
    敷金 / 保証金 なし / 4ヶ月 礼金 1ヶ月
    坪単価 0.14万円 敷引
    保証金償却 解約時1ヶ月 権利金
    維持費等 その他一時金
    保険等    
    クレジットカード決済 初期費用可
    土地面積 1,568.00m²(公簿) 坪数 474.31坪
    私道負担面積 都市計画 市街化区域
    用途地域 1種住居 最適用途 駐車場用地
    建ぺい率 60% 容積率 200%
    地勢 接道状況
    地目 セットバック
    アピールポイント 東京まですぐの大型土地です。資材置場にも◎駐車場は大きな車も相談可能です。
    分割などもお気軽にご相談ください。
    特記事項
    備考
    管理形態/管理員の勤務形態:-/-
    ※現状有姿の引渡しとなります。
    ※分割など相談ください。
    エネルギー消費性能
    断熱性能
    目安光熱費
    バス・トイレ
    設備・サービス
    その他
    契約期間 2年 条件等
    引渡可能時期 即時 現況 更地
    更新料 新賃料 1ヶ月 物件番号 6988016590
    情報公開日 2025年10月14日 次回更新予定日 2025年10月28日
    ケータイ用バーコード

    QRコード

    スマートフォンでこの物件を見る
    スマートフォンからもこの物件をご覧になれます。
    ※「-」と表示されている項目については、情報提供会社にご確認ください。

    この物件の周辺情報

    周辺施設 セブンイレブン足立神明1丁目店
    距離 1157m
    周辺施設 神明町保育園
    距離 790m
    周辺施設 Seria足立神明店
    距離 1017m
    周辺施設 ビバホーム足立神明店
    距離 1049m
    周辺施設 ベルクス足立神明店
    距離 1017m
    周辺施設 モーターサイクルショップヨコタ
    距離 1361m
    周辺施設 セブンイレブン八潮大曽根南店
    距離 687m
    周辺施設 ミニストップ辰沼店
    距離 1305m

    クイックお問い合わせ

    ここから簡単にお問い合わせをすることができます。
    (SSLでの暗号化での送信を希望されるお客さまは こちら よりお問い合わせください)

    お問い合わせ内容(必須)
    お名前・ご担当者様名(必須) 姓  名 
    メールアドレス(必須)
    ※携帯電話のメールアドレスをご入力される方はこちらをご確認ください
    電話番号(必須)
    - -

    ※入力いただいた電話番号へSMSまたは音声でパスワードをご連絡します。

    携帯電話の番号をご入力の方へ

    携帯電話の番号をご入力の方へ
    確認画面にて送信ボタンをクリックするとSMSが携帯電話に届きます。
    そのSMSに記載のパスワード(認証番号)を入力し、お問い合わせを完了してください。
    尚、SMSの送信者番号は 0005 202 760 となります。
    これはアットホームの固定番号です。

    備考欄 希望条件、物件案内希望日、質問などがございましたらご記入ください。
    お問い合わせを行う前に「個人情報の取り扱いについて」を必ずお読みください。
    「個人情報の取り扱いについて」に同意いただいた場合は「上記にご同意の上 確認画面へ進む」のボタンをクリックしてください。

    個人情報の取り扱いについて

    皆さまが送付された個人情報はアットホーム(株)のサーバを経由し、お問い合わせ先の不動産会社にメールまたはFAXにて転送されるためアットホーム(株)にも保管されます。アットホーム(株)で保管された個人情報の取り扱いについては、【こちら】をご覧ください。
    また、本画面でご記入いただいた個人情報は、お問い合わせ先の不動産会社でも保管します。 お問い合わせ先の不動産会社が保管する個人情報の取り扱いについては、不動産会社に直接お問い合わせください。

    情報提供会社

    情報提供会社

    (株)パグーロ

    東京都知事免許(2)第103663号

    交通:
    JR京葉線/葛西臨海公園駅 徒歩15分 【バス】5分 堀江団地 停歩6分
    東京都江戸川区南葛西5丁目4-7 
    TEL:
    03-6808-3977
    所属団体:
    (公社)東京都宅地建物取引業協会会員
    (公社)首都圏不動産公正取引協議会加盟

    取引態様:仲介

    • 会社情報
    • 00266784
    スマートフォンで
    この不動産会社を見る
    QRコード
    • とりあえず保存
    • お問い合わせ
    • 提携サイト等より掲載されている物件情報につきましては、不動産会社詳細情報にリンクされていないものがあります。
    • 物件に関するお問合せは、物件詳細ページの「情報提供会社」に表示されている不動産会社へ直接お願いいたします。
    • 間取図は、現況を優先させていただきます。
    • 映像は物件の一部を撮影したものです。物件の契約にあたっての最終判断はご自身の判断に基づいて行ってください。
    • 仲介手数料について仲介手数料

    アットホームは物件情報の適正化に努めております。 内容に誤りがある場合にはこちらへご連絡ください。

    【埼玉住まい情報】では、日本全国の物件から賃貸マンションや賃貸アパート・賃貸一戸建て等の賃貸住宅情報、新築マンション・分譲マンションや中古マンション等の売買マンション情報、新築一戸建てや中古一戸建てなどの戸建住宅、 土地など、総合的な不動産住宅情報検索サービスを提供致します。
    【埼玉住まい情報】から、選りすぐりの不動産物件を探してみましょう。

    【免責事項】
    このコーナーの運営はアットホーム株式会社(https://www.athome.co.jp/)が行っています。
    このコーナーに掲載している物件情報は、「アットホーム不動産情報ネットワーク」に加盟する不動産会社等(情報提供元)から提供されています。信頼性の高い情報提供が行えるよう、最大限の努力をしておりますが、その内容を保証するものではありません。 利用者のみなさまと各情報提供元との取引に起因する損害および情報が掲載されたことに起因する損害等については、株式会社イーシティ埼玉、およびアットホームは一切責任を負いません。
    各物件情報の内容や画像等はすべて現況を優先させていただきます。
    お取引等(お取引の準備、資金調達等を含みます)の際には、内容や契約条件等について、各情報提供元より十分な説明を受け、ご自身でご確認の上、判断してください。
    このコーナーへの物件情報のご掲載、その他不動産業務ソリューション等についての不動産会社様のお問合せはこちらからお願いいたします。

    物件画像: