大阪府東大阪市長田2丁目(長田駅)の貸その他:物件詳細
交通 所在地 |
駅徒歩 |
賃料 管理費等 |
敷金/保証金 礼金 |
使用部分面積 坪数/坪単価 |
物件種目 築年月 |
|
地下鉄中央線/長田
大阪府東大阪市長田2丁目
|
6分
|
159.5万円
なし
|
なし / 1,160万円
なし
|
737.39m²
223.05坪/0.7151万円
|
貸ビル
1985年9月(築40年4ヶ月)
|
|
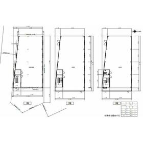
間取図
|
外観
|
その他の画像
|
| 交通 | 地下鉄中央線 長田駅 徒歩6分 |
|---|
| その他の交通 | 近鉄けいはんな線 荒本駅 徒歩19分 近鉄奈良線 八戸ノ里駅 徒歩22分 |
| 所在地 |
大阪府東大阪市長田2丁目
|
| 物件種目 |
貸ビル |
| 賃料 |
159.5万円 |
管理費等 |
なし |
| 敷金 / 保証金 |
なし / 1,160万円 |
礼金 |
なし |
| 敷引 |
- |
坪単価 |
0.7151万円 |
| 保証金償却 |
解約時319万円 |
権利金 |
- |
| 造作譲渡 |
- |
その他一時金 |
貸主指定家賃保証料:1,595,000円 |
| 保険等 |
- |
|
|
| 使用部分面積 |
737.39m² |
坪数 |
223.05坪 |
| 築年月 |
1985年9月(築40年4ヶ月)
|
階建 / 階 |
3階建 / 1階 |
| 駐車場 |
有 無料 |
バイク置き場 |
- |
| 駐輪場 |
- |
土地面積 |
- |
| 接道状況 |
-
|
用途地域 |
1種住居 |
| 間取り |
- |
建物構造 |
鉄骨造 |
| 建物名・部屋番号 |
3階建 |
| リフォーム履歴 |
- |
| リノベーション履歴 |
- |
| 特記事項 |
- |
| 備考 |
賃貸保証等:加入要(貸主指定家賃保証会社)
管理形態/管理員の勤務形態:-/-
3階建貸ビル(倉庫・事務所) 1階約71.18坪・2階約75.93坪・3階75.93坪 ◇駐車スペース有り(前面空地) ◇第一種住居地域
坪単価約7150円、道路:東側:約6m 南側:約6m、上水道、下水道、トイレ専用、現状渡し。
|
| エネルギー消費性能 |
- |
| 断熱性能 |
- |
| 目安光熱費 |
- |
| バス・トイレ |
トイレ |
| キッチン |
- |
| 設備・サービス |
- |
| その他 |
- |
| 契約期間 |
2年 |
条件等 |
- |
| 引渡可能時期 |
即時 |
現況 |
空 |
| 更新料 |
- |
物件番号 |
1085166598 |
| 情報公開日 |
2025年4月22日 |
次回更新予定日 |
2025年12月15日 |
| ケータイ用バーコード |
- スマートフォンでこの物件を見る
- スマートフォンからもこの物件をご覧になれます。
|
※「-」と表示されている項目については、情報提供会社にご確認ください。
ここから簡単にお問い合わせをすることができます。
(SSLでの暗号化での送信を希望されるお客さまは
こちら
よりお問い合わせください)
お問い合わせを行う前に
「個人情報の取り扱いについて」を必ずお読みください。
「個人情報の取り扱いについて」に同意いただいた場合は「上記にご同意の上 確認画面へ進む」のボタンをクリックしてください。
個人情報の取り扱いについて
皆さまが送付された個人情報はアットホーム(株)のサーバを経由し、お問い合わせ先の不動産会社にメールまたはFAXにて転送されるためアットホーム(株)にも保管されます。アットホーム(株)で保管された個人情報の取り扱いについては、【こちら】をご覧ください。
また、本画面でご記入いただいた個人情報は、お問い合わせ先の不動産会社でも保管します。 お問い合わせ先の不動産会社が保管する個人情報の取り扱いについては、不動産会社に直接お問い合わせください。
国土交通大臣免許(1)第10705号 |
|---|
- 交通:
- 地下鉄谷町線/天満橋駅 徒歩8分
- 大阪府大阪市北区天満2丁目8-17 天満橋パークビル601号
- TEL:
- 06-6356-4555
- FAX:
- 06-6356-4666
- 所属団体:
- (公社)全日本不動産協会会員(公社)近畿地区不動産公正取引協議会加盟
取引態様:仲介  - 50101180
|
- スマートフォンで
この不動産会社を見る

|
- 提携サイト等より掲載されている物件情報につきましては、不動産会社詳細情報にリンクされていないものがあります。
- 物件に関するお問合せは、物件詳細ページの「情報提供会社」に表示されている不動産会社へ直接お願いいたします。
- 間取図は、現況を優先させていただきます。
- 映像は物件の一部を撮影したものです。物件の契約にあたっての最終判断はご自身の判断に基づいて行ってください。
- 仲介手数料について

アットホームは物件情報の適正化に努めております。
内容に誤りがある場合にはこちらへご連絡ください。