大阪府堺市美原区南余部(萩原天神駅)の貸その他:物件詳細
交通 所在地 |
駅徒歩 |
賃料 管理費等 |
敷金/保証金 礼金 |
使用部分面積 坪数/坪単価 |
物件種目 築年月 |
南海高野線/萩原天神
大阪府堺市美原区南余部
|
18分
|
36.85万円
なし
|
6ヶ月 / なし
なし
|
165.42m²
50.03坪/0.7365万円
|
貸倉庫
2025年1月(新築)
|
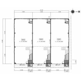
間取図
|
外観
|
<
その他の画像
>
|
交通 | 南海高野線 萩原天神駅 徒歩18分 |
---|
その他の交通 | 南海高野線 北野田駅 徒歩19分 南海高野線 初芝駅 徒歩28分 |
所在地 |
大阪府堺市美原区南余部
|
物件種目 |
貸倉庫 |
賃料 |
36.85万円 |
管理費等 |
なし |
敷金 / 保証金 |
6ヶ月 / なし |
礼金 |
なし |
敷引 |
2ヶ月 |
坪単価 |
0.7365万円 |
保証金償却 |
- |
権利金 |
- |
造作譲渡 |
- |
その他一時金 |
なし |
保険等 |
- |
|
|
使用部分面積 |
165.42m² |
坪数 |
50.03坪 |
築年月 |
2025年1月(新築)
|
階建 / 階 |
2階建 / 1階~2階部分 |
駐車場 |
有 無料 |
バイク置き場 |
- |
駐輪場 |
- |
土地面積 |
- |
接道状況 |
-
|
用途地域 |
近隣商業 |
間取り |
- |
建物構造 |
鉄骨造 |
アピールポイント |
弊社クラストホームは事業用物件専門の不動産会社です。
主に藤井寺市・羽曳野市を中心に、南大阪・奈良県全域の物件を取り扱っております。
事務所・店舗・倉庫・貸土地をお探しの際は、弊社までお気軽にお問い合わせ下さいませ。
●内見の際には、お客様のご都合にあわせて物件現地でお待ち合わせ可能ですので、ご来店いただく必要はありません。
※お問合せいただいた物件以外にも、候補に挙がっている物件もあわせて内見できます。
●契約後のリフォームについて、無料で見積を行っておりますので施工会社がまだ決まっていない場合は是非お声掛けくださいませ。
●地域に根ざした情報力で、物件探しをサポートいたします。
***********
ポータルサイトに
掲載していない物件も
弊社HPに多数掲載中!
*********** |
建物名・部屋番号 |
新築 美原区南余部事務所・倉庫 |
リフォーム履歴 |
- |
リノベーション履歴 |
- |
特記事項 |
土曜日利用可、土日・祝日利用可、最上階 |
備考 |
賃貸保証等:加入要(お問い合わせください。)
管理形態/管理員の勤務形態:-/-
●1階:倉庫部分35.01坪
電動シャッターあり・トイレあり
●2階:事務所部分15.02坪
ミニキッチン・トイレ・インターホン
|
エネルギー消費性能 |
- |
断熱性能 |
- |
目安光熱費 |
- |
バス・トイレ |
トイレ2ヶ所、トイレ |
キッチン |
- |
設備・サービス |
- |
その他 |
- |
契約期間 |
3年 |
条件等 |
- |
引渡可能時期 |
相談 |
現況 |
空 |
更新料 |
- |
物件番号 |
1171341307 |
情報公開日 |
2025年10月15日 |
次回更新予定日 |
2025年10月29日 |
ケータイ用バーコード |
- スマートフォンでこの物件を見る
- スマートフォンからもこの物件をご覧になれます。
|
※「-」と表示されている項目については、情報提供会社にご確認ください。
周辺施設 |
スーパーマーケット コノミヤ 美原店 |
距離 |
385m |
写真を見る |
周辺施設 |
SUPERMARKET Sunplaza(スーパーマーケットサンプラザ) 美原余部店 |
距離 |
459m |
写真を見る |
周辺施設 |
万代 美原店 |
距離 |
1308m |
写真を見る |
周辺施設 |
セブンイレブン 堺日置荘原寺町店 |
距離 |
730m |
写真を見る |
周辺施設 |
ローソン 美原北余部店 |
距離 |
830m |
写真を見る |
周辺施設 |
セブンイレブン 堺日置荘北町店 |
距離 |
1292m |
写真を見る |
周辺施設 |
スギ薬局 堺美原店 |
距離 |
420m |
写真を見る |
周辺施設 |
関西みらい銀行 美原支店(旧近畿大阪銀行店舗) |
距離 |
460m |
写真を見る |
ここから簡単にお問い合わせをすることができます。
(SSLでの暗号化での送信を希望されるお客さまは
こちら
よりお問い合わせください)
お問い合わせを行う前に
「個人情報の取り扱いについて」を必ずお読みください。
「個人情報の取り扱いについて」に同意いただいた場合は「上記にご同意の上 確認画面へ進む」のボタンをクリックしてください。
個人情報の取り扱いについて
皆さまが送付された個人情報はアットホーム(株)のサーバを経由し、お問い合わせ先の不動産会社にメールまたはFAXにて転送されるためアットホーム(株)にも保管されます。アットホーム(株)で保管された個人情報の取り扱いについては、【こちら】をご覧ください。
また、本画面でご記入いただいた個人情報は、お問い合わせ先の不動産会社でも保管します。 お問い合わせ先の不動産会社が保管する個人情報の取り扱いについては、不動産会社に直接お問い合わせください。
大阪府知事免許(2)第60148号 |
---|
- 交通:
- 近鉄南大阪線/藤井寺駅 徒歩16分 【バス】2分 東藤井寺町 停歩9分
- 大阪府藤井寺市古室3丁目2-13
- TEL:
- 072-931-3060
- FAX:
- 072-931-3061
- 所属団体:
- (一社)大阪府宅地建物取引業協会会員(公社)近畿地区不動産公正取引協議会加盟
取引態様:仲介  - 50105869
|
- スマートフォンで
この不動産会社を見る

|
- 提携サイト等より掲載されている物件情報につきましては、不動産会社詳細情報にリンクされていないものがあります。
- 物件に関するお問合せは、物件詳細ページの「情報提供会社」に表示されている不動産会社へ直接お願いいたします。
- 間取図は、現況を優先させていただきます。
- 映像は物件の一部を撮影したものです。物件の契約にあたっての最終判断はご自身の判断に基づいて行ってください。
- 仲介手数料について

アットホームは物件情報の適正化に努めております。
内容に誤りがある場合にはこちらへご連絡ください。