大阪府東大阪市荒本新町(荒本駅)の貸その他:物件詳細
交通 所在地 |
駅徒歩 |
賃料 管理費等 |
敷金/保証金 礼金 |
使用部分面積 坪数/坪単価 |
物件種目 築年月 |
近鉄けいはんな線/荒本
大阪府東大阪市荒本新町
|
4分
|
55万円
なし
|
なし / 150万円
55万円
|
330.20m²
99.88坪/0.5507万円
|
貸倉庫
2006年11月(築19年)
|
間取図
|
外観
|
<
その他の画像
>
|
交通 | 近鉄けいはんな線 荒本駅 徒歩4分 |
---|
その他の交通 | 地下鉄中央線 長田駅 徒歩18分 近鉄奈良線 若江岩田駅 徒歩22分 |
所在地 |
大阪府東大阪市荒本新町
|
物件種目 |
貸倉庫 |
賃料 |
55万円 |
管理費等 |
なし |
敷金 / 保証金 |
なし / 150万円 |
礼金 |
55万円 |
敷引 |
- |
坪単価 |
0.5507万円 |
保証金償却 |
- |
権利金 |
- |
造作譲渡 |
- |
その他一時金 |
貸主指定家賃保証料:550,000円 |
保険等 |
- |
|
|
使用部分面積 |
330.20m² |
坪数 |
99.88坪 |
築年月 |
2006年11月(築19年)
|
階建 / 階 |
2階建 / 1階~2階部分 |
駐車場 |
有 無料 |
バイク置き場 |
- |
駐輪場 |
- |
土地面積 |
338.88m² |
接道状況 |
-
|
用途地域 |
商業地域 |
間取り |
- |
建物構造 |
鉄骨造 |
建物名・部屋番号 |
2階建 |
リフォーム履歴 |
- |
リノベーション履歴 |
- |
特記事項 |
- |
備考 |
賃貸保証等:加入要(貸主指定家賃保証会社)
管理形態/管理員の勤務形態:-/-
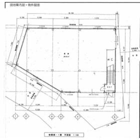
2階建貸倉庫事務所 延べ約99.88坪 ◇駐車スペース有り
坪単価約5506円、1F 230.60㎡ 2F 99.60㎡、駐車スペース有り、検査済証無し、1階高さ5m 2階高さ2.6m、接道状況:角地 東側公道 幅員6m 南側公道 幅員6m、現状渡し。
|
エネルギー消費性能 |
- |
断熱性能 |
- |
目安光熱費 |
- |
バス・トイレ |
トイレ |
キッチン |
- |
設備・サービス |
- |
その他 |
- |
契約期間 |
2年 |
条件等 |
- |
引渡可能時期 |
即時 |
現況 |
空 |
更新料 |
- |
物件番号 |
1171371107 |
情報公開日 |
2025年10月18日 |
次回更新予定日 |
2025年11月3日 |
ケータイ用バーコード |
- スマートフォンでこの物件を見る
- スマートフォンからもこの物件をご覧になれます。
|
※「-」と表示されている項目については、情報提供会社にご確認ください。
ここから簡単にお問い合わせをすることができます。
(SSLでの暗号化での送信を希望されるお客さまは
こちら
よりお問い合わせください)
お問い合わせを行う前に
「個人情報の取り扱いについて」を必ずお読みください。
「個人情報の取り扱いについて」に同意いただいた場合は「上記にご同意の上 確認画面へ進む」のボタンをクリックしてください。
個人情報の取り扱いについて
皆さまが送付された個人情報はアットホーム(株)のサーバを経由し、お問い合わせ先の不動産会社にメールまたはFAXにて転送されるためアットホーム(株)にも保管されます。アットホーム(株)で保管された個人情報の取り扱いについては、【こちら】をご覧ください。
また、本画面でご記入いただいた個人情報は、お問い合わせ先の不動産会社でも保管します。 お問い合わせ先の不動産会社が保管する個人情報の取り扱いについては、不動産会社に直接お問い合わせください。
国土交通大臣免許(1)第10705号 |
---|
- 交通:
- 地下鉄谷町線/天満橋駅 徒歩8分
- 大阪府大阪市北区天満2丁目8-17 天満橋パークビル601号
- TEL:
- 06-6356-4555
- FAX:
- 06-6356-4666
- 所属団体:
- (公社)全日本不動産協会会員(公社)近畿地区不動産公正取引協議会加盟
取引態様:仲介  - 50101180
|
- スマートフォンで
この不動産会社を見る

|
- 提携サイト等より掲載されている物件情報につきましては、不動産会社詳細情報にリンクされていないものがあります。
- 物件に関するお問合せは、物件詳細ページの「情報提供会社」に表示されている不動産会社へ直接お願いいたします。
- 間取図は、現況を優先させていただきます。
- 映像は物件の一部を撮影したものです。物件の契約にあたっての最終判断はご自身の判断に基づいて行ってください。
- 仲介手数料について

アットホームは物件情報の適正化に努めております。
内容に誤りがある場合にはこちらへご連絡ください。