鹿児島県鹿児島市卸本町(慈眼寺駅)の貸その他:物件詳細
交通 所在地 |
駅徒歩 |
賃料 管理費等 |
敷金/保証金 礼金 |
使用部分面積 坪数/坪単価 |
物件種目 築年月 |
|
JR指宿枕崎線/慈眼寺
鹿児島県鹿児島市卸本町
|
27分
|
65.175万円
-
|
3ヶ月 / なし
なし
|
946.00m²
286.16坪/0.2278万円
|
貸倉庫
1974年2月(築51年9ヶ月)
|
|
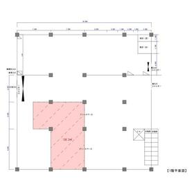
間取図
|
|
<
その他の画像
>
|
| 交通 | JR指宿枕崎線 慈眼寺駅 徒歩27分 |
| 所在地 |
鹿児島県鹿児島市卸本町
|
| 物件種目 |
貸倉庫 |
| 賃料 |
65.175万円 |
管理費等 |
- |
| 敷金 / 保証金 |
3ヶ月 / なし |
礼金 |
なし |
| 敷引 |
- |
坪単価 |
0.2278万円 |
| 保証金償却 |
- |
権利金 |
- |
| 造作譲渡 |
- |
その他一時金 |
- |
| 保険等 |
要 |
|
|
| 使用部分面積 |
946.00m² |
坪数 |
286.16坪 |
| 築年月 |
1974年2月(築51年9ヶ月)
|
階建 / 階 |
2階建 / 1階~2階部分 |
| 駐車場 |
有 5,500円/月(空き1台) |
バイク置き場 |
- |
| 駐輪場 |
- |
土地面積 |
1,541.00m²(公簿) |
| 接道状況 |
東
・
西
・
二方道路
|
用途地域 |
準工業 |
| 間取り |
- |
建物構造 |
RC |
| アピールポイント |
1階部分は2025年8月末まで短期賃貸予定。卸本町団地内、大型貸倉庫のご案内です。使用部分:286坪 建物1階の一部:136㎡(賃料2,750円/坪) 2階ワンフロア:810㎡(賃料2,200円/坪) 計946㎡ 二方道路:裏側 四トン車両出入り可、1階フォークリフト使用可、2階 EV(重量1200㎏まで)にて搬入、荷出し、常温保管。1階部分のみ、2階部分のみ賃借希望の方、ご相談ください。 |
| 建物名・部屋番号 |
|
| リフォーム履歴 |
- |
| リノベーション履歴 |
- |
| 特記事項 |
- |
| 備考 |
賃貸保証等:加入要(初回のみプラン初回委託料:月額賃料の100% 仕様相談)
管理形態/管理員の勤務形態:-/-
賃貸保証等:加入要 保険等:要 駐車場スペース普通車1台:別途5,500円/月、光熱費按分負担予定。
|
| エネルギー消費性能 |
- |
| 断熱性能 |
- |
| 目安光熱費 |
- |
| バス・トイレ |
- |
| キッチン |
- |
| 設備・サービス |
- |
| その他 |
エレベーター |
| 契約期間 |
2年 |
条件等 |
- |
| 引渡可能時期 |
相談 |
現況 |
使用中 |
| 更新料 |
- |
物件番号 |
6981906684 |
| 情報公開日 |
2024年5月7日 |
次回更新予定日 |
2025年10月25日 |
| ケータイ用バーコード |
- スマートフォンでこの物件を見る
- スマートフォンからもこの物件をご覧になれます。
|
※「-」と表示されている項目については、情報提供会社にご確認ください。
| 周辺施設 |
セブンイレブン鹿児島南栄5丁目店 |
| 距離 |
268m |
写真を見る |
| 周辺施設 |
ローソン鹿児島卸本町店 |
| 距離 |
338m |
写真を見る |
| 周辺施設 |
ファミリーマート卸本町店 |
| 距離 |
484m |
写真を見る |
ここから簡単にお問い合わせをすることができます。
(SSLでの暗号化での送信を希望されるお客さまは
こちら
よりお問い合わせください)
お問い合わせを行う前に
「個人情報の取り扱いについて」を必ずお読みください。
「個人情報の取り扱いについて」に同意いただいた場合は「上記にご同意の上 確認画面へ進む」のボタンをクリックしてください。
個人情報の取り扱いについて
皆さまが送付された個人情報はアットホーム(株)のサーバを経由し、お問い合わせ先の不動産会社にメールまたはFAXにて転送されるためアットホーム(株)にも保管されます。アットホーム(株)で保管された個人情報の取り扱いについては、【こちら】をご覧ください。
また、本画面でご記入いただいた個人情報は、お問い合わせ先の不動産会社でも保管します。 お問い合わせ先の不動産会社が保管する個人情報の取り扱いについては、不動産会社に直接お問い合わせください。
鹿児島県知事免許(2)第6305号 |
|---|
- 交通:
- JR指宿枕崎線/谷山駅 徒歩15分
- 鹿児島県鹿児島市清和1丁目1-18
- TEL:
- 099-204-9348
- 所属団体:
- (公社)鹿児島県宅地建物取引業協会会員不動産公正取引協議会加盟
取引態様:仲介  - 80505016
|
- スマートフォンで
この不動産会社を見る

|
- 提携サイト等より掲載されている物件情報につきましては、不動産会社詳細情報にリンクされていないものがあります。
- 物件に関するお問合せは、物件詳細ページの「情報提供会社」に表示されている不動産会社へ直接お願いいたします。
- 間取図は、現況を優先させていただきます。
- 映像は物件の一部を撮影したものです。物件の契約にあたっての最終判断はご自身の判断に基づいて行ってください。
- 仲介手数料について

アットホームは物件情報の適正化に努めております。
内容に誤りがある場合にはこちらへご連絡ください。