不動産 賃貸 マンション等の住宅情報:埼玉住まい情報


福岡県宗像市東郷2丁目(東郷駅)の貸その他:物件詳細

  • 物件詳細
  • 情報の見方
  • 印刷用画面
交通
所在地
駅徒歩 賃料
管理費等
敷金/保証金
礼金
使用部分面積
坪数/坪単価
物件種目
築年月

JR鹿児島本線/東郷

福岡県宗像市東郷2丁目

24分

47.3万円

6ヶ月 / なし

なし

214.50m²

64.88坪/0.729万円

貸倉庫

2025年1月(新築)

おすすめコメント

■新築■即日ご内覧OK■トイレ3箇所あり■1F倉庫2F事務所■駐車場9台~11台付無料■使い勝手が良い貴重な倉庫付き事務所■ご内覧及び諸条件等は【不動産きんぐ:TEL093-631-0877】まで!

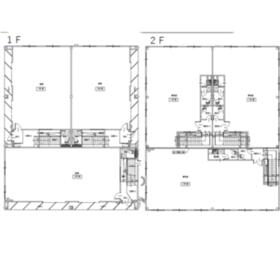
間取図

間取図

<
その他の画像
>
    • とりあえず保存
    • お問い合わせ
    交通

    JR鹿児島本線 東郷駅 徒歩24分

    所在地 福岡県宗像市東郷2丁目
    物件種目 貸倉庫
    賃料 47.3万円 管理費等
    敷金 / 保証金 6ヶ月 / なし 礼金 なし
    敷引 坪単価 0.729万円
    保証金償却 権利金
    造作譲渡 その他一時金
    保険等    
    使用部分面積 214.50m² 坪数 64.88坪
    築年月 2025年1月(新築) 階建 / 階 2階建 / 1階~2階部分
    駐車場 有 無料
    1号室:9台 3号室11台
    バイク置き場
    駐輪場 土地面積
    接道状況 用途地域 1種住居
    間取り 建物構造 鉄骨造
    アピールポイント ■新築
    ■宗像市役所すぐそば
    ■1F倉庫、2F事務所
    ■トイレ3箇所あり
    ■駐車場9台~11台付無料
    ■使い勝手が良い貴重な倉庫付き事務所
    ■詳細のお問合せは
    【不動産きんぐ:TEL093-631-0877】まで!
    建物名・部屋番号  
    リフォーム履歴
    リノベーション履歴
    特記事項 24時間利用可、土曜日利用可、土日・祝日利用可、OAフロア、駐車場2台分、駐車場3台分以上、24時間セキュリティー
    備考
    管理形態/管理員の勤務形態:-/-
    ■トイレ3箇所あり
    ■駐車場9台~11台付無料(区画によって違います)
    ■お問い合わせは
    【不動産きんぐ:TEL093-631-0877】
    エネルギー消費性能
    断熱性能
    目安光熱費
    バス・トイレ 男女別トイレ、トイレ2ヶ所、多機能トイレ
    キッチン
    設備・サービス エアコン2台以上、防犯カメラ、エアコン、暖房、冷房
    その他
    契約期間 5年 条件等
    引渡可能時期 即時 現況
    更新料 物件番号 6982614473
    情報公開日 2025年12月8日 次回更新予定日 2026年1月5日
    ケータイ用バーコード

    QRコード

    スマートフォンでこの物件を見る
    スマートフォンからもこの物件をご覧になれます。
    ※「-」と表示されている項目については、情報提供会社にご確認ください。

    この物件の周辺情報

    周辺施設 ファッションセンターしまむら宗像店
    距離 383m
    周辺施設 マルキョウ宗像店
    距離 763m
    周辺施設 にしてつストアレガネット東郷
    距離 1604m
    周辺施設 ファミリーマート宗像東郷五丁目店
    距離 153m
    周辺施設 セブンイレブン宗像東郷橋店
    距離 616m
    周辺施設 ローソン宗像田熊一丁目店
    距離 1225m
    周辺施設 ほっともっと宗像市役所前店
    距離 189m
    周辺施設 ジョイフル宗像店
    距離 1051m

    クイックお問い合わせ

    ここから簡単にお問い合わせをすることができます。
    (SSLでの暗号化での送信を希望されるお客さまは こちら よりお問い合わせください)

    お問い合わせ内容(必須)
    物件のお問い合わせ理由(必須)
    お名前・ご担当者様名(必須) 姓  名 
    メールアドレス(必須)
    ※携帯電話のメールアドレスをご入力される方はこちらをご確認ください
    電話番号(必須)
    - -

    ※入力いただいた電話番号へSMSまたは音声でパスワードをご連絡します。

    携帯電話の番号をご入力の方へ

    携帯電話の番号をご入力の方へ
    確認画面にて送信ボタンをクリックするとSMSが携帯電話に届きます。
    そのSMSに記載のパスワード(認証番号)を入力し、お問い合わせを完了してください。
    尚、SMSの送信者番号は 0005 202 760 となります。
    これはアットホームの固定番号です。

    備考欄 希望条件、物件案内希望日、質問などがございましたらご記入ください。
    お問い合わせを行う前に「個人情報の取り扱いについて」を必ずお読みください。
    「個人情報の取り扱いについて」に同意いただいた場合は「上記にご同意の上 確認画面へ進む」のボタンをクリックしてください。

    個人情報の取り扱いについて

    皆さまが送付された個人情報はアットホーム(株)のサーバを経由し、お問い合わせ先の不動産会社にメールまたはFAXにて転送されるためアットホーム(株)にも保管されます。アットホーム(株)で保管された個人情報の取り扱いについては、【こちら】をご覧ください。
    また、本画面でご記入いただいた個人情報は、お問い合わせ先の不動産会社でも保管します。 お問い合わせ先の不動産会社が保管する個人情報の取り扱いについては、不動産会社に直接お問い合わせください。

    情報提供会社

    情報提供会社

    (株)不動産きんぐ

    福岡県知事免許(2)第18359号

    交通:
    JR鹿児島本線/陣原駅 徒歩15分
    福岡県北九州市八幡西区樋口町5-13 キングビル1F
    TEL:
    093-631-0877
    FAX:
    093-616-0867
    所属団体:
    (公社)福岡県宅地建物取引業協会会員
    (一社)九州不動産公正取引協議会加盟

    取引態様:仲介

    • 会社情報
    • 80503124
    スマートフォンで
    この不動産会社を見る
    QRコード
    • とりあえず保存
    • お問い合わせ
    • 提携サイト等より掲載されている物件情報につきましては、不動産会社詳細情報にリンクされていないものがあります。
    • 物件に関するお問合せは、物件詳細ページの「情報提供会社」に表示されている不動産会社へ直接お願いいたします。
    • 間取図は、現況を優先させていただきます。
    • 映像は物件の一部を撮影したものです。物件の契約にあたっての最終判断はご自身の判断に基づいて行ってください。
    • 仲介手数料について仲介手数料

    アットホームは物件情報の適正化に努めております。 内容に誤りがある場合にはこちらへご連絡ください。

    【埼玉住まい情報】では、日本全国の物件から賃貸マンションや賃貸アパート・賃貸一戸建て等の賃貸住宅情報、新築マンション・分譲マンションや中古マンション等の売買マンション情報、新築一戸建てや中古一戸建てなどの戸建住宅、 土地など、総合的な不動産住宅情報検索サービスを提供致します。
    【埼玉住まい情報】から、選りすぐりの不動産物件を探してみましょう。

    【免責事項】
    このコーナーの運営はアットホーム株式会社(https://www.athome.co.jp/)が行っています。
    このコーナーに掲載している物件情報は、「アットホーム不動産情報ネットワーク」に加盟する不動産会社等(情報提供元)から提供されています。信頼性の高い情報提供が行えるよう、最大限の努力をしておりますが、その内容を保証するものではありません。 利用者のみなさまと各情報提供元との取引に起因する損害および情報が掲載されたことに起因する損害等については、株式会社イーシティ埼玉、およびアットホームは一切責任を負いません。
    各物件情報の内容や画像等はすべて現況を優先させていただきます。
    お取引等(お取引の準備、資金調達等を含みます)の際には、内容や契約条件等について、各情報提供元より十分な説明を受け、ご自身でご確認の上、判断してください。
    このコーナーへの物件情報のご掲載、その他不動産業務ソリューション等についての不動産会社様のお問合せはこちらからお願いいたします。

    物件画像: