大阪府大東市平野屋2丁目(住道駅)の貸その他:物件詳細
交通 所在地 |
駅徒歩 |
賃料 管理費等 |
敷金/保証金 礼金 |
使用部分面積 坪数/坪単価 |
物件種目 築年月 |
|
JR片町線/住道
大阪府大東市平野屋2丁目
|
21分
|
69.3万円
なし
|
8ヶ月 / なし
2ヶ月
|
428.10m²
129.49坪/0.5352万円
|
貸工場
1982年3月(築44年)
|
|
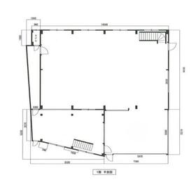
間取図
|
|
その他の画像
|
| 交通 | JR片町線 住道駅 徒歩21分 |
|---|
| その他の交通 | JR片町線 野崎駅 徒歩24分 |
| 所在地 |
大阪府大東市平野屋2丁目
|
| 物件種目 |
貸工場 |
| 賃料 |
69.3万円 |
管理費等 |
なし |
| 敷金 / 保証金 |
8ヶ月 / なし |
礼金 |
2ヶ月 |
| 敷引 |
- |
坪単価 |
0.5352万円 |
| 保証金償却 |
- |
権利金 |
- |
| 造作譲渡 |
- |
その他一時金 |
- |
| 保険等 |
- |
|
|
| 使用部分面積 |
428.10m² |
坪数 |
129.49坪 |
| 築年月 |
1982年3月(築44年)
|
階建 / 階 |
2階建 |
| 駐車場 |
有 無料(空き2台) インナーガレージ |
バイク置き場 |
有 無料 |
| 駐輪場 |
有 無料 |
土地面積 |
- |
| 接道状況 |
-
|
用途地域 |
準工業 |
| 間取り |
- |
建物構造 |
鉄骨造 |
| アピールポイント |
電動シャッター内車両2台駐車スペースあり、駐車場と工場の間にもシャッターが有り
駐車場スペースも工場として利用も可能、250kgリフトあり(残置物扱い)W約1.4m×D約1.2m×H約1.7m
電動シャッター南側W5.9m×H2.8m、東側W5.2m×H2.8m
天井高1階3.6m~4m、2階2.7m~3.9m、中二階あり。前面大型車両通行可、荷積み荷下ろし可能ですが
私道の使用制限があるので駐車は不可。諸条件お気軽に相談下さい。 |
| 建物名・部屋番号 |
大東市平野屋貸工場 |
| リフォーム履歴 |
- |
| リノベーション履歴 |
- |
| 特記事項 |
土曜日利用可、土日・祝日利用可、大型トラック搬入可、飲食店不可、駐車場2台分、天井高2.5M以上 |
| 備考 |
管理形態/管理員の勤務形態:-/-
お気軽に問い合わせ下さい
|
| エネルギー消費性能 |
- |
| 断熱性能 |
- |
| 目安光熱費 |
- |
| バス・トイレ |
トイレ2ヶ所、トイレ |
| キッチン |
- |
| 設備・サービス |
電動シャッター、動力あり |
| その他 |
リフト |
| 契約期間 |
3年 |
条件等 |
- |
| 引渡可能時期 |
相談 |
現況 |
空 |
| 更新料 |
なし |
物件番号 |
6986990046 |
| 情報公開日 |
2025年7月12日 |
次回更新予定日 |
2026年2月16日 |
| ケータイ用バーコード |
- スマートフォンでこの物件を見る
- スマートフォンからもこの物件をご覧になれます。
|
※「-」と表示されている項目については、情報提供会社にご確認ください。
ここから簡単にお問い合わせをすることができます。
(SSLでの暗号化での送信を希望されるお客さまは
こちら
よりお問い合わせください)
お問い合わせを行う前に
「個人情報の取り扱いについて」を必ずお読みください。
「個人情報の取り扱いについて」に同意いただいた場合は「上記にご同意の上 確認画面へ進む」のボタンをクリックしてください。
個人情報の取り扱いについて
皆さまが送付された個人情報はアットホーム(株)のサーバを経由し、お問い合わせ先の不動産会社にメールまたはFAXにて転送されるためアットホーム(株)にも保管されます。アットホーム(株)で保管された個人情報の取り扱いについては、【こちら】をご覧ください。
また、本画面でご記入いただいた個人情報は、お問い合わせ先の不動産会社でも保管します。 お問い合わせ先の不動産会社が保管する個人情報の取り扱いについては、不動産会社に直接お問い合わせください。
大阪府知事免許(1)第62714号 |
|---|
- 交通:
- 京阪本線/西三荘駅 徒歩19分
- 大阪府守口市寺方本通3丁目6-4
- TEL:
- 06-6991-9835
- 所属団体:
- (公社)全日本不動産協会会員(公社)近畿地区不動産公正取引協議会加盟
取引態様:仲介  - 50107110
|
- スマートフォンで
この不動産会社を見る

|
- 提携サイト等より掲載されている物件情報につきましては、不動産会社詳細情報にリンクされていないものがあります。
- 物件に関するお問合せは、物件詳細ページの「情報提供会社」に表示されている不動産会社へ直接お願いいたします。
- 間取図は、現況を優先させていただきます。
- 映像は物件の一部を撮影したものです。物件の契約にあたっての最終判断はご自身の判断に基づいて行ってください。
- 仲介手数料について

アットホームは物件情報の適正化に努めております。
内容に誤りがある場合にはこちらへご連絡ください。