東京都江東区森下3丁目(森下駅)の貸その他:物件詳細
交通 所在地 |
駅徒歩 |
賃料 管理費等 |
敷金/保証金 礼金 |
使用部分面積 坪数/坪単価 |
物件種目 築年月 |
|
都営新宿線/森下
東京都江東区森下3丁目
|
4分
|
12万円
-
|
なし / 2ヶ月
1ヶ月
|
19.68m²
5.95坪/2.0158万円
|
貸倉庫
1979年3月(築46年10ヶ月)
|
|
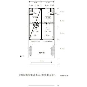
間取図
|
|
その他の画像
|
| 交通 | 都営新宿線 森下駅 徒歩4分 |
| 所在地 |
東京都江東区森下3丁目
|
| 物件種目 |
貸倉庫 |
| 賃料 |
12万円 |
管理費等 |
- |
| 敷金 / 保証金 |
なし / 2ヶ月 |
礼金 |
1ヶ月 |
| 敷引 |
- |
坪単価 |
2.0158万円 |
| 保証金償却 |
- |
権利金 |
- |
| 造作譲渡 |
- |
その他一時金 |
- |
| 保険等 |
要 2年 20,000円 |
|
|
| 使用部分面積 |
19.68m² |
坪数 |
5.95坪 |
| 築年月 |
1979年3月(築46年10ヶ月)
|
階建 / 階 |
3階建 / 1階 |
| 駐車場 |
有 無料(空き1台) |
バイク置き場 |
- |
| 駐輪場 |
- |
土地面積 |
- |
| 接道状況 |
-
|
用途地域 |
- |
| 間取り |
- |
建物構造 |
鉄骨造 |
| 建物名・部屋番号 |
ディプレックス 1F |
| リフォーム履歴 |
■水回り:1979年3月 トイレ ※実施年月は最も古い履歴を表示 |
| リノベーション履歴 |
- |
| 特記事項 |
- |
| 備考 |
賃貸保証等:加入要(初回保証料家賃総額の100% 継続保証料毎年1万円)
管理形態/管理員の勤務形態:-/-
|
| エネルギー消費性能 |
- |
| 断熱性能 |
- |
| 目安光熱費 |
- |
| バス・トイレ |
トイレ |
| キッチン |
- |
| 設備・サービス |
エアコン |
| その他 |
- |
| 契約期間 |
3年 |
条件等 |
- |
| 引渡可能時期 |
即時 |
現況 |
空 |
| 仲介手数料 |
1ヶ月 |
|
|
| 更新料 |
新賃料 1ヶ月 |
物件番号 |
6987328933 |
| 情報公開日 |
2025年12月18日 |
次回更新予定日 |
2026年1月1日 |
| ケータイ用バーコード |
- スマートフォンでこの物件を見る
- スマートフォンからもこの物件をご覧になれます。
|
※「-」と表示されている項目については、情報提供会社にご確認ください。
ここから簡単にお問い合わせをすることができます。
(SSLでの暗号化での送信を希望されるお客さまは
こちら
よりお問い合わせください)
お問い合わせを行う前に
「個人情報の取り扱いについて」を必ずお読みください。
「個人情報の取り扱いについて」に同意いただいた場合は「上記にご同意の上 確認画面へ進む」のボタンをクリックしてください。
個人情報の取り扱いについて
皆さまが送付された個人情報はアットホーム(株)のサーバを経由し、お問い合わせ先の不動産会社にメールまたはFAXにて転送されるためアットホーム(株)にも保管されます。アットホーム(株)で保管された個人情報の取り扱いについては、【こちら】をご覧ください。
また、本画面でご記入いただいた個人情報は、お問い合わせ先の不動産会社でも保管します。 お問い合わせ先の不動産会社が保管する個人情報の取り扱いについては、不動産会社に直接お問い合わせください。
東京都知事免許(7)第73604号 |
|---|
- 交通:
- 都営新宿線/菊川駅 徒歩1分
- 東京都墨田区菊川2丁目5-9 2階
- TEL:
- 0120-915-055
- FAX:
- 03-5600-0757
- 所属団体:
- (公社)全日本不動産協会会員(公社)首都圏不動産公正取引協議会加盟
取引態様:仲介  - 00066688
|
- スマートフォンで
この不動産会社を見る

|
- 提携サイト等より掲載されている物件情報につきましては、不動産会社詳細情報にリンクされていないものがあります。
- 物件に関するお問合せは、物件詳細ページの「情報提供会社」に表示されている不動産会社へ直接お願いいたします。
- 間取図は、現況を優先させていただきます。
- 映像は物件の一部を撮影したものです。物件の契約にあたっての最終判断はご自身の判断に基づいて行ってください。
- 仲介手数料について

アットホームは物件情報の適正化に努めております。
内容に誤りがある場合にはこちらへご連絡ください。