不動産 賃貸 マンション等の住宅情報:埼玉住まい情報


千葉県松戸市古ケ崎(松戸駅)の貸その他:物件詳細

  • 物件詳細
  • 情報の見方
  • 印刷用画面
交通
所在地
駅徒歩 賃料
管理費等
敷金/保証金
礼金
使用部分面積
坪数/坪単価
物件種目
築年月

JR千代田・常磐緩行線/松戸

千葉県松戸市古ケ崎

18分

5.5万円

なし / なし

なし

61.46m²

18.59坪/0.2959万円

貸倉庫

1969年1月(築56年10ヶ月)

おすすめコメント

松戸駅より徒歩18分の貸倉庫気です。住居としても使用可能。気になったらグランツパートナーズまでお気軽にお問い合わせください!03-5360-1350

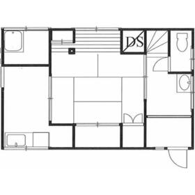
間取図

間取図

その他の画像
    • とりあえず保存
    • お問い合わせ
    交通

    JR千代田・常磐緩行線 松戸駅 徒歩18分

    所在地 千葉県松戸市古ケ崎
    物件種目 貸倉庫
    賃料 5.5万円 管理費等
    敷金 / 保証金 なし / なし 礼金 なし
    敷引 坪単価 0.2959万円
    保証金償却 権利金
    造作譲渡 その他一時金
    保険等 要 2年 15,000円 火災    
    使用部分面積 61.46m² 坪数 18.59坪
    築年月 1969年1月(築56年10ヶ月) 階建 / 階 2階建
    駐車場 バイク置き場
    駐輪場 土地面積
    接道状況 用途地域
    間取り 建物構造 木造
    アピールポイント 松戸駅より徒歩18分の貸倉庫気です。住居としても使用可能。気になったらグランツパートナーズまでお気軽にお問い合わせください!03-5360-1350
    建物名・部屋番号 古ヶ崎貸戸建(倉庫)
    リフォーム履歴
    リノベーション履歴
    特記事項
    備考
    賃貸保証等:加入要(賃料等の50%)
    管理形態/管理員の勤務形態:-/-
    主要採光面:南向き
    エネルギー消費性能
    断熱性能
    目安光熱費
    バス・トイレ バス・トイレ別、トイレ
    キッチン
    設備・サービス 収納スペース
    その他
    契約期間 2年 条件等 定期借家定期借家
    引渡可能時期 即時 現況
    仲介手数料 0.55ヶ月    
    更新料 新賃料 1ヶ月 物件番号 6987577608
    情報公開日 2025年9月6日 次回更新予定日 2025年10月27日
    ケータイ用バーコード

    QRコード

    スマートフォンでこの物件を見る
    スマートフォンからもこの物件をご覧になれます。
    ※「-」と表示されている項目については、情報提供会社にご確認ください。

    この物件の周辺情報

    周辺施設 マミーマート松戸古ヶ崎店
    距離 143m
    周辺施設 セブンイレブン松戸古ヶ崎五差路店
    距離 204m
    周辺施設 ガスト松戸古ケ崎店(から好し取扱店)
    距離 377m
    周辺施設 ウエルシア松戸樋野口店
    距離 633m
    周辺施設 医療法人財団松圓会東葛クリニック病院
    距離 470m
    周辺施設 松戸根本郵便局
    距離 967m
    周辺施設 西口消防署
    距離 348m
    周辺施設 松戸警察署
    距離 3005m

    クイックお問い合わせ

    ここから簡単にお問い合わせをすることができます。
    (SSLでの暗号化での送信を希望されるお客さまは こちら よりお問い合わせください)

    お問い合わせ内容(必須)
    物件のお問い合わせ理由(必須)
    お名前・ご担当者様名(必須) 姓  名 
    メールアドレス(必須)
    ※携帯電話のメールアドレスをご入力される方はこちらをご確認ください
    電話番号(必須)
    - -

    ※入力いただいた電話番号へSMSまたは音声でパスワードをご連絡します。

    携帯電話の番号をご入力の方へ

    携帯電話の番号をご入力の方へ
    確認画面にて送信ボタンをクリックするとSMSが携帯電話に届きます。
    そのSMSに記載のパスワード(認証番号)を入力し、お問い合わせを完了してください。
    尚、SMSの送信者番号は 0005 202 760 となります。
    これはアットホームの固定番号です。

    備考欄 希望条件、物件案内希望日、質問などがございましたらご記入ください。
    お問い合わせを行う前に「個人情報の取り扱いについて」を必ずお読みください。
    「個人情報の取り扱いについて」に同意いただいた場合は「上記にご同意の上 確認画面へ進む」のボタンをクリックしてください。

    個人情報の取り扱いについて

    皆さまが送付された個人情報はアットホーム(株)のサーバを経由し、お問い合わせ先の不動産会社にメールまたはFAXにて転送されるためアットホーム(株)にも保管されます。アットホーム(株)で保管された個人情報の取り扱いについては、【こちら】をご覧ください。
    また、本画面でご記入いただいた個人情報は、お問い合わせ先の不動産会社でも保管します。 お問い合わせ先の不動産会社が保管する個人情報の取り扱いについては、不動産会社に直接お問い合わせください。

    情報提供会社

    情報提供会社

    (株)グランツパートナーズ

    東京都知事免許(3)第95058号

    交通:
    都営新宿線/曙橋駅 徒歩3分
    東京都新宿区住吉町3-11 新宿BLISSビル8F
    TEL:
    03-5360-1350
    FAX:
    03-5360-1351
    所属団体:
    (公社)東京都宅地建物取引業協会会員
    (公社)首都圏不動産公正取引協議会加盟

    取引態様:仲介

    • 会社情報
    • 00108354
    スマートフォンで
    この不動産会社を見る
    QRコード
    • とりあえず保存
    • お問い合わせ
    • 提携サイト等より掲載されている物件情報につきましては、不動産会社詳細情報にリンクされていないものがあります。
    • 物件に関するお問合せは、物件詳細ページの「情報提供会社」に表示されている不動産会社へ直接お願いいたします。
    • 間取図は、現況を優先させていただきます。
    • 映像は物件の一部を撮影したものです。物件の契約にあたっての最終判断はご自身の判断に基づいて行ってください。
    • 仲介手数料について仲介手数料

    アットホームは物件情報の適正化に努めております。 内容に誤りがある場合にはこちらへご連絡ください。

    【埼玉住まい情報】では、日本全国の物件から賃貸マンションや賃貸アパート・賃貸一戸建て等の賃貸住宅情報、新築マンション・分譲マンションや中古マンション等の売買マンション情報、新築一戸建てや中古一戸建てなどの戸建住宅、 土地など、総合的な不動産住宅情報検索サービスを提供致します。
    【埼玉住まい情報】から、選りすぐりの不動産物件を探してみましょう。

    【免責事項】
    このコーナーの運営はアットホーム株式会社(https://www.athome.co.jp/)が行っています。
    このコーナーに掲載している物件情報は、「アットホーム不動産情報ネットワーク」に加盟する不動産会社等(情報提供元)から提供されています。信頼性の高い情報提供が行えるよう、最大限の努力をしておりますが、その内容を保証するものではありません。 利用者のみなさまと各情報提供元との取引に起因する損害および情報が掲載されたことに起因する損害等については、株式会社イーシティ埼玉、およびアットホームは一切責任を負いません。
    各物件情報の内容や画像等はすべて現況を優先させていただきます。
    お取引等(お取引の準備、資金調達等を含みます)の際には、内容や契約条件等について、各情報提供元より十分な説明を受け、ご自身でご確認の上、判断してください。
    このコーナーへの物件情報のご掲載、その他不動産業務ソリューション等についての不動産会社様のお問合せはこちらからお願いいたします。

    物件画像: