群馬県前橋市千代田町5丁目(中央前橋駅)の貸その他:物件詳細
交通 所在地 |
駅徒歩 |
賃料 管理費等 |
敷金/保証金 礼金 |
使用部分面積 坪数/坪単価 |
物件種目 築年月 |
|
上毛電鉄/中央前橋
群馬県前橋市千代田町5丁目
|
5分
|
12.1万円
なし
|
なし / なし
なし
|
162.91m²
49.28坪/0.2456万円
|
貸倉庫
1981年6月(築44年7ヶ月)
|
|
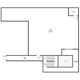
間取図
|
|
その他の画像
|
| 交通 | 上毛電鉄 中央前橋駅 徒歩5分 |
|---|
| その他の交通 | 湘南新宿ライン(前橋〜小田原) 前橋駅 徒歩12分 JR両毛線 前橋駅 徒歩12分 |
| 所在地 |
群馬県前橋市千代田町5丁目
|
| 物件種目 |
貸倉庫 |
| 賃料 |
12.1万円 |
管理費等 |
なし |
| 敷金 / 保証金 |
なし / なし |
礼金 |
なし |
| 敷引 |
- |
坪単価 |
0.2456万円 |
| 保証金償却 |
- |
権利金 |
- |
| 造作譲渡 |
- |
その他一時金 |
- |
| 保険等 |
要 |
|
|
| 使用部分面積 |
162.91m² |
坪数 |
49.28坪 |
| 築年月 |
1981年6月(築44年7ヶ月)
|
階建 / 階 |
8階建 / 5階 |
| 駐車場 |
無 |
バイク置き場 |
- |
| 駐輪場 |
- |
土地面積 |
- |
| 接道状況 |
-
|
用途地域 |
商業地域 |
| 間取り |
- |
建物構造 |
鉄骨造 |
| アピールポイント |
お気軽にご相談下さい。 |
| 建物名・部屋番号 |
サンシャイン前橋 5FB |
| リフォーム履歴 |
- |
| リノベーション履歴 |
- |
| 特記事項 |
スケルトン、24時間利用可、土曜日利用可、土日・祝日利用可、飲食店可 |
| 備考 |
賃貸保証等:加入要(初回保証料:総賃料の100%/継続保証料:総賃料の10%(年))
管理形態/管理員の勤務形態:-/-
|
| エネルギー消費性能 |
- |
| 断熱性能 |
- |
| 目安光熱費 |
- |
| バス・トイレ |
- |
| キッチン |
- |
| 設備・サービス |
- |
| その他 |
エレベーター |
| 契約期間 |
3年 |
条件等 |
- |
| 引渡可能時期 |
相談 |
現況 |
空 |
| 仲介手数料 |
1.1ヶ月 |
|
|
| 更新料 |
- |
物件番号 |
6987672887 |
| 情報公開日 |
2025年10月18日 |
次回更新予定日 |
2025年12月13日 |
| ケータイ用バーコード |
- スマートフォンでこの物件を見る
- スマートフォンからもこの物件をご覧になれます。
|
※「-」と表示されている項目については、情報提供会社にご確認ください。
| 周辺施設 |
セブンイレブン前橋本町2丁目店 |
| 距離 |
333m |
| 周辺施設 |
私立群馬医療福祉大学リハビリテーション学部本町キャンパス |
| 距離 |
333m |
| 周辺施設 |
GOSARO PARKING |
| 距離 |
148m |
ここから簡単にお問い合わせをすることができます。
(SSLでの暗号化での送信を希望されるお客さまは
こちら
よりお問い合わせください)
お問い合わせを行う前に
「個人情報の取り扱いについて」を必ずお読みください。
「個人情報の取り扱いについて」に同意いただいた場合は「上記にご同意の上 確認画面へ進む」のボタンをクリックしてください。
個人情報の取り扱いについて
皆さまが送付された個人情報はアットホーム(株)のサーバを経由し、お問い合わせ先の不動産会社にメールまたはFAXにて転送されるためアットホーム(株)にも保管されます。アットホーム(株)で保管された個人情報の取り扱いについては、【こちら】をご覧ください。
また、本画面でご記入いただいた個人情報は、お問い合わせ先の不動産会社でも保管します。 お問い合わせ先の不動産会社が保管する個人情報の取り扱いについては、不動産会社に直接お問い合わせください。
群馬県知事免許(2)第7508号 |
|---|
- 交通:
- 東武伊勢崎線/新伊勢崎駅 徒歩5分 【バス】 本町東 停歩1分
- 群馬県伊勢崎市本町10-18
- TEL:
- 0270-61-8552
- FAX:
- 0270-61-8573
- 所属団体:
- (公社)全日本不動産協会会員(公社)首都圏不動産公正取引協議会加盟
取引態様:仲介  - 00264166
|
- スマートフォンで
この不動産会社を見る

|
- 提携サイト等より掲載されている物件情報につきましては、不動産会社詳細情報にリンクされていないものがあります。
- 物件に関するお問合せは、物件詳細ページの「情報提供会社」に表示されている不動産会社へ直接お願いいたします。
- 間取図は、現況を優先させていただきます。
- 映像は物件の一部を撮影したものです。物件の契約にあたっての最終判断はご自身の判断に基づいて行ってください。
- 仲介手数料について

アットホームは物件情報の適正化に努めております。
内容に誤りがある場合にはこちらへご連絡ください。