愛知県名古屋市港区秋葉2丁目(戸田駅)の貸その他:物件詳細
交通 所在地 |
駅徒歩 |
賃料 管理費等 |
敷金/保証金 礼金 |
使用部分面積 坪数/坪単価 |
物件種目 築年月 |
|
近鉄名古屋線/戸田
愛知県名古屋市港区秋葉2丁目
|
58分
|
17.6万円
なし
|
なし / 4ヶ月
なし
|
83.04m²
25.11坪/0.7007万円
|
貸倉庫
2024年6月(築1年7ヶ月)
|
|
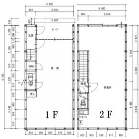
間取図
|
|
その他の画像
|
| 交通 | 近鉄名古屋線 戸田駅 徒歩58分 |
| 所在地 |
愛知県名古屋市港区秋葉2丁目
|
| 物件種目 |
貸倉庫 |
| 賃料 |
17.6万円 |
管理費等 |
なし |
| 敷金 / 保証金 |
なし / 4ヶ月 |
礼金 |
なし |
| 敷引 |
- |
坪単価 |
0.7007万円 |
| 保証金償却 |
- |
権利金 |
- |
| 造作譲渡 |
- |
その他一時金 |
- |
| 保険等 |
要 借家人賠償付火災 |
|
|
| 使用部分面積 |
83.04m² |
坪数 |
25.11坪 |
| 築年月 |
2024年6月(築1年7ヶ月)
|
階建 / 階 |
2階建 / 1階~2階部分 |
| 駐車場 |
有 無料 テナント前面敷地内、4台分有り |
バイク置き場 |
- |
| 駐輪場 |
- |
土地面積 |
- |
| 接道状況 |
北
|
用途地域 |
1種住居 |
| 間取り |
- |
建物構造 |
木造 |
| アピールポイント |
名二環にアクセス良好
トイレ2ケ所あり |
| 建物名・部屋番号 |
|
| リフォーム履歴 |
- |
| リノベーション履歴 |
- |
| 特記事項 |
飲食店不可 |
| 備考 |
賃貸保証等:加入要(初回保証委託料月額賃料等の1ケ月分 更新料10%/年)
管理形態/管理員の勤務形態:-/-
掲載写真は以前の物になります。
|
| エネルギー消費性能 |
- |
| 断熱性能 |
- |
| 目安光熱費 |
- |
| バス・トイレ |
トイレ2ヶ所 |
| キッチン |
- |
| 設備・サービス |
個別空調、電動シャッター、エアコン |
| その他 |
- |
| 契約期間 |
2年 |
条件等 |
- |
| 引渡可能時期 |
指定有り2026年1月15日 |
現況 |
使用中 |
| 仲介手数料 |
1ヶ月 |
|
|
| 更新料 |
なし |
物件番号 |
6987786169 |
| 情報公開日 |
2025年9月26日 |
次回更新予定日 |
2025年12月19日 |
| ケータイ用バーコード |
- スマートフォンでこの物件を見る
- スマートフォンからもこの物件をご覧になれます。
|
※「-」と表示されている項目については、情報提供会社にご確認ください。
ここから簡単にお問い合わせをすることができます。
(SSLでの暗号化での送信を希望されるお客さまは
こちら
よりお問い合わせください)
お問い合わせを行う前に
「個人情報の取り扱いについて」を必ずお読みください。
「個人情報の取り扱いについて」に同意いただいた場合は「上記にご同意の上 確認画面へ進む」のボタンをクリックしてください。
個人情報の取り扱いについて
皆さまが送付された個人情報はアットホーム(株)のサーバを経由し、お問い合わせ先の不動産会社にメールまたはFAXにて転送されるためアットホーム(株)にも保管されます。アットホーム(株)で保管された個人情報の取り扱いについては、【こちら】をご覧ください。
また、本画面でご記入いただいた個人情報は、お問い合わせ先の不動産会社でも保管します。 お問い合わせ先の不動産会社が保管する個人情報の取り扱いについては、不動産会社に直接お問い合わせください。
愛知県知事免許(2)第23793号 |
|---|
- 交通:
- 名古屋市東山線/栄駅 徒歩1分
- 愛知県名古屋市中区錦3丁目16-27 栄パークサイドプレイス3F
- TEL:
- 052-953-0055
- FAX:
- 052-961-0084
- 所属団体:
- (公社)全日本不動産協会会員東海不動産公正取引協議会加盟
取引態様:仲介  - 40407328
|
- スマートフォンで
この不動産会社を見る

|
- 提携サイト等より掲載されている物件情報につきましては、不動産会社詳細情報にリンクされていないものがあります。
- 物件に関するお問合せは、物件詳細ページの「情報提供会社」に表示されている不動産会社へ直接お願いいたします。
- 間取図は、現況を優先させていただきます。
- 映像は物件の一部を撮影したものです。物件の契約にあたっての最終判断はご自身の判断に基づいて行ってください。
- 仲介手数料について

アットホームは物件情報の適正化に努めております。
内容に誤りがある場合にはこちらへご連絡ください。