不動産 賃貸 マンション等の住宅情報:埼玉住まい情報


千葉県松戸市松戸新田(上本郷駅)の貸その他:物件詳細

  • 物件詳細
  • 情報の見方
  • 印刷用画面
交通
所在地
駅徒歩 賃料
管理費等
敷金/保証金
礼金
使用部分面積
坪数/坪単価
物件種目
築年月

京成松戸線/上本郷

千葉県松戸市松戸新田

14分

138.64万円

なし / 4ヶ月

1ヶ月

925.93m²

280.09坪/0.495万円

貸倉庫

2024年7月(築1年4ヶ月)

おすすめコメント  スタッフ: 黒図克之

1階から3階利用の倉庫。事務所付きとなります。入居時期は応相談となるため、一度ご連絡ください。

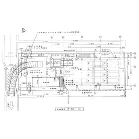
間取図

間取図

1階部分の平面図です。

外観

外観

その他の画像
  • 周辺環境
    • とりあえず保存
    • お問い合わせ
    交通

    京成松戸線 上本郷駅 徒歩14分

    その他の交通

    京成松戸線 松戸新田駅 徒歩13分

    京成松戸線 みのり台駅 徒歩15分

    所在地 千葉県松戸市松戸新田
    物件種目 貸倉庫
    賃料 138.64万円 管理費等
    敷金 / 保証金 なし / 4ヶ月 礼金 1ヶ月
    敷引 坪単価 0.495万円
    保証金償却 権利金
    造作譲渡 その他一時金
    保険等    
    使用部分面積 925.93m² 坪数 280.09坪
    築年月 2024年7月(築1年4ヶ月) 階建 / 階 3階建 / 1階~3階部分
    駐車場 バイク置き場
    駐輪場 土地面積
    接道状況 用途地域 工業専用
    間取り 建物構造 鉄骨造
    アピールポイント 〇工業専用エリアにある倉庫

    ※電動シャッター H 3.0m×W3.7m

    ※垂直搬送機:1基 H1.65m×W1.8m×D1.8m 耐荷重:2t
    建物名・部屋番号 松戸倉庫 一括貸し
    リフォーム履歴
    リノベーション履歴
    特記事項 最上階
    備考
    管理形態/管理員の勤務形態:-/-
    広さ
    倉庫 1階 88.5坪
    倉庫 2階 88.87坪
    倉庫 3階 89.61坪
    事務所 13.09坪
    エネルギー消費性能
    断熱性能
    目安光熱費
    バス・トイレ
    キッチン
    設備・サービス
    その他
    契約期間 3年 条件等
    引渡可能時期 相談 現況
    更新料 物件番号 6987827597
    情報公開日 2025年9月29日 次回更新予定日 2025年10月31日
    ケータイ用バーコード

    QRコード

    スマートフォンでこの物件を見る
    スマートフォンからもこの物件をご覧になれます。
    ※「-」と表示されている項目については、情報提供会社にご確認ください。

    クイックお問い合わせ

    ここから簡単にお問い合わせをすることができます。
    (SSLでの暗号化での送信を希望されるお客さまは こちら よりお問い合わせください)

    お問い合わせ内容(必須)
    物件のお問い合わせ理由(必須)
    お名前・ご担当者様名(必須) 姓  名 
    メールアドレス(必須)
    ※携帯電話のメールアドレスをご入力される方はこちらをご確認ください
    電話番号(必須)
    - -

    ※入力いただいた電話番号へSMSまたは音声でパスワードをご連絡します。

    携帯電話の番号をご入力の方へ

    携帯電話の番号をご入力の方へ
    確認画面にて送信ボタンをクリックするとSMSが携帯電話に届きます。
    そのSMSに記載のパスワード(認証番号)を入力し、お問い合わせを完了してください。
    尚、SMSの送信者番号は 0005 202 760 となります。
    これはアットホームの固定番号です。

    備考欄 希望条件、物件案内希望日、質問などがございましたらご記入ください。
    お問い合わせを行う前に「個人情報の取り扱いについて」を必ずお読みください。
    「個人情報の取り扱いについて」に同意いただいた場合は「上記にご同意の上 確認画面へ進む」のボタンをクリックしてください。

    個人情報の取り扱いについて

    皆さまが送付された個人情報はアットホーム(株)のサーバを経由し、お問い合わせ先の不動産会社にメールまたはFAXにて転送されるためアットホーム(株)にも保管されます。アットホーム(株)で保管された個人情報の取り扱いについては、【こちら】をご覧ください。
    また、本画面でご記入いただいた個人情報は、お問い合わせ先の不動産会社でも保管します。 お問い合わせ先の不動産会社が保管する個人情報の取り扱いについては、不動産会社に直接お問い合わせください。

    情報提供会社

    情報提供会社

    センチュリー21 (株)エステル 大宮支店

    国土交通大臣免許(3)第8747号

    交通:
    JR京浜東北線/大宮駅 徒歩7分
    埼玉県さいたま市大宮区桜木町2丁目328-1 フォルトゥーナ桜木101
    TEL:
    048-650-1777
    FAX:
    048-650-1788
    所属団体:
    (公社)東京都宅地建物取引業協会会員
    (公社)首都圏不動産公正取引協議会加盟

    取引態様:仲介

    • 会社情報
    • 00162073
    スマートフォンで
    この不動産会社を見る
    QRコード
    • とりあえず保存
    • お問い合わせ
    • 提携サイト等より掲載されている物件情報につきましては、不動産会社詳細情報にリンクされていないものがあります。
    • 物件に関するお問合せは、物件詳細ページの「情報提供会社」に表示されている不動産会社へ直接お願いいたします。
    • 間取図は、現況を優先させていただきます。
    • 映像は物件の一部を撮影したものです。物件の契約にあたっての最終判断はご自身の判断に基づいて行ってください。
    • 仲介手数料について仲介手数料

    アットホームは物件情報の適正化に努めております。 内容に誤りがある場合にはこちらへご連絡ください。

    【埼玉住まい情報】では、日本全国の物件から賃貸マンションや賃貸アパート・賃貸一戸建て等の賃貸住宅情報、新築マンション・分譲マンションや中古マンション等の売買マンション情報、新築一戸建てや中古一戸建てなどの戸建住宅、 土地など、総合的な不動産住宅情報検索サービスを提供致します。
    【埼玉住まい情報】から、選りすぐりの不動産物件を探してみましょう。

    【免責事項】
    このコーナーの運営はアットホーム株式会社(https://www.athome.co.jp/)が行っています。
    このコーナーに掲載している物件情報は、「アットホーム不動産情報ネットワーク」に加盟する不動産会社等(情報提供元)から提供されています。信頼性の高い情報提供が行えるよう、最大限の努力をしておりますが、その内容を保証するものではありません。 利用者のみなさまと各情報提供元との取引に起因する損害および情報が掲載されたことに起因する損害等については、株式会社イーシティ埼玉、およびアットホームは一切責任を負いません。
    各物件情報の内容や画像等はすべて現況を優先させていただきます。
    お取引等(お取引の準備、資金調達等を含みます)の際には、内容や契約条件等について、各情報提供元より十分な説明を受け、ご自身でご確認の上、判断してください。
    このコーナーへの物件情報のご掲載、その他不動産業務ソリューション等についての不動産会社様のお問合せはこちらからお願いいたします。

    物件画像: