大阪府大阪市平野区長吉出戸7丁目(出戸駅)の貸その他:物件詳細
交通 所在地 |
駅徒歩 |
賃料 管理費等 |
敷金/保証金 礼金 |
使用部分面積 坪数/坪単価 |
物件種目 築年月 |
地下鉄谷町線/出戸
大阪府大阪市平野区長吉出戸7丁目
|
18分
|
16.5万円
-
|
15万円 / なし
16.5万円
|
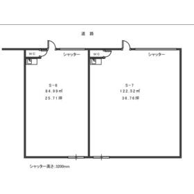
84.99m²
25.70坪/0.6418万円
|
貸工場
1974年3月(築51年8ヶ月)
|
間取図
|
|
<
その他の画像
>
|
交通 | 地下鉄谷町線 出戸駅 徒歩18分 |
---|
その他の交通 | JR関西本線 久宝寺駅 徒歩23分 JRおおさか東線 久宝寺駅 徒歩23分 |
所在地 |
大阪府大阪市平野区長吉出戸7丁目
|
物件種目 |
貸工場 |
賃料 |
16.5万円 |
管理費等 |
- |
敷金 / 保証金 |
15万円 / なし |
礼金 |
16.5万円 |
敷引 |
- |
坪単価 |
0.6418万円 |
保証金償却 |
- |
権利金 |
- |
造作譲渡 |
- |
その他一時金 |
- |
保険等 |
- |
|
|
使用部分面積 |
84.99m² |
坪数 |
25.70坪 |
築年月 |
1974年3月(築51年8ヶ月)
|
階建 / 階 |
1階建 / 1階 |
駐車場 |
- |
バイク置き場 |
- |
駐輪場 |
- |
土地面積 |
- |
接道状況 |
-
|
用途地域 |
- |
間取り |
- |
建物構造 |
鉄骨造 |
アピールポイント |
電動シャッター(高さ:3.2m)トイレ・流し台付いてます。 |
建物名・部屋番号 |
|
リフォーム履歴 |
- |
リノベーション履歴 |
- |
特記事項 |
24時間利用可、土日・祝日利用可 |
備考 |
管理形態/管理員の勤務形態:-/-
電動シャッター:高さ 3.2m
|
エネルギー消費性能 |
- |
断熱性能 |
- |
目安光熱費 |
- |
バス・トイレ |
トイレ |
キッチン |
- |
設備・サービス |
電動シャッター |
その他 |
- |
契約期間 |
1年 |
条件等 |
- |
引渡可能時期 |
即時 |
現況 |
空 |
更新料 |
- |
物件番号 |
6987897506 |
情報公開日 |
2025年10月4日 |
次回更新予定日 |
2025年11月2日 |
ケータイ用バーコード |
- スマートフォンでこの物件を見る
- スマートフォンからもこの物件をご覧になれます。
|
※「-」と表示されている項目については、情報提供会社にご確認ください。
周辺施設 |
ワークマンプラス八尾南太子堂店 |
距離 |
1354m |
周辺施設 |
ローソン長吉出戸三丁目店 |
距離 |
421m |
周辺施設 |
セブンイレブン大阪長吉六反1丁目店 |
距離 |
631m |
周辺施設 |
大阪シティ信用金庫八尾西支店 |
距離 |
1390m |
周辺施設 |
関西みらい銀行長吉支店 |
距離 |
1418m |
ここから簡単にお問い合わせをすることができます。
(SSLでの暗号化での送信を希望されるお客さまは
こちら
よりお問い合わせください)
お問い合わせを行う前に
「個人情報の取り扱いについて」を必ずお読みください。
「個人情報の取り扱いについて」に同意いただいた場合は「上記にご同意の上 確認画面へ進む」のボタンをクリックしてください。
個人情報の取り扱いについて
皆さまが送付された個人情報はアットホーム(株)のサーバを経由し、お問い合わせ先の不動産会社にメールまたはFAXにて転送されるためアットホーム(株)にも保管されます。アットホーム(株)で保管された個人情報の取り扱いについては、【こちら】をご覧ください。
また、本画面でご記入いただいた個人情報は、お問い合わせ先の不動産会社でも保管します。 お問い合わせ先の不動産会社が保管する個人情報の取り扱いについては、不動産会社に直接お問い合わせください。
大阪府知事免許(2)第58716号 |
---|
- 交通:
- 地下鉄谷町線/駒川中野駅 徒歩4分
- 大阪府大阪市東住吉区駒川4丁目9-19
- TEL:
- 06-6694-0012
- FAX:
- 06-6694-0112
- 所属団体:
- (公社)全日本不動産協会会員(公社)近畿地区不動産公正取引協議会加盟
取引態様:仲介  - 50106016
|
- スマートフォンで
この不動産会社を見る

|
- 提携サイト等より掲載されている物件情報につきましては、不動産会社詳細情報にリンクされていないものがあります。
- 物件に関するお問合せは、物件詳細ページの「情報提供会社」に表示されている不動産会社へ直接お願いいたします。
- 間取図は、現況を優先させていただきます。
- 映像は物件の一部を撮影したものです。物件の契約にあたっての最終判断はご自身の判断に基づいて行ってください。
- 仲介手数料について

アットホームは物件情報の適正化に努めております。
内容に誤りがある場合にはこちらへご連絡ください。